Духовые шкафы Miele H 4312 E - инструкция пользователя по применению, эксплуатации и установке на русском языке. Мы надеемся, она поможет вам решить возникшие у вас вопросы при эксплуатации техники.
Если остались вопросы, задайте их в комментариях после инструкции.
"Загружаем инструкцию", означает, что нужно подождать пока файл загрузится и можно будет его читать онлайн. Некоторые инструкции очень большие и время их появления зависит от вашей скорости интернета.

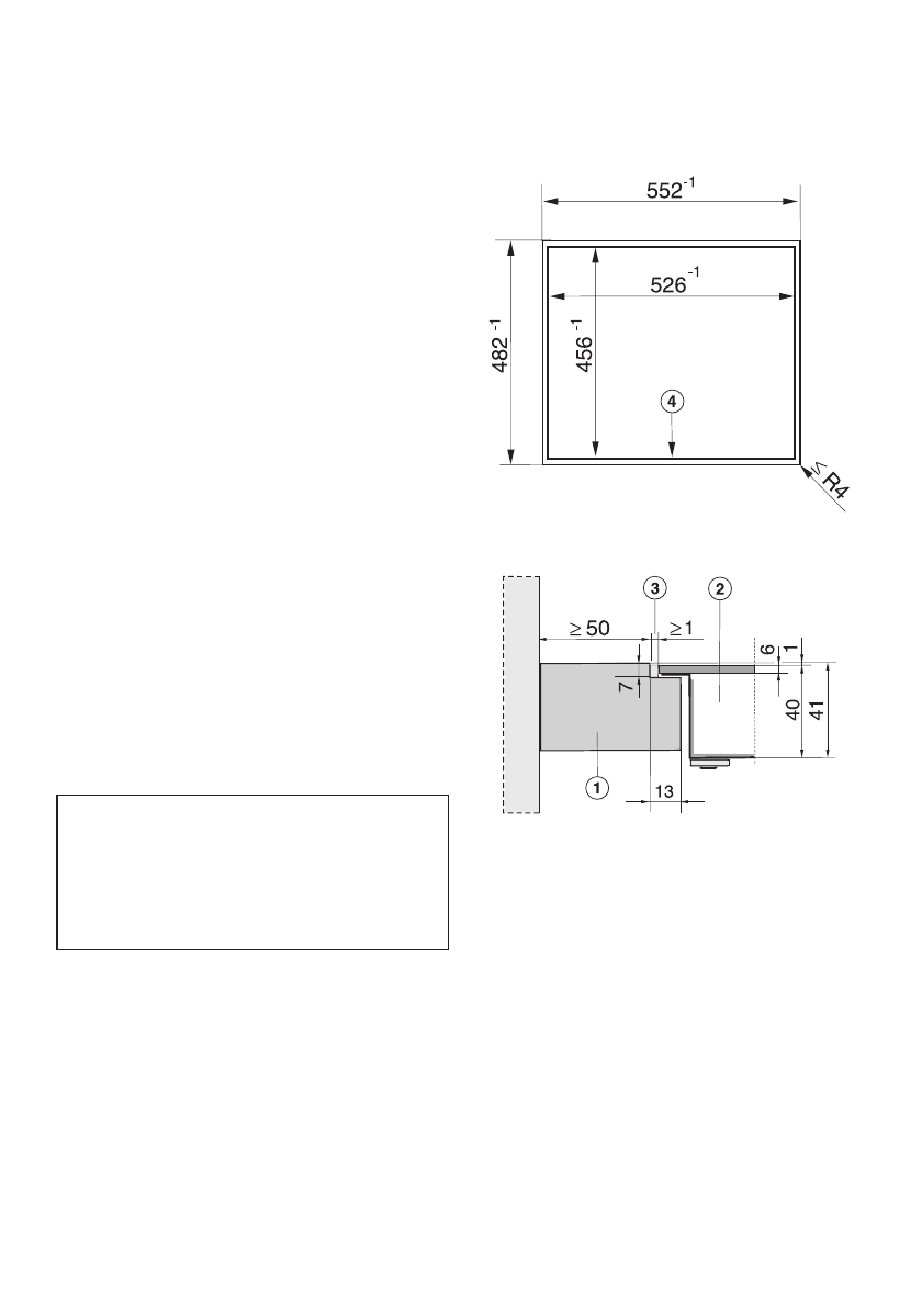
Èçãîòîâëåíèå âûðåçà â ñòîëåø-
íèöå è óñòàíîâêà âàðî÷íîé ïàíåëè
Ñòîëåøíèöà èç íàòóðàëüíîãî êàì-
íÿ
^
Èçãîòîâüòå âûðåç â ñòîëåøíèöå
ñîãëàñíî ðèñóíêàì.
^
Âûâåäèòå ñåòåâîé êàáåëü âàðî÷-
íîé ïàíåëè âíèç ÷åðåç âûðåç â
ñòîëåøíèöå.
^
Ïîäñîåäèíèòå ïàíåëü ê ïëèòå (ñì.
ãëàâó "Ïîäñîåäèíåíèå ê ïëèòå").
^
Óñòàíîâèòå âàðî÷íóþ ïàíåëü
f
â
âûðåç è âûðîâíÿéòå åå ïî öåíòðó.
^
Ïðîâåðüòå ðàáîòó âàðî÷íîé ïàíå-
ëè.
^
Çàïîëíèòå îñòàâøèéñÿ çàçîð
g
æàðîñòîéêèì ñèëèêîíîâûì ãåðìå-
òèêîì, âûäåðæèâàþùèì òåìïåðà-
òóðó íå ìåíåå 160 °C.
Òàê êàê â ðàçìåðàõ ñòåêëîêåðàìè-
÷åñêîé ïàíåëè è âûðåçà â ñòîëåø-
íèöå âîçìîæíû îïðåäåëåííûå äî-
ïóñêè, øèðèíà çàçîðà
g
ìîæåò âà-
ðüèðîâàòüñÿ (ìèí.1 ìì).
Ðàçìåðû ñòóïåí÷àòîãî âûðåçà
c
Ïåðåäíÿÿ ñòîðîíà
e
Ñòîëåøíèöà
f
Âàðî÷íàÿ ïàíåëü
g
Øèðèíà çàçîðà
Ðàäèóñ íà óãëàõ ñòîëåøíèöû
ß
R4
Ïàíåëè êîíôîðîê â îäíîé ïëîñêîñòè ñî
42
Характеристики
Остались вопросы?Не нашли свой ответ в руководстве или возникли другие проблемы? Задайте свой вопрос в форме ниже с подробным описанием вашей ситуации, чтобы другие люди и специалисты смогли дать на него ответ. Если вы знаете как решить проблему другого человека, пожалуйста, подскажите ему :)