Духовые шкафы Maunfeld MEOH.6711B - инструкция пользователя по применению, эксплуатации и установке на русском языке. Мы надеемся, она поможет вам решить возникшие у вас вопросы при эксплуатации техники.
Если остались вопросы, задайте их в комментариях после инструкции.
"Загружаем инструкцию", означает, что нужно подождать пока файл загрузится и можно будет его читать онлайн. Некоторые инструкции очень большие и время их появления зависит от вашей скорости интернета.
Загружаем инструкцию

Страница 30 / 37
7.
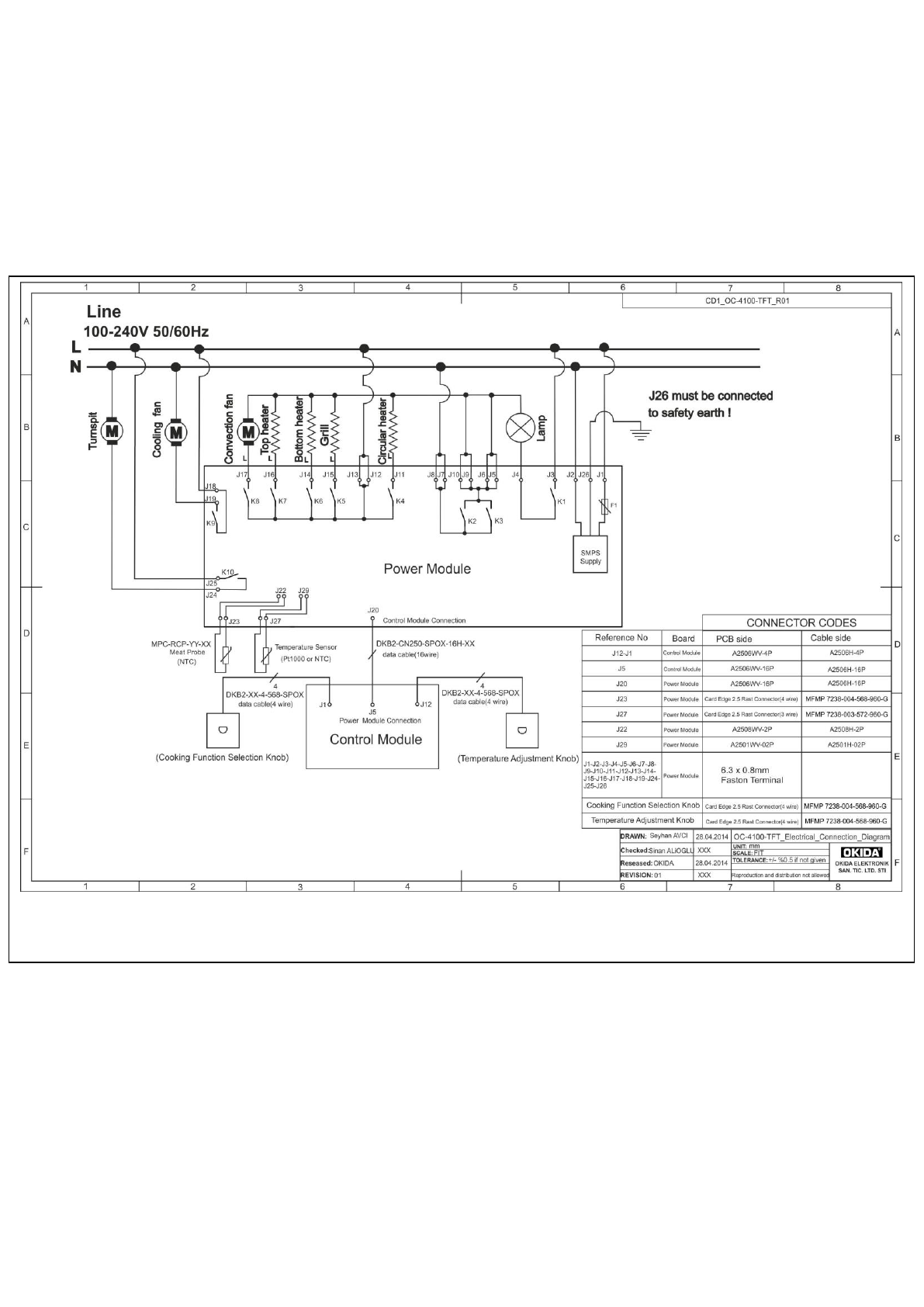
Схема электрических соединений:
Содержание
- 3 ОБЩЕЕ ОПИСАНИЕ; Удобство использования за счет 6 емкостных сенсорных кнопок.
- 4 Заданное содержимое :; Нет Позиция; Блок управления
- 5 Кабель приемника ТМ; Ручка сенсорной настройки температуры:
- 6 Вертел; Лампа; Нижний нагревательный элемент
- 7 Сигнал
- 8 Блокировка от детей
- 9 РУКОВОДСТВО ПОЛЬЗОВАТЕЛЯ:; , устройство будет включено, загорится экран (может появиться; Отключения электричества:; Экран режима ожидания; ИНФОРМАЦИЯ: Символ
- 10 Дисплей
- 11 Приготовление пищи в ручном режиме:; Нажмите кнопку
- 12 Приготовление пищи в автоматическом режиме:; Приготовление в автоматическом режиме / Мгновенное включение
- 15 термометра для мяса:
- 16 Пауза, изменение параметров и отмена приготовления:
- 17 При нажатии кнопки; получить с помощью кнопки; , когда вблизи появится
- 18 Автоматическое отключение или отмена звукового сигнала:; мигать символ
- 19 Время дня; Ayarlar menüsüne erişim,
- 20 Единица измерения температуры:
- 21 Блокировка от детей:; или возвратиться на экран главного меню с
- 23 путем нажатия и удерживания в течение 2 секунд кнопки; Сообщения об ошибке:; будет выключена. Сообщение останется на экране до нажатия кнопки; Код
- 24 Нагрузки и технические данные:; Соединители; Нагрузки; Максимальная
- 31 РАБОТА С УТАПЛИВАЕМЫМИ КНОПКАМИ; Чтобы; ВЕНТИЛЯТОР ОХЛАЖДЕНИЯ
- 32 РЕКОМЕНДАЦИИ; ПРОБЛЕМЫ; ЧИСТКА ПРИБОРА И УХОД ЗА НИМ.; ОБЩИЙ УХОД
- 33 ЗАМЕНА ЛАМПОЧКИ ДУХОВОГО ШКАФА.
- 34 ИНФОРМАЦИЯ ПО ТРАНСПОРТИРОВКЕ; ЕСЛИ ВАШ ПРИБОР ВСЕ ЕЩЕ НЕИСПРАВЛЕН, ПОЖАЛУЙСТА,
- 35 утилизации
- 36 Гарантийная карта
- 37 Гарантия не действительна в результате:
Характеристики
Остались вопросы?Не нашли свой ответ в руководстве или возникли другие проблемы? Задайте свой вопрос в форме ниже с подробным описанием вашей ситуации, чтобы другие люди и специалисты смогли дать на него ответ. Если вы знаете как решить проблему другого человека, пожалуйста, подскажите ему :)
Часто задаваемые вопросы
Как посмотреть инструкцию к Maunfeld MEOH.6711B?
Необходимо подождать полной загрузки инструкции в сером окне на данной странице
Руководство на русском языке?
Все наши руководства представлены на русском языке или схематично, поэтому вы без труда сможете разобраться с вашей моделью
Как скопировать текст из PDF?
Чтобы скопировать текст со страницы инструкции воспользуйтесь вкладкой "HTML"