Духовые шкафы Maunfeld MEOH 6711B Black - инструкция пользователя по применению, эксплуатации и установке на русском языке. Мы надеемся, она поможет вам решить возникшие у вас вопросы при эксплуатации техники.
Если остались вопросы, задайте их в комментариях после инструкции.
"Загружаем инструкцию", означает, что нужно подождать пока файл загрузится и можно будет его читать онлайн. Некоторые инструкции очень большие и время их появления зависит от вашей скорости интернета.
Загружаем инструкцию

Страница 30 / 35
7.
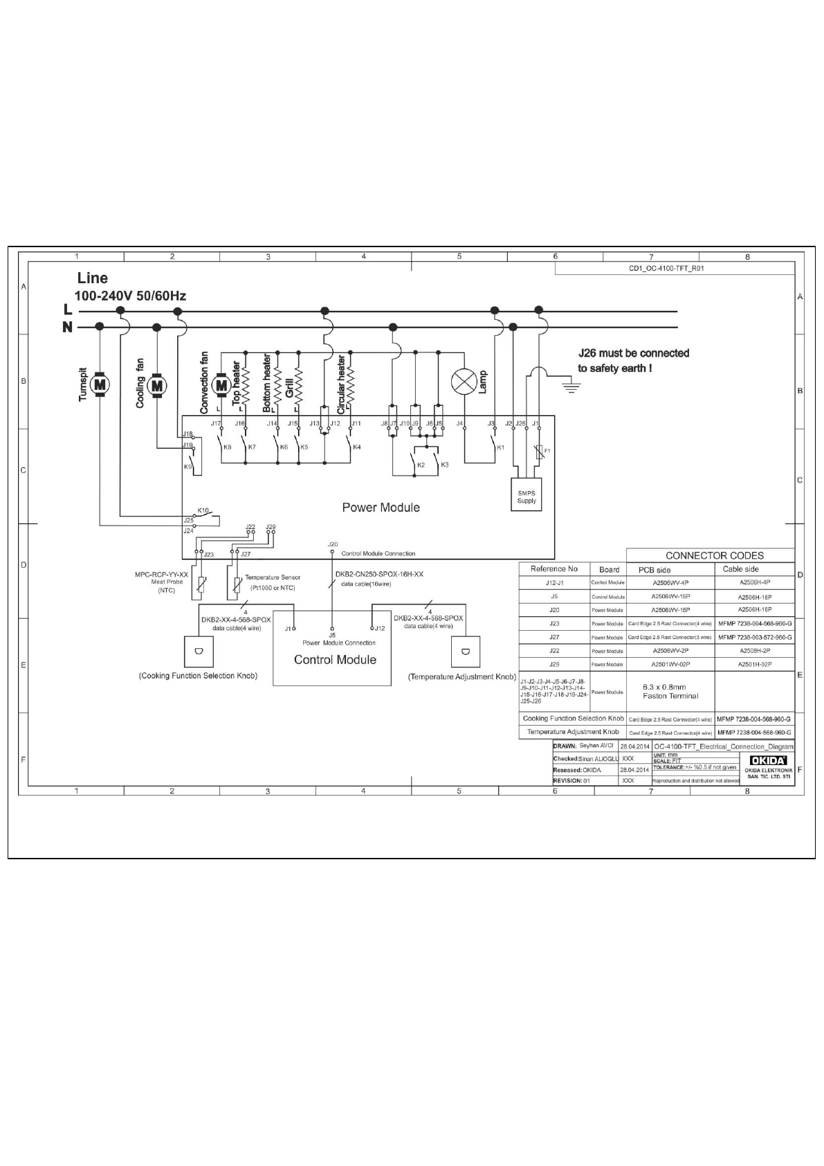
Схема электрических соединений:
Содержание
- 3 ОБЩЕЕ ОПИСАНИЕ; Удобство использования за счет 6 емкостных сенсорных кнопок.
- 4 Заданное содержимое :; Нет Позиция; Блок управления
- 5 Кабель приемника ТМ; Ручка сенсорной настройки температуры:
- 6 Вертел; Лампа; Нижний нагревательный элемент
- 7 Сигнал
- 8 Блокировка от детей
- 9 РУКОВОДСТВО ПОЛЬЗОВАТЕЛЯ:; , устройство будет включено, загорится экран (может появиться; Отключения электричества:; Экран режима ожидания; ИНФОРМАЦИЯ: Символ
- 10 Дисплей
- 11 Приготовление пищи в ручном режиме:; Нажмите кнопку
- 12 Приготовление пищи в автоматическом режиме:; Приготовление в автоматическом режиме / Мгновенное включение
- 15 термометра для мяса:
- 16 Пауза, изменение параметров и отмена приготовления:
- 17 При нажатии кнопки; получить с помощью кнопки; , когда вблизи появится
- 18 Автоматическое отключение или отмена звукового сигнала:; мигать символ
- 19 Время дня; Ayarlar menüsüne erişim,
- 20 Единица измерения температуры:
- 21 Блокировка от детей:; или возвратиться на экран главного меню с
- 23 путем нажатия и удерживания в течение 2 секунд кнопки; Сообщения об ошибке:; будет выключена. Сообщение останется на экране до нажатия кнопки; Код
- 24 Нагрузки и технические данные:; Соединители; Нагрузки; Максимальная
- 31 РАБОТА С УТАПЛИВАЕМЫМИ КНОПКАМИ; Чтобы; ВЕНТИЛЯТОР ОХЛАЖДЕНИЯ
- 32 РЕКОМЕНДАЦИИ; ПРОБЛЕМЫ; ЧИСТКА ПРИБОРА И УХОД ЗА НИМ.; ОБЩИЙ УХОД
- 33 ЗАМЕНА ЛАМПОЧКИ ДУХОВОГО ШКАФА.
- 34 ИНФОРМАЦИЯ ПО ТРАНСПОРТИРОВКЕ; ЕСЛИ ВАШ ПРИБОР ВСЕ ЕЩЕ НЕИСПРАВЛЕН, ПОЖАЛУЙСТА,
- 35 утилизации