Духовые шкафы Korting OGG 771 CFN - инструкция пользователя по применению, эксплуатации и установке на русском языке. Мы надеемся, она поможет вам решить возникшие у вас вопросы при эксплуатации техники.
Если остались вопросы, задайте их в комментариях после инструкции.
"Загружаем инструкцию", означает, что нужно подождать пока файл загрузится и можно будет его читать онлайн. Некоторые инструкции очень большие и время их появления зависит от вашей скорости интернета.

6
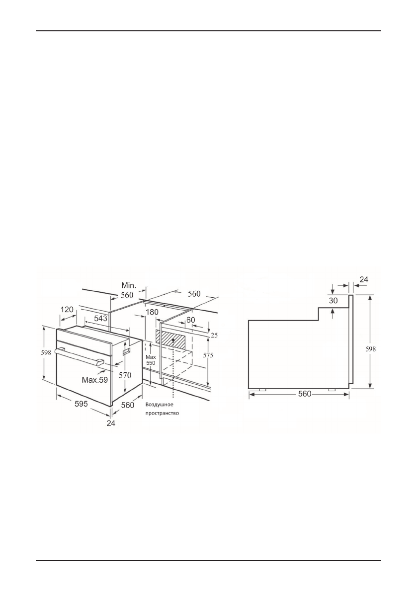
П Р И М Е Ч А Н И Е: Д Л Я ТО ГО, Ч ТО Б Ы О Б Е С П Е Ч И Т Ь СО ОТ В Е ТСТ В У Ю ЩУ Ю В Е Н Т И Л Я Ц И Ю
В О З ДУХА, Р Е КО М Е Н ДУ Е ТС Я В Ы П О Л Н И Т Ь П РО Р Е З, С М И Н И М А Л Ь Н Ы М И РА З М Е РА М И
560 X 30М М, В Н И Ж Н Е Й Ч АСТ И К УХО Н Н О Й Т У М Б Ы, В КОТО РУ Ю Б УД Е Т УСТА Н А В Л И
-
В АТ ЬС Я ДУХО В К А.
П Р Е ДУС М ОТ Р И Т Е ТА К Ж Е М И Н И М А Л Ь Н О Е РАССТО Я Н И Е В 5 М М М Е Ж ДУ В Е РХ Н Е Й
Ч АСТ Ь Ю ДУХО В К И И Н И Ж Н Е Й Ч АСТ Ь Ю РА Б ОЧ Е Й П О В Е РХ Н О СТ И: Д А Н Н О Е П РО
-
СТ РА Н СТ В О Н Е Л Ь З Я З А К Р Ы В АТ Ь П Л А Н К А М И, Л И Б О У П Л ОТ Н И Т Е Л Я М И.
П О С Л Е ТО ГО, К А К ДУХО В К А УСТА Н О В Л Е Н А, П РО В Е Р ЬТ Е, Ч ТО Б Ы Б О КО В Ы Е СТ Е Н
-
К И Н Е К АСА Л И С Ь Н И Ж Н И Х К РА Е В К УХО Н Н О Й Т У М Б Ы, А ТА К Ж Е П Р И Л Е ГА Ю Щ И Х
Ш УФЛ Я ДО К И Д В Е РО К.
ВСТРАИВАНИЕ ПРИБОРА
В Н И М А Н И Е! Н Е О Б ХОД И М О О Б Е С П Е Ч И Т Ь СО ОТ В Е ТСТ В У Ю ЩУ Ю В Е Н Т И Л Я Ц И Ю В О З
-
ДУХА В З А Д Н Е Й Ч АСТ И П Р И Б О РА; П Р И ЭТО М Н Е О Б ХОД И М О СО Б Л ЮД АТ Ь Р Е КО М Е Н
-
ДУ Е М Ы Е РА З М Е Р Ы Д Л Я В Ы Р Е З А. П Р И Н Е О Б ХОД И М О СТ И, В Ы П О Л Н И Т Е Б О Л Ь Ш И Й
В Ы Р Е З.
Рис.1












