Дрели Bosch EasyImpact 570 (0603130120) - инструкция пользователя по применению, эксплуатации и установке на русском языке. Мы надеемся, она поможет вам решить возникшие у вас вопросы при эксплуатации техники.
Если остались вопросы, задайте их в комментариях после инструкции.
"Загружаем инструкцию", означает, что нужно подождать пока файл загрузится и можно будет его читать онлайн. Некоторые инструкции очень большие и время их появления зависит от вашей скорости интернета.

116
| Latviešu
1 609 92A 29Z | (8.8.16)
Bosch Power Tools
– Lai atbrīvotu iestatīšanas gredzenu
17
, pagrieziet to pa
kreisi .
– Stingri turot papildrokturi
9
, pārbīdiet vadotnes stieni pa-
pildroktura virzienā, līdz tas fiksējas ar skaidri sadzirdamu
troksni.
Putekļu uzsūkšana/Putekļu tvertne
Dažu materiālu, piemēram, svinu saturošu krāsu, dažu
koksnes šķirņu, minerālu un metālu putekļi var būt kaitīgi
veselībai. Pieskaršanās šādiem putekļiem vai to ieelpoša-
na var izraisīt alerģiskas reakcijas vai elpošanas ceļu sa-
slimšanu elektroinstrumenta lietotājam vai darba vietai tu-
vumā esošajām personām.
Atsevišķu materiālu putekļi, piemēram, putekļi, kas rodas,
zāģējot ozola vai dižskābarža koksni, var izraisīt vēzi, īpaši
tad, ja koksne iepriekš ir tikusi ķīmiski apstrādāta (ar hro-
mātu vai koksnes aizsardzības līdzekļiem). Azbestu saturo-
šus materiālus drīkst apstrādāt vienīgi personas ar īpašām
profesionālām iemaņām.
– Izmantojiet apstrādājamajam materiālam piemērotu
putekļu uzsūkšanas ierīci.
– Darba vietai jābūt labi ventilējamai.
– Darba laikā ieteicams izmantot masku elpošanas ceļu
aizsardzībai ar filtrēšanas klasi P2.
Ievērojiet jūsu valstī spēkā esošos priekšrakstus, kas attie-
cas uz apstrādājamo materiālu.
Nepieļaujiet putekļu uzkrāšanos darba vietā.
Putekļi var
viegli aizdegties.
Izmantojiet putekļu tvertni tikai laikā, kad notiek beto-
na vai akmens apstrāde.
Koka un plastmasas skaidas var
viegli nosprostot putekļu aizvadīšanas ceļus.
Uzmanību, aizdegšanās briesmas! Neveiciet metāla
urbšanu, ja uz elektroinstrumenta ir nostiprināta pu-
tekļu tvertne.
Karstās metāla skaidas var aizdedzināt pu-
tekļu tvertnes daļas.
Lai varētu optimāli lietot putekļu tvertni, lūdzam ievērot šādus
ieteikumus:
– Sekojiet, lai urbšanas laikā putekļu tvertne būtu cieši pie-
spiesta urbjamā priekšmeta virsmai vai sienai. Tas atvieg-
los urbumu veidošanu taisnā leņķī attiecībā pret virsmu.
– Sasniedzot vēlamo urbuma dziļumu, vispirms izvelciet urbi
no urbuma un tikai tad izslēdziet triecienurbjmašīnu.
– Izmantojiet putekļu aizsarggredzenu
15
, īpaši tad, ja urb-
šana tiek veikta ar liela diametra urbjiem. Nomainiet aizsar-
ggredzenu, ja tas ir bojāts.
Darbinstrumenta nomaiņa
Bezatslēgas urbjpatrona (EasyImpact 500/550/550 +
Drill Assistant/5500) (attēls H)
Stingri satveriet aizmugurējo noturaploci
2
uz bezatslēgas
urbjpatronas
3
un grieziet priekšējo noturaploci
1
virzienā
,
līdz darbinstrumentu kļūst iespējams ievietot urbjpatronā. Ie-
vietojiet darbinstrumenta kātu urbjpatronas atvērumā.
Stingri satveriet aizmugurējo aploci
2
uz bezatslēgas urbjpat-
ronas
3
un ar roku spēcīgi grieziet tās priekšējo aploci
1
virzie-
nā
.
Bezatslēgas urbjpatrona (EasyImpact 570/5700/6000)
(attēls I)
Ja nav nospiests ieslēdzējs
7
, instrumenta darbvārpsta ir fik-
sēta nekustīgi. Tas ļauj ātri, ērti un vienkārši nomainīt urbjpat-
ronā iestiprināto darbinstrumentu.
Atveriet bezatslēgas urbjpatronu
3
, griežot tās aploci virzienā
, līdz urbjpatronā kļūst iespējams ievietot darbinstrumenta
kātu. Ievietojiet darbinstrumentu urbjpatronā.
Ar roku spēcīgi pagrieziet bezatslēgas urbjpatronas
3
aploci
virzienā
, līdz vairs nav dzirdams sprūda mehānisma rakstu-
rīgais troksnis. tas nozīmē, ka urbjpatrona ir aizvērusies, au-
tomātiski fiksējot darbinstrumenta kātu.
Lai izņemtu darbinstrumentu, atveriet urbjpatronu, griežot
tās aploci pretējā virzienā.
Zobaploces urbjpatrona (EasyImpact 540) (attēls J)
Nomainot urbjpatronu, uzvelciet aizsargcimdus.
Ilgsto-
ši strādājot ar instrumentu, urbjpatrona var stipri sakarst.
Griežot zobaploces urbjpatronas
28
aploci, atveriet urbjpat-
ronu tik tālu, lai tajā varētu ievietot darbinstrumentu. Ievieto-
jiet darbinstrumentu urbjpatronā.
Iestipriniet darbinstrumentu, pārmaiņus ievietojot urbjpatro-
nas atslēgu
27
šim nolūkam paredzētajos zobaploces urbjpat-
ronas
28
atvērumos un ar to griežot urbjpatronas aploci.
Darbinstrumenti skrūvēšanai
Iestiprinot skrūvgrieža uzgaļus
25
, vienmēr lietojiet universā-
lo uzgaļu turētāju
24
. Izmantojiet tikai tādus skrūvgriežu uzga-
ļus, kas atbilst ieskrūvējamo skrūvju galvām.
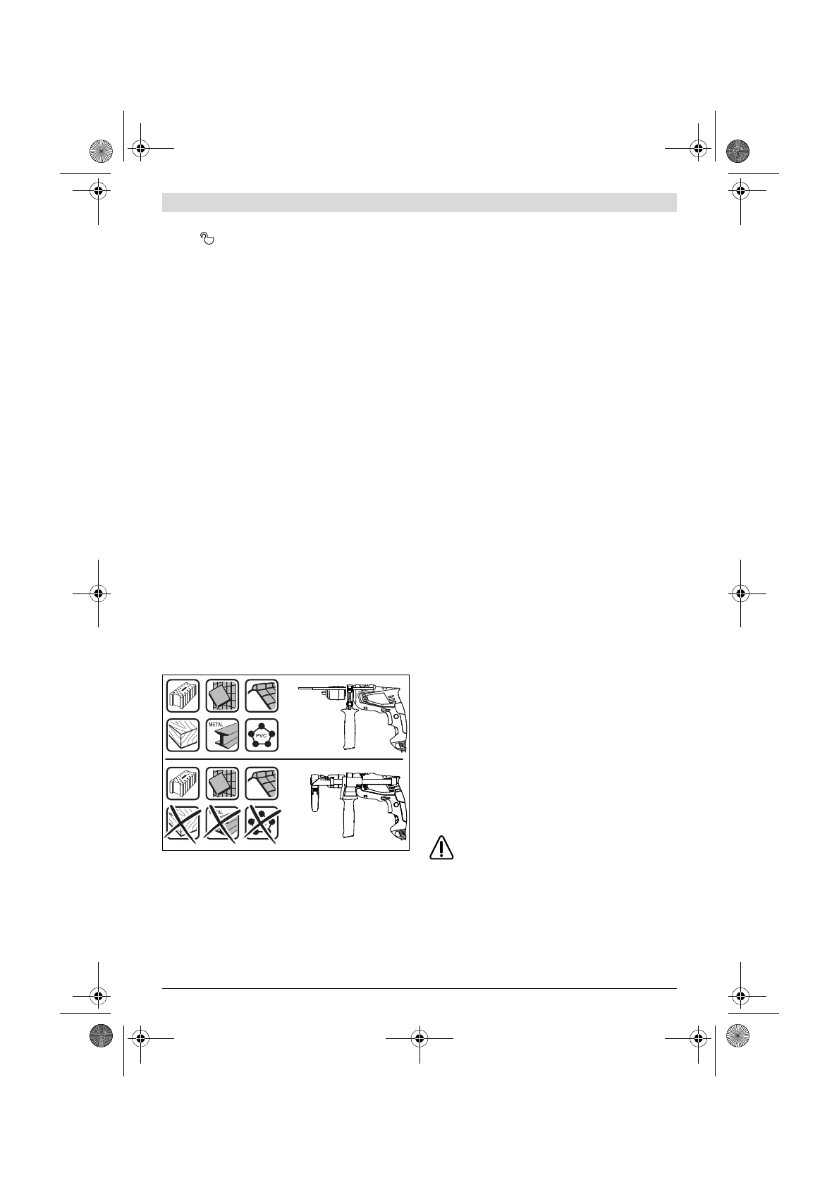
Veicot skrūvēšanu, vienmēr pārvietojiet pārslēdzēju „Urbša-
na/Triecienurbšana“
4
pret apzīmējumu „Urbšana“.
Urbjpatronas nomaiņa
Elektroinstrumentiem bez darbvārpstas fiksēšanas
urbjpatronas nomaiņa jāveic Bosch pilnvarotā elektro-
instrumentu remonta darbnīcā.
Urbjpatrona jāpieskrūvē ar griezes momentu ap-
tuveni 30 – 35 Nm.
Lietošana
Uzsākot lietošanu
Pievadiet instrumentam pareizu spriegumu! Spriegu-
mam elektrotīklā jāatbilst vērtībai, kas norādīta instru-
menta marķējuma plāksnītē. Elektroinstrumenti, kas
paredzēti 230 V spriegumam, var darboties arī no
220 V elektrotīkla.
OBJ_BUCH-2913-001.book Page 116 Monday, August 8, 2016 9:40 AM
Содержание
- 37 Указания по безопасности
- 38 Указания по технике безопасности для дрелей; Описание продукта и услуг; Применение по назначению
- 39 Изображенные составные части
- 40 Данные по шуму и вибрации
- 41 Сборка
- 42 Отсос пыли/контейнер для пыли; Замена рабочего инструмента
- 43 Смена сверлильного патрона; Работа с инструментом; Включение электроинструмента
- 44 Техобслуживание и сервис; Техобслуживание и очистка; Утилизация
Характеристики
Остались вопросы?Не нашли свой ответ в руководстве или возникли другие проблемы? Задайте свой вопрос в форме ниже с подробным описанием вашей ситуации, чтобы другие люди и специалисты смогли дать на него ответ. Если вы знаете как решить проблему другого человека, пожалуйста, подскажите ему :)