Домофоны COMMAX белый CDV-43M Metalo - инструкция пользователя по применению, эксплуатации и установке на русском языке. Мы надеемся, она поможет вам решить возникшие у вас вопросы при эксплуатации техники.
Если остались вопросы, задайте их в комментариях после инструкции.
"Загружаем инструкцию", означает, что нужно подождать пока файл загрузится и можно будет его читать онлайн. Некоторые инструкции очень большие и время их появления зависит от вашей скорости интернета.

4
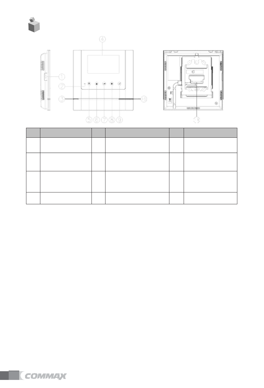
2. Название частей
No.
название
название
No.
название
1
Включение питания
5
Кнопка наблюдения /
движения вниз
9
Кнопка вызова / ответа
2
Светодиодный
индикатор состояния
6
Кнопка интерфона /
кнопка выбора
10
Динамик
3
Микрофон
7
Кнопка отпирания замка /
движения вверх
11
Терминал для
подключения внешних
устройств
4
Монитор
8
Кнопка меню
1.
Включение питания
2.
Светодиодный индикатор состояния:
голубой светодиод указывает, что монитор
включен
3.
Микрофон
4.
Монитор
5.
Кнопка наблюдения / движение вниз:
нажмите, чтобы просмотреть изображение
от камеры вызывной панели. В меню используется для движения вниз по меню.
6.
Кнопка интерфона / кнопка выбора:
нажмите, чтобы вызвать интерфон. В
меню используется для выбора.
7.
Кнопка отпирания замка / движение вверх:
Нажмите, чтобы открыть дверь
посетител
ю.
Нажмите для движения вверх по меню.
8.
Кнопка меню:
нажмите, чтобы войти в меню.
9.
Кнопка ответа / вызова:
чтобы вызвать или ответить посетителю.
10.
Динамик
11.
Терминал для подключения внешних устройств:
терминал для обновления
устройства, подключения вызывной панели или интерфона .
Содержание
- 3 Приветствие; Благодарим вас за выбор продукции COMMAX.; Содержание
- 4 Безопасное использование; Предупреждение; Пи
- 5 Ухо
- 7 Вызов от посетителя; Если вы нажмете кнопку вызова/ответа, вы сможете переговорить с; Вызов при помощи интеркома; звучит как от монитора, так и от интеркома.
- 8 Наблюдение; функция просмотра изображения от камеры вызывной; Настройки; или в режиме ожидания.; параметров в разделе DOOR VIDEO SET до необходимого пункта.; Перегрузка; : сброс всех настроек до заводских; Как регулировать; Двигайтесь до пункта RESET (перегрузка) в меню DOOR VIDEO SET.
- 9 Громкость динамика: настройка уровня громкости звука ресивера.; Формат дисплея: настройка соотношения сторон дисплея.; возврат в меню настроек УТИЛИТЫ
- 10 сброс всех настроек до заводских; громкости будут возвращены к заводским).; Установка
- 12 подключения 4 линий между монитором и вызывной панелью.; Подключение интеркома; подключения 4 линий между монитором и интеркомом.
- 13 Комплектация поставки; Изображение












