DE-LUXE Deluxe TG2_400215F-000 - Инструкция по эксплуатации

DE-LUXE Deluxe TG2_400215F-000

Варочная панель DE-LUXE Deluxe TG2_400215F-000 - инструкция пользователя по применению, эксплуатации и установке на русском языке. Мы надеемся, она поможет вам решить возникшие у вас вопросы при эксплуатации техники.

Если остались дополнительные вопросы — свяжитесь с нами через контактную форму.

1 Страница 1
2 Страница 2
3 Страница 3
4 Страница 4
5 Страница 5
6 Страница 6
7 Страница 7
8 Страница 8
9 Страница 9
10 Страница 10
11 Страница 11
12 Страница 12
13 Страница 13
14 Страница 14
15 Страница 15
16 Страница 16
17 Страница 17
18 Страница 18
19 Страница 19
20 Страница 20
21 Страница 21
22 Страница 22
23 Страница 23
24 Страница 24
25 Страница 25
26 Страница 26
27 Страница 27
28 Страница 28
Страница: / 28
Загрузка инструкции

1

СОДЕРЖАНИЕ

Общие указания

2

Требования по технике безопасности 3
Утилизация 5
Комплектность 5
Технические характеристики 6
Подготовка к работе 7
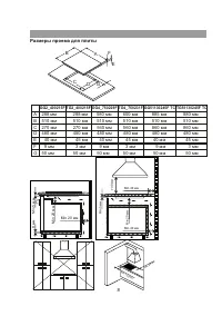
Установка 7
Подключение к электросети 10
Подсоединение к газопроводу 11
Описание плиты 14
Очистка и уход 19
Предупреждение и индикация ошибок 23
Гарантийные обязательства 25
Свидетельство о приемке и продаже 26
Талон на установку 26
Талоны на гарантийный ремонт 27

"Загрузка инструкции" означает, что нужно подождать пока файл загрузится и можно будет его читать онлайн. Некоторые инструкции очень большие и время их появления зависит от вашей скорости интернета.

Характеристики

Другие модели - Варочные панели DE-LUXE

Все варочные панели DE-LUXE