Zanussi GWH 10 Fonte Glass Carbon - инструкции и руководства
Водонагреватель Zanussi GWH 10 Fonte Glass Carbon - инструкции пользователя по применению, эксплуатации и установке на русском языке читайте онлайн в формате pdf
Инструкции:
Инструкция по эксплуатации Zanussi GWH 10 Fonte Glass Carbon
1
2
3
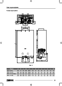
4
5
6
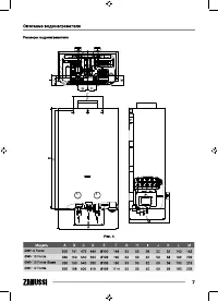
7
8
9
10
11
12
13
14
15
16
17
18
19
20
21
22
23
24
25
26
27
28
29
30
31
32
33
34
35
36
37
38
39
40
Zanussi Водонагреватели Инструкции
-
Zanussi 3 logic 6 5 S
Инструкция по эксплуатации
-
Zanussi 3-logic 3,5 S
Инструкция по эксплуатации
-
Zanussi 3-logic S
Инструкция по эксплуатации
-
Zanussi TS 5.5
Инструкция по эксплуатации
-
Zanussi ZWH S 100 Orfeus
Инструкция по эксплуатации
-
Zanussi ZWH S 100 Smalto
Инструкция по эксплуатации
-
Zanussi ZWH S 30 Orfeus
Инструкция по эксплуатации
-
Zanussi ZWH S 30 Smalto
Инструкция по эксплуатации
-
Zanussi ZWH S 50 Orfeus
Инструкция по эксплуатации
-
Zanussi ZWH S 50 Smalto
Инструкция по эксплуатации
-
Zanussi ZWH S 80 Orfeus
Инструкция по эксплуатации
-
Zanussi ZWH S 80 Smalto DL
Инструкция по эксплуатации
-
Zanussi ZWH/EU50
Инструкция по эксплуатации
-
Zanussi ZWH/S 10 Mini O
Инструкция по эксплуатации
-
Zanussi ZWH/S 10 Mini U
Инструкция по эксплуатации
-
Zanussi ZWH/S 100 Artendo WiFi
Инструкция по эксплуатации
-
Zanussi ZWH/S 100 Premiero
Инструкция по эксплуатации
-
Zanussi ZWH/S 100 Smalto DL
Инструкция по эксплуатации
-
Zanussi ZWH/S 100 Splendore
Инструкция по эксплуатации
-
Zanussi ZWH/S 100 Splendore (Silver)
Инструкция по эксплуатации