Страница 4 - ПРАВИЛА И УСЛОВИЯ БЕЗОПАСНОЙ ЭКСПЛУАТАЦИИ; РЕКОМЕНДАЦИИ ПО ТЕХНИКЕ БЕЗОПАСНОСТИ; БУДЬТЕ ОСТОРОЖНЫ! Опасность поражения электрическим током!
4 Встраиваемый электрический духовой шкаф EOV16*****, EOV18***** ПРАВИЛА И УСЛОВИЯ БЕЗОПАСНОЙ ЭКСПЛУАТАЦИИ Перед эксплуатацией внимательно изучите и соблюдайте настоящие инструкции по экс - плуатации и установке, а также все документы, прилагающиеся к прибору. Сохраните до - кументацию для дальнейше...
Страница 5 - УСТАНОВКА; БЕЗОПАСНОЕ ПОДСОЕДИНЕНИЕ К ЭЛЕКТРОСЕТИ
5 • Данный прибор не предназначен для использования людьми (включая детей) с огра - ниченными физическими, сенсорными и умственными способностями, с отсутствием опыта и знаний, если только за ними не осуществляется надлежащий контроль и им даны соответствующие инструкции по использованию прибора лиц...
Страница 6 - При подключении к электросети:
6 • Электрический вывод должен быть легко доступен, чтобы прибор можно было легко отключить от электросети в чрезвычайном случае. Иначе должна быть обеспечена воз - можность отключения электропитания с помощью специального выключателя в систе - ме электропроводки. При подключении к электросети: • Ук...
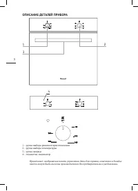
Страница 7 - ОПИСАНИЕ ДЕТАЛЕЙ ПРИБОРА
7 ОПИСАНИЕ ДЕТАЛЕЙ ПРИБОРА 4 1 2 3 1 – ручка выбора режимов приготовления 2 – ручка выбора температуры 3 – ручка дверцы 4 – подсветка-индикатор Примечание: изображения панели управления даны для справки, изменения в дизайне панели могут быть внесены производителем без предварительного уведомления.
Страница 8 - Необходимые примечания для установки:
8 Аксессуары: A - универсальный лоток, используется для приготовления кондитерских изделий (булочек, печенья и т.д.), других запеченных блюд, а также для размораживания. B - решетка для гриля, используется для жарки и в качестве подставки-опоры для форм для запекания, жарки и размораживания пищи на ...
Страница 9 - СХЕМА ВСТРАИВАНИЯ
9 - не закрывайте необходимые для вентиляции промежутки между нишей для встраивания и печью. - вблизи прибора не должно быть огнеопасных и горючих материалов, таких как занавески, масло, тряпки и т.д., которые могут воспламениться. - установка духового шкафа вблизи холодильников или морозильных каме...
Страница 10 - ИСПОЛЬЗОВАНИЕ ДУХОВОГО ШКАФА; ПЕРВИЧНОЕ ТЕХНИЧЕСКОЕ ОБСЛУЖИВАНИЕ И ЧИСТКА; РЕЖИМЫ РАБОТЫ ДУХОВОГО ШКАФА
10 ИСПОЛЬЗОВАНИЕ ДУХОВОГО ШКАФА Как только духовка установлена, необходимо удалить все заводские защитные материалы и снять пластиковую пленку с элементов духовки. При первом включении может появиться запах дыма или гари. Это нормальное явление, не означающее неисправность: рекомендуется прогреть пу...
Страница 11 - ПРИГОТОВЛЕНИЕ НА ГРИЛЕ; ТЕХНИЧЕСКОЕ ОБСЛУЖИВАНИЕ И ЧИСТКА
11 Верхний нагревательный элемент: наибольший нагрев поверхности блюда. Оптима - лен для финальной стадии приготовления. Гриль: режим оптимален для для жарки продуктов на гриле и образования румяной корочки - положите их на решетку и установите ее на самый верхний уровень. Затем уста - новите на ниж...
Страница 12 - Замена лампочки
12 • Вытирайте стеклянные поверхности специальными средствами для очистки стекла. • Не чистите вашу плиту пароочистителями. • Не используйте легковоспламеняющиеся вещества для очистки плиты, например: растворители, бензин или разнообразные кислоты. • Не мойте детали плиты в посудомоечной машине. • Н...
Страница 13 - Очистка паром; Экономия электроэнергии; СОВЕТЫ ПО ПРИГОТОВЛЕНИЮ ПИЩИ; Выпечка
13 Очистка паром • Наполните небольшую жаропрочную емкость водой (около 250 мл, 1 стакан). • Установите ее на нижний уровень духовки. • Закройте дверцу духовки. • Установите температуру около 50°С и нижний нагрев духовки. • Нагревайте духовку около 30 минут. • Откройте дверцу духовки, протрите отсек...
Страница 14 - Приготовление на гриле
14 Приготовление рыбы и мяса При приготовлении мяса, дичи и рыбы термостат следует устанавливать на температуру в интервале от 180 °С до 220 °С.При приготовлении мяса «с кровью», которое должно хорошо запечься снаружи, а внутри оставаться сочным и нежным, его сначала следует в течение короткого врем...
Страница 15 - КОМПЛЕКТАЦИЯ ПРОДУКЦИИ:
15 КОМПЛЕКТАЦИЯ ПРОДУКЦИИ: Артикул Наименование Комплектация EOV16***** Независимый электрический духовой шкаф 60 см 1 универсальный противень, 1 решетка, боковые хромирован - ные решетки, инструкция по экс - плуатации. EOV18***** Независимый электрический духовой шкаф 60 см 1 универсальный противен...