Страница 3 - Оглавление
Оглавление 2 Инструкция по эксплуатации и монтажу actoSTOR 0020071925_01 Оглавление 1 Указания по документации ......................................... 3 1.1 Хранение документации .......................................................... 3 1.2 Используемые значки .....................................
Страница 4 - Указания по документации; Указания по документации 1
Инструкция по эксплуатации и монтажу actoSTOR 0020071925_01 3 1 Указания по документации Следующие указания представляют собой «путеводитель» по всей документации. За ущерб, вызванный несоблюдением дан-ной инструкции, мы не несем никакой ответственности. Совместно действующая документация При эксплу...
Страница 5 - Пояснение вида и источника опасности.; Техника безопасности
4 Инструкция по эксплуатации и монтажу actoSTOR 0020071925_01 2 Техника безопасности 2.1 Соблюдение указаний по технике безопасности и предупреждений При эксплуатации и монтаже соблюдайте общие правила техники безопасности и предупреждения, которые могут быть приведены перед описанием действий. 2.1....
Страница 6 - заказать; Техника безопасности 2
Инструкция по эксплуатации и монтажу actoSTOR 0020071925_01 5 2.4.2 Клеммная колодка для электрического подключения Наряду с зажимами для сетевого подключения, в блоке электро-ники actoSTOR предусмотрено дополнительное гнездо для элект-рического подключения одного из следующих узлов: Циркуляционный ...
Страница 7 - Использование по назначению; Описание аппарата
6 Инструкция по эксплуатации и монтажу actoSTOR 0020071925_01 3 Описание аппарата Водонагреватель VIH K 300 образует с газовым конденсацион-ным котлом ecoVIT VKK 226…656/2 и /3 или с мазутным кон-денсационным котлом icoVIT идеальную техническую и оптичес-кую комбинацию.Для того, чтобы можно было исп...
Страница 8 - Эксплуатация; Ввод водонагревателя в эксплуатацию; Опасность получения ожогов из-за горячей воды!; Эксплуатация 4
Инструкция по эксплуатации и монтажу actoSTOR 0020071925_01 7 4 Эксплуатация 4.1 Ввод водонагревателя в эксплуатацию При вводе водонагревателя в эксплуатацию соблюдайте следую-щее: Открыт трубопровод горячей воды? Если нет, откройте его.Заполнен водонагреватель водой? Проверьте это, открыв точку отб...
Страница 10 - Подключение; Требования к месту установки; Подключение 5
Инструкция по эксплуатации и монтажу actoSTOR 0020071925_01 9 5 Подключение 5.1 Требования к месту установки Вы можете устанавливать actoSTOR на расстоянии не более 50 см до ecoVIT/icoVIT. До этого расстояния можно исполь-зовать электрические кабели и комплект для нагрева водона-гревателя. При выбор...
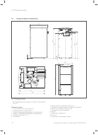
Страница 11 - Размеры аппарата и подключений
10 Инструкция по эксплуатации и монтажу actoSTOR 0020071925_01 5.3 Размеры аппарата и подключений 1021 1061 1010 60 60 60 90 5 1 4 2 1201 40 3 570 691 1221 16-32 1) 10 11 14 13 12 17 15 6 16 671 691 Рис. 5.2 Размерный чертеж 1) Ножки водонагревателя, регулируемые по высоте на 16 мм (раствор ключа 30...
Страница 14 - Ввод в эксплуатацию; Ввод установки в эксплуатацию; Нагнетательный насос горячей воды (; Снимите верхнюю часть теплоизоляции (; Ввод в эксплуатацию 6
Инструкция по эксплуатации и монтажу actoSTOR 0020071925_01 13 6 Ввод в эксплуатацию 6.1 Ввод установки в эксплуатацию 1 Рис. 6.1 Регулировка нагнетательного насоса горячей воды Нагнетательный насос горячей воды ( 1 ) должен быть отрегулиро- ван соответственно производительности подключенного аппара...
Страница 15 - Осмотры и техническое обслуживание; Защитный анод
14 Инструкция по эксплуатации и монтажу actoSTOR 0020071925_01 6.2 Инструктаж пользователя Проинформируйте пользователя о правилах обращения и работе аппарата. При этом принять следующие меры: Передайте пользователю на хранение инструкцию по мон-тажу и эксплуатации, а также остальную документацию на...
Страница 16 - Гарантийное и сервисное обслуживание
Инструкция по эксплуатации и монтажу actoSTOR 0020071925_01 15 8 Гарантийное и сервисное обслуживание и Гарантия завода-изготовителя. Россия. 8.1 Гарантийное и сервисное обслуживание Актуальную информацию по организациям, осуществляющим гарантийное и сервисное обслуживание продукции Vaillant, Вы мож...
Страница 17 - Строго соблюдайте действующие в Вашей стране; Утилизация упаковки и аппарата
16 Инструкция по эксплуатации и монтажу actoSTOR 0020071925_01 9 Утилизация упаковки и аппарата Как водонагреватель Vaillant actoSTOR, так и его упаковка состоят большей частью из материалов, которые можно подверг-нуть вторичной переработке. 9.1 Аппарат Как неисправный водонагреватель, так и все при...
Страница 18 - 0 Технические данные; Технические данные 10
Инструкция по эксплуатации и монтажу actoSTOR 0020071925_01 17 10 Технические данные actoSTOR VIH - K 300 с VKK 226 VKK 286 VKK 366 VKK 476 VKK 656 Единица измерения Номинальный объем 150 150 150 150 150 л Средний номинальный расход 2,3 2,3 2,3 2,3 2,3 м 3 /ч Потери давления при среднем номинальном ...
Страница 19 - 0 Технические данные
18 Инструкция по эксплуатации и монтажу actoSTOR 0020071925_01 actoSTOR VIH - K 300 с VKO 246 - 14 kW VKO 246 - 18 kW VKO 246 - 23 kW Единица измерения Номинальный объем 150 150 150 л Средний номинальный расход 2,3 2,3 2,3 м 3 /ч Потери давления при среднем номинальном расходе 300 300 300 мбар Длите...