Страница 2 - СОДЕРЖАНИЕ
2 Руководство по эксплуатации СОДЕРЖАНИЕ 1. ПРЕДИСЛОВИЕ ...................................................................................................................................................................................................... 3 2. ВАЖНАЯ ИНФОРМАЦИЯ .........................
Страница 3 - печатывание запрещается.
Руководство по эксплуатации 3 1. ПРЕДИСЛОВИЕ Благодарим Вас за выбор нашей портативной дизельной электростанции.Эта электростанция создана нами с учетом новейших отечественных и зарубежных техно- логий. Она отличается современным дизайном, компактностью, большой мощностью, удоб- ством в эксплуатации...
Страница 4 - УСЛОВИЯ ЭКСПЛУАТАЦИИ ЭЛЕКТРОСТАНЦИИ; • Температура окружающей среды при эксплуатации: от -15°С до +55°С; МЕРЫ БЕЗОПАСНОСТИ; ПРЕДОТВРАЩЕНИЕ ТРАВМИРОВАНИЯ И ПОЖАРА
4 Руководство по эксплуатации 3. УСЛОВИЯ ЭКСПЛУАТАЦИИ ЭЛЕКТРОСТАНЦИИ • Температура окружающей среды при эксплуатации: от -15°С до +55°С • Высота над уровнем моря: ниже 1000м. • Относительная влажность: от 30% до 90% • Температура окружающей среды при транспортировке и хранении установки: от -25°С до...
Страница 5 - ПРЕДОТВРАЩЕНИЕ ОЖОГОВ; короткого замыкания или поражения электрическим током.; ОСНОВНЫЕ ЧАСТИ ГЕНЕРАТОРНОЙ УСТАНОВКИ; Ниже представлены основные детали генераторной установки.
Руководство по эксплуатации 5 4.3 ПРЕДОТВРАЩЕНИЕ ОЖОГОВ • Во время работы электростанции или сразу после ее остановки не прикасайтесь к глушите- лю и корпусу двигателя т.к. данные детали очень горячие. 4.4 ПРЕДОТВРАЩЕНИЕ ПОРАЖЕНИЯ ТОКОМ ИЛИ КОРОТКОГО ЗАМЫКАНИЯ • Во избежание поражения электрическим ...
Страница 6 - ПРЕДВАРИТЕЛЬНЫЙ ТЕХНИЧЕСКИЙ КОНТРОЛЬ; ВЫБОР И ИСПОЛЬЗОВАНИЕ ДИЗЕЛЬНОГО ТОПЛИВА; риться, что приведет к нарушению работы электростанции.; ВЫБОР И ИСПОЛЬЗОВАНИЕ МОТОРНОГО МАСЛА.; воздушного охлаждения.
6 Руководство по эксплуатации 6. ПРЕДВАРИТЕЛЬНЫЙ ТЕХНИЧЕСКИЙ КОНТРОЛЬ 6.1 ВЫБОР И ИСПОЛЬЗОВАНИЕ ДИЗЕЛЬНОГО ТОПЛИВА 1. Используйте легкое дизельное масло, которое подходит для эксплуатации дизельного двигателя.2. Использование топливного масла:• Храните топливное масло в чистой таре, в местах, недост...
Страница 7 - сокращению службы электростанции.; ПРОВЕРКА, ПРОМЫВКА И ЗАМЕНА ФИЛЬТРОЭЛЕМЕНТОВ ВОЗДУШНОГО; те его на внутренний фильтроэлемент.
Руководство по эксплуатации 7 SAE30, минеральное - летнее.SAE10W30, полусинтетическое - всесезонное.SAE5W30, синтетическое – зимнее.Запрещается смешивать разные сорта масел. ПРЕДУПРЕЖДЕНИЕ! При использовании моторного масла низкого качества или его несвоевременной замене, движущиеся части двигателя ...
Страница 8 - строму износу двигателя.; ПРОВЕРКИ ПЕРЕД ЗАПУСКОМ; тростанция надежно заземлена.; ОБКАТКА ЭЛЕКТРОСТАНЦИИ
8 Руководство по эксплуатации Замените фильтроэлементы, если выходная мощность сокращается или меняется цвет выхлопных газов.Не запускайте электростанцию без установленных фильтроэлементов, это приведет к бы- строму износу двигателя. УСТАНОВКА: 1. Наденьте корпус воздушного фильтра и закрутите бараш...
Страница 9 - дра и залейте в двигатель 2 см3 моторного масла.
Руководство по эксплуатации 9 7. ЗАПУСК ГЕНЕРАТОРА 1. Подключите аккумуляторную батарею. Правильно соблюдайте полярность при подключении.2. Откройте топливный кран. 3. Установите рычаг пуска двигателя в положение «Включено» (ON).4. Вставьте ключ запуска в положение «ВЫКЛ».5. Поверните ключ запуска в...
Страница 10 - строя и не подлежит ремонту по гарантии.; ВО ВРЕМЯ РАБОТЫ ЭЛЕКТРОСТАНЦИИ; тель, чтобы выявить причины неполадок и устранить их.
10 Руководство по эксплуатации 7.1 ИСПОЛЬЗОВАНИЕ СВЕЧИ НАКАЛИВАНИЯ (ДОПОЛНИТЕЛЬНАЯ ОПЦИЯ) Для облегчения запуска двигателя генератора при отрицательных температурах во впуск- ном коллекторе двигателя установлена свеча накаливания. Свеча накаливания подогре- вает воздух, поступающий в камеру сгорания...
Страница 11 - Не заливайте топливо во время работы двигателя.; НАГРУЗКИ НА ДВИГАТЕЛЬ; Подключайте поочередно нагрузки на двигатель.; ПОДКЛЮЧЕНИЕ НАГРУЗКИ ПЕРЕМЕННОГО ТОКА; электросистемы оборудования, в котором он установлен.
Руководство по эксплуатации 11 Не заливайте топливо во время работы двигателя. 8.3 НАГРУЗКИ НА ДВИГАТЕЛЬ ПРЕДУПРЕЖДЕНИЕ! Подключайте поочередно нагрузки на двигатель. Не включайте осветительные приборы одновременно с другими нагрузками. 8.3.1 ПОДКЛЮЧЕНИЕ НАГРУЗКИ ПЕРЕМЕННОГО ТОКА 1. Подождите, пока ...
Страница 12 - ПОТРЕБЛЯТЬ ВЫСОКИЙ ПУСКОВОЙ ТОК ПРИ ЗАПУСКЕ.; чить у производителя инструмента.
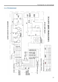
12 Руководство по эксплуатации 8.3.3 ПОТРЕБИТЕЛИ, ОСОБЕННО ПРИВОДИМЫЕ В ДЕЙСТВИЕ ЭЛЕКТРОДВИГАТЕЛЕМ, МОГУТ ПОТРЕБЛЯТЬ ВЫСОКИЙ ПУСКОВОЙ ТОК ПРИ ЗАПУСКЕ. Для расчета суммарной нагрузки необходимо знать номинальную мощность потребителей и коэффициенты (К) пускового тока (если у нагрузок есть реактивная ...
Страница 13 - Пример расчета необходимой мощности электростанции:; электростанция с номинальной мощностью 3125 Вт.; ОСТАНОВКА ДВИГАТЕЛЯ; зом вы предотвратите коррозию двигателя.
Руководство по эксплуатации 13 Пример расчета необходимой мощности электростанции: необходимо подключить ручной электрический рубанок с мощностью двигателя Р=1000 Вт и cos φ=0,8. Полная мощность, которую рубанок будет потреблять от генератора 1000:0,8=1250 ВА. Собственный cos φ генератора принят рав...
Страница 14 - Символ „; ТЕХНИЧЕСКОЕ ОБСЛУЖИВАНИЕ; живанию и их периодичность
14 Руководство по эксплуатации Ежедневно После первых 20ч работы Через каждые 3 месяца или 100 ч Через каждые 3 месяца или 300 ч Ежегодно или через 900 ч Проверьте уровень топлива и, если необходимо, заправьте топливный бак ○ Проверьте уровень масла и, если необходимо, долейте ○ Убедитесь в отсутств...
Страница 15 - отсоединить минусовую клемму аккумулятора.; ЗАМЕНА МОТОРНОГО МАСЛА; масло в маслозаливную горловину до метки верхнего уровня на щупе.; ОЧИСТКА ИЛИ ЗАМЕНА МАСЛЯНОГО ФИЛЬТРА; механические примеси и отложения.; ОЧИСТКА ИЛИ ЗАМЕНА ТОПЛИВНОГО ФИЛЬТРА
Руководство по эксплуатации 15 ПРЕДУПРЕЖДЕНИЕ! Перед техническим обслуживанием электростанции нужно выключить двигатель и отсоединить минусовую клемму аккумулятора. 10.1 ЗАМЕНА МОТОРНОГО МАСЛА Открутите сливную пробку на блоке цилиндра и слейте отработанное моторное масло сразу после остановки двига...
Страница 16 - торного масла, затем закрутите винтовую пробку.; ПУСК ПОСЛЕ ДЛИТЕЛЬНОГО ПРОСТОЯ; СБОРКА ГЕНЕРАТОРНОЙ УСТАНОВКИ
16 Руководство по эксплуатации 11. ХРАНЕНИЕ Перед длительным хранением электростанции, необходимо правильным образом подгото- вить ее к хранению:1. Заведите двигатель, дайте ему поработать около 3 мин, затем остановите его.2. Слейте использованное масло из двигателя, пока он еще не остыл, и залейте ...
Страница 17 - УСТРАНЕНИЕ НЕПОЛАДОК
Руководство по эксплуатации 17 13. УСТРАНЕНИЕ НЕПОЛАДОК Возможная причина Метод устранения ПРОБЛЕМА ПРИ ЗАПУСКЕ Засорение топливной системы, или вода в топливе Устраните влагу и грязь в топливном баке и в фильтроэлементе топливного фильтра; если фильтроэлемент засорен, промойте его чистым топливом и...
Страница 18 - нераторную установку для проверки.
18 Руководство по эксплуатации Возможная причина Метод устранения АВТОМАТИЧЕСКОЕ ВЫКЛЮЧЕНИЕ Прекратилась подача топлива В случае недостатка топлива заправьте топливный бак. Стравите воздух из топливной системы. В случае засорения топливной системы устраните их, промойте или замените фильтроэлемент т...
Страница 19 - должна превышать 1/3 всей мощности электростанции.; ТЕХНИЧЕСКИЕ ХАРАКТЕРИСТИКИ
Руководство по эксплуатации 19 5000EHA 6000EHA 6000EH3A ДВИГАТЕЛЬ Модель двигателя C188FD C192FD Тип 4-тактный с верхним распределительным валом одноцилиндровый дизельный двигатель с принудительным охлаждением воздуха Нагрузка - - Нагрузка по фазам должна быть распределена с разницей не более 25% См...
Страница 22 - понентов электростанции.
22 Руководство по эксплуатации ЭЛЕКТРОСТАНЦИЯ НЕ ПОДЛЕЖИТ ГАРАНТИЙНОМУ ОБСЛУЖИВАНИЮ В СЛЕДУЮЩИХ СЛУЧАЯХ: Вскрытие (попытка вскрытия) или ремонта электростанции самим пользователем или не уполномоченными на это лицами. При поступлении электростанции в разобранном виде. При поврежденной пломбе на регу...
Страница 23 - ВНИМАНИЕ; Проход на территорию Полигона осуществляется по пропускам. При; АДРЕС СЕРВИСНОГО ЦЕНТРА ГК ТСС; НА АВТОМОБИЛЕ
ВНИМАНИЕ Проход на территорию Полигона осуществляется по пропускам. При себе необходимо иметь паспорт! АДРЕС СЕРВИСНОГО ЦЕНТРА ГК ТСС АДРЕС СЕРВИСНОГО ЦЕНТРА ГК ТСС Московская область, г. Ивантеевка, Санаторный проезд д.1 корп. 4А. ООО «ГК ТСС». Телефоны: +7 (495) 258-00-20, 8-800-250-41-44. КАК ДОБ...
Страница 24 - ОДАЖ
ТЕХНИКА // СОЗИДАНИЕ // СЕРВИС ПРОИЗВОДСТВОПР ОДАЖ А МОНТАЖСЕРВИСНОЕ ОБСЛУЖИВАНИЕЗАПАСНЫЕ ЧАСТИ ГК ТСС постоянно совершенствует оборудование и сохраняет за собой право изменять конструкцию и характеристики ИЗГОТОВИТЕЛЬ: ООО «ГК ТСС». 141281, Московская область, город Ивантеевка, Санаторный проезд д....