Страница 4 - Введение; I Важные меры безопасности
Введение I Важные меры безопасности (Продолжение) Не устанавливайте ТВ в местах, подверженных повышенной влажности, например, в ванной комнате или вблизи увлажнителя воздуха. В противном случае это может привести к возгоранию или поражению электрическим током. 0 Не устанавливайте ТВ рядом с плитой, ...
Страница 8 - Важные меры безопасности
I Введен! ие- Важные меры безопасности (Продолжение) Важнщ йнформаций О перманентном пост-изображении в силу характеристик плазменною экрана, при длительном отображении статичных объектов , в части экрана может оставаться изображение этих объектов (перманентное пост-изображение), В результате кумуля...
Страница 9 - Аксессуары
Распашвна Аксессуары Проверьте комплект постав 1 Ш ТВ па наличие следующих аксессуаров. Руководство пользователя Пульт ДУ СТ-90126 Батарейки для пульта ДУ РОЗ (ААА) X 2 Мйб1«Д!, ... -1 ( V-' Динамики X 2 Винты для монтажа динамика х 4 Кабель динамиков х 2 *й 1 Шв Сетевой шнур для тюнера Сетевой шнур...
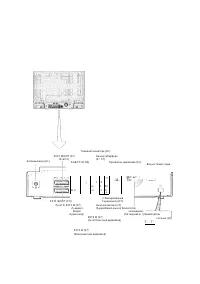
Страница 10 - Установка
Подготовка к эксплуатации------------- Установка 1. Закрепите комплектные динамики н нижней или боковой стороне панели экрана, затем подключите комплектные кабели динамиков. Используйте держатель кабеля динамика. 2. Подключите комплектный кабель монитора между монитором и тюнером. Вставляйте штекер ...
Страница 12 - Подготовка к эксплуатации; Изучение вашего нового ТВ
Подготовка к эксплуатации 1 Изучение вашего нового ТВ Вы можете управлять вашим ТВ кнопками на передней панели или с пульта ДУ. На задней панели и панели тюнера имеются все необходимые для подключения к ТВ дополнительного оборудования разъемы. См. главу “Подключение оборудования" на стр, 36. Поя...
Страница 14 - Изучение пульта ДУ; ZD; сюсю® ®
Подготовка к эксплуатации Изучение пульта ДУ Пояснения по использованию каждого элемента управления приведены на стр. в скобках. Вкл./выкл. Телетекста [33-35] CALL [31,35] Функция вызова страницы- заголовка телетекста т \тю , —, -'rin г ) I (Ь^ I J t J I Ч-У j ''WWWIWiKy ^ .......... .............^ ...
Страница 15 - il
iifll il Ш 1 ение 1 Для сохрам 01 -шя электроэ?!ергии лучше всего отключать телевизор, а не оставлять его в резер вн о м ре>^<и м е. ¡'1ередняя rseMeTìb монитора Задняя панель тюнера С)1 ------ ¡:г-::г:) iiÉf т il Il... ™-o Передняя панель тюнера ОО) S Щелкните выключателем ® Д)| POWER на мони...
Страница 16 - Изучение системы меню
Подготовка к эксплуатации Изучение системы меню Мы рекомендуем вам ознакомиться со следующей процедурой перед началом использования систем 1 ы меню: Нажмите кнопку MENU, чтобы вывести меню на экран, затем нажимайте кнопку < или > для выбора желаемого меню. Нажимайте кнопку v или л, чтобы выбра...
Страница 18 - Программирование каналов
Подготовка к эксплуатации Программирование каналов В силу сложной структуры расположения ТВ передатчиков мы не в состоянии предварительно настроить все программные позиции. Следующие простые процедуры помогут вам самостоятельно запрограммировать любую программную позицию на любую ТВ станцию. Функция...
Страница 19 - тмшк
в ¡сачесгве arib-repfiaTHBbi авто1У1атической [■застрой?<е ваш ТВ Toshiba можег быть ;?астрое!! Вру 41 -|ую. НЕ ^ЗАЖИМАЙТЕ НИКАКИХ КНОПОК В 'ГО ВРЕМЯ, КАК ТЕЛЕВИЗОР ОСУЩЕСТВЛЯЕТ' НАСТ'РОЙКУ. I ^ § Й I 2 I ^ 3 т I 4 Нажуйте кнопку MENU, затем нажимайте кнопку > или <. чтобы выбрать меню уста...
Страница 20 - Подготовка к зксплуатамии; Программирование канале; Чтобы настроить ваш ТВ на ВМ, включите
Подготовка к зксплуатамии Программирование канале (Продолжение) Ё. Пропуск программной позиции Нажмите кнопку л или v, чтобы включить { “ * " ) или выключить (" " ) пропуск данной программной позиции. Данная программа будет пропускаться при выборе каналов кнопками РА и PY. Примечание; Ря...
Страница 21 - tSii
Да 1 П!Ь!й ТВ сгаособен 8 м и г а т ь множество различных Е<а налов, в зависимости от места вашего проживания. СамьЕй удобный способ сохранения каадого канала под выбранной вами программной позицией это функция сортировки программ. шжши 1Ж111 ШЙЙЙ1 ....... CD C.i!D ©■ (Е) © ©' ©. ©^ i-i'lv i'7n/t...
Страница 22 - Просмотр телепрограмм; Регулировка громкости:; Переключение программ:; Переключение между двумя программными
Основные операции Просмотр телепрограмм Передняя панель тюнера © min :.: © V © * © О е •------- <-------- >-------- V —... - Л Регулировка громкости: 1 Нажимайте кнопки + и чтобы отрегулировать громкость. ®г® ®- Примечание: I Перекггючение между двумя | программами с каналами различного | форм...
Страница 23 - Просмотр широ; kJ
Основные операции Просмотр широ 1 юформатного изображения Данный аппарат способен принимать телевещание множества форматов. В зависимости от типа передаваемого сигнала, вы можете выбрать режим Super Live, Cinema, Subtitle, 14:9, Wide и 4:3. ■ CDi/n _____________ . _____ _ r; -i —^ ГйП ^ Ü-V1.! Приме...
Страница 24 - Автоматический формат; Чтобы настроить размер/положение; Чтобы использовать автоматический формат:
Основные операции Размер/положение изображения, Автоматический формат Примечания: • В режимах Super Live, 14:9, Wide и 4:3 положение и высота по вертикали не могут быть настроены. ‘ Настройка размера/положения изображения не поддерживается для входного сигнала HD. Исходя из собственных предпочтений,...
Страница 25 - I Настройка параметров; Выбор альтернативных режимов
Основные операции I Настройка параметров изображения Имеется четыре режима изображения, способных удовлетворить ваш вкус. Степень обработки изображения уменьшается от режима 1 к режиму 3, те. если вам требуется высокий уровень контрастности, но небольшая степень обработки изображения, вы можете выбр...
Страница 26 - Настройка параметров
щ ■■.■if:-' Основные операции Настройка параметров звучания Если передача монофоническая, кнопка не будет иметь эффекта. Только индикация “Mono” будет присутствовать на экране. ЧтобьЕ отрегулировать качество звука: 1 Нажмите кнопку MENU, затем нажатием кнопки > или < выведите на экран меню зву...
Страница 27 - Использование внешней сабвуферной системы:
■■'■.. ■'■ ■ 'i ■: ■’ ^ J - ■■■ . у ■:.■:■,■■■' i !. ■ i •'■.•■. ■,; /. ■ ^.' .■.- s' ■ ■ ■.!:■ ■■ " ' ■ '■ -'' ' '• .■ ■■ s. i ■' ■■■■ ■ ■ Ь-Ю ': '■:.' :vi: f:i-. -. ;■ bV. ^ 1 ’ ! : 5: ■: f; » ^;,■■■ \ - ¡' Æ ’V : !■ .■ ■' :. ¡i - ■ '. ì ■ ■■ У :■■ ■■' ^ * '■i'. "■ ^ ■'.' ■.' ■ / ■::^;f!;•...
Страница 28 - Выбор типов сигналов AV; Чтобы выбрать входной сигнал для Scart 2:
Дополнительные функции ТВ Выбор типов сигналов AV Данная функция позволяет вам выбирать тип ВМ для подключения к разъему Scart 2 на задней панели ТВ. Разъем S-видео позволяет подключать к ТВ ВМ с выходом 8“Видео или DVD-проигрыватели, разъем AV предназначен для подключения стандартных ВМ. Чтобы выбр...
Страница 29 - ТВ; I Выбор источника входного; T¡ В; Выбор входного источника
Дополнительные функции ТВ I Выбор источника входного сигнала, Выбор системы цветности Большинство ВМ и настольных блоков посылают сигнал по кабелю Scart, чтобы переключать ТВ на требуемый входной разъем. Альтернативно вы можете выбрать его кнопкой выбора входного источника ~0. m (^ l T¡ В (Ü::: © Ш ...
Страница 30 - Установка Long Life
<i'i Дополнительные функции ТВ Блокировка панели, Установка Long Life "i* nvfi ^ TOSHIBA Данная функция позволяет вам отключать кнопки на передней панели ТВ, оставляя рабочими только кнопки на пульте ДУ. Установка блокировки панели: Л Нажмите кнопку MENU, ■ затем нажатием кнопки > выведите...
Страница 31 - Экранный дисплей; Чтобы выбрать меню таймера:; Ш информации на; Чтобы вывести на экран экранный дисплей
Дополн!^тельные функцикз ТВ Таймер, Индикация часов, Экранный дисплей Использование таймеров полезно, если вы желаете, чтобы ТВ автоматически включался и выключался по истечении определенного времени. Например: Если вы желаете, чтобы аппарат включился через 30 минут на программе 3, просто выполните ...
Страница 32 - Телетекст - Настройка; Чтобы выбрать набор символов для телетекста:; Чтобьт выбрать режим телетекста:
Просмотр телетекста Телетекст - Настройка Данный ТВ имеет многостраничную память телетекста, требующую нескольких секунд для загрузки, и обеспечивает два способа просмотра телетекста - AUTO и LIST, описываемых на стр, 34. Опции Character-1 ~ 6 позволяют отображать текст в различных алфавитах при исп...
Страница 33 - о телетексте
Просмотр телетекста о телетексте Кнопка ШЮ: Однократное нажатие кнопки ШО выводит на экран изображение телетекста. Повторное нажатие кнопки помещает телетекст поверх нормального телевизионного изображения. Еще одно нажатие возвращает обычный режим телевизионного просмотра. Для смены канала вам требу...
Страница 34 - Телетекст - Режимы AUTO
Просмотр телетекста Телетекст - Режимы AUTO и LIST Имеется два режима: AUTO отображает информацию FASTEXT, если данный формат поддерживается. LIST отображает четыре ваши любимые страницы. В каждом режиме, в качестве альтернативы цветным кнопкам, вы можете вызывать страницу вводом ее 3-значного номер...
Страница 36 - Подключение к боковой
Подключение оборудования :Г':; ';к Подключение к боковой панели тюнера Вы можете подключать к фоновым разъемам правой боковой панели тюнера множество дополнительных устройств. За полной информацией по подключению оборудования, пожалуйста, всегда обращайтесь к руководству на подключаемь!Й компонент. ...
Страница 37 - Подключение к задней
■Г: Подключение оборудования Подключение к задней панели ТВ Мы рекомендуем, как показано здесь, разъем Scart 1 для подключения настольного блока, а разъем Scart 2 для подключения ВМ, ВМ (обычный или с разъемом S-видео) Настольный бгюк Сабвуферная система с усилителем (стр. 27) Ü, Аудиосистема ВМ (об...
Страница 38 - Подключение ВМ
Подключение оборудования Подключение ВМ При подключении обычного ВМ (по каналу AV), мы рекомендуем подключать его к разъему Scart 2Q-(1). Подключите выходной терминал Scart ВМ к разъему Scart 1 на задней панели тюнера, используя 21 “Контактный кабель Scart с полной распайкой. Если вы используете нас...
Страница 39 - Подключение настольного
Подключение оборудования Подключение настольного блока и проигрывателя DVD Подключите кабель Scart с настольного блока к разъему Scart 1 на задней панели тюнера. Подключите антенну, как описано настр. 11. Если ваш ТВ автоматически переключается на отображение сигнала с подключенного оборудования, вы...
Страница 40 - Подключение компьютера
Подк.оюче!Н!!^е оборудования Подключение компьютера К телевизору можно подключить компьютер с аналоговым {15-контактным) выходом RGB, Задняя панель ТВ Подклк^чите кабель РС от компьютера к терминалу © КОВ/РС на задней панели ТВ. Нажатием кнопки ©, кнопок V а и кнопки О К выберите режим КОВ/РС. Необх...
Страница 41 - Настройки меню в режиме PC
ш i Настройки меню в режиме PC 1 Выберите режиги RGB/PC. 2 Нажатием кнопки MENU выведите на экран меню PC. 3 Нажатием кнопки v или л вьгберите пункт меню, затем нажмите кнопку ОК, чтобы вывести на экран позиции меню. При необходимости, повторите данную процедуру. 4 Нажатием кнопки < или > выбе...
Страница 42 - Настройки меню в; режиме PC; li; nSri
Подключе^зи1е- о6о|:вдован1^11 Настройки меню в режиме PC (Продолжение) ifei (SD C j li 2 J l.U ^-£i ‘^5, 0 (D © © © © ® 0 i:B iv I Hi r-'A ШР.. V'-"' ■- Vifit'ju 'Ч > C'O о C) о о г , тааишя Чтобы настроить катество изображения: 1 2 3 Нажмите кнопку MENU, чтобь! вывести на экран меню PC, зат...
Страница 44 - O o o °; a s D ®; н pozmoN
Г1 одключение обоpyi:|oвания Настройки меню в режиме PC (Предо,пжен!4е| ^ Ь:' \f у ^ ttii? 4 Д ч- •■■'"X -v: <% tC'- й.' ifif|*fciei a|-ggf|gg||3|§|g|^^ щшшёШш saaasiiiiMSi ШШй ■ feVLJ ..ij.^n-4 ® 0 ' l i 3 © © © © © © ■ © © © Cr> O o o ° r * - f . ■ ■ (7)1/1) r*» a s D ® **OVD ■ @ - a m a...
Страница 45 - Чтобы выбрать режим OSM (вывод; Чтобы изменить позицию экранного меню
<дДстиГ')"|. Ф Чтобы выбрать режим OSM (вывод сообщений на экран): Данная функция позволяет вам выводить (ON) или не выводить (OFF) служебные сообщения, те. установку MODE и источник RGB/PC, на экран. 1 Нажмите кнопку MENU, чтобы вывести на экран меню PC. затем нажатием кнопки v или А выберит...
Страница 46 - Настройки; меню; в ршсиме PC
Настройки меню в ршсиме PC (Продолжение) '1 (9 ®о ® О li?J © © © © © ® ® ® ® ® ® ® Использование фу^жции управления электропитанием: Данная функция позволяет вам использовать данный монитор, как энергосберегающий монитор, при подключении к нему компьютера. 1 2 08М А ai ШШкШШ gray ueVB, IОМЙ I I RE R...
Страница 47 - Чтобы отрегулировать уровень серого:
Чтобы отрегулировать уровень серого: Вы можете отрегулировать яркость серой зоны экрана в режиме 4:3. Данная настройка доступна только в режиме РС. 1 Выберите MODE: NORMAL в меню SCREEN.См. стр. 44, OSM ■ ■ T.i^ON > OiS)a'.->sOJ. ■■ 1 э } в меню FUNCTION " нажатием кнопки v или л выберите ...
Страница 48 - Чтобы выбрать
обсэ|з^^довам11я Настройки меню в режиме PC (Продолжение) ШШРШ a & (sO/Q О C*3 © © © © © © © © 0 © © © т Г TV дщ _ СЗ'(Ж)'(Ж) СЕ)ÖD СЕ)CS)' à ® .те C ü CE j GEJ'.CE j ТРАНША ■’ О меню LONG LIFE: Данная функция предназначена для снижения эффекта перманентного пост-изображения. Имеется четыре пара...
Страница 49 - Чтобы установить параметр ¡NVERSE:; Чтобы установить параметр SCREEN WIPER:
(3) INVERSE Изображение попеременно выводится нормальным и инвертированным с целью снижения эффекта перманентного пост-изображения на экране. Чтобы установить параметр ¡NVERSE: 1 в меню LONG LIFE нажатием кнопки V или л выберите параметр INVERSE. Нажатие кнопки < или > выберите установку OFF, ...
Страница 50 - Настройки Noлени> в режиме PC
обсгрудова^шя Настройки №лени> в режиме PC (Продолжение) ED о L* © ■© © © © ® ! © (D © © ® 0@ Г А Я-ГГ-У- 1 О О (^) ^ | Г* rv 0>vu С Э О Ш *«UvU : ■ С О С Ю О ® ^ i?0 gs ■ gs El/gil cDr?:) Ш М g.-::^ g;acHfefeNi?iv В режиме ОЫ нажмите кнопку ОК. На экране появится меню установки времени. Нажат...
Страница 51 - Чтобы выбрать режим RGB:; Чтобы выбрать режим НО:
о режиме RGB: •AUTO ... Выбирается наиболее пригодный режим для входного сигнала (как указано в таблице “Поддерживаемые компьютерные сигналы” на стр. 53). При нормальном использовании, выбирайте режим AUTO. •STILL ... Выводит стандартные сигналы VESA. Используйте данный режим для отображения стоп-ка...
Страница 52 - Настройки уеню
обо рудо Настройки уеню в режг^й#' '.''‘'s (П родопжен ие) Язьиш предетавлеЕ^и51 aiKpasiiioro дисплее: ® l::iN(J.l.J.Sf 1 ■‘■- Английский ® i')FU'l’SC.’l I - Немецкий ® 1;‘' RA N Q А .1 ■ - Фра Г! цузс ки й » [^rn'VVNi.)!.. ...Исгззнский Г1!Л1 ДЛ.1А() -■ И галья['Кжий - AViU\iSK..A -■ ё Л в ^ дскй ^...
Страница 54 - Поиск неисправностей
Справочньш |.газде11 Поиск неисправностей Перед обращением к специалисту по техобслуживанию, пожалуйста, ознакомьтесь со следующей таблицей с цепью поиска и устранения возможных причин возникшей неисправности. Проблема ТВ не включается Отсутствует изображение, отсутс 1 ‘вует звук Отсутствует звук, и...
Страница 55 - Служебные сообщения
^ Сг)равоч11ый раздал Служебные сообщения OKpaHHoe coo5u4eMHe Решение 0 системе охлаждения Fan system has failed and stopped. Main power will automatically switched off. Необходимо проведение техобсл ужи ван и я. О температуре Tuner has become overheated. Please switch off the main power for at leas...
Страница 56 - Технические характеристики; Тюнер плазшюнного ТВ
Справ0«р^ый раздан Технические характеристики Система POP TV (тшнер, плазменный монитор, динамики) ■ . ■ ■ .yi if ■• i ■■■■ ■ I,: u ;-, hir.3i ì - ìt ^■ Модель Источник питания Размеры Масса (вес) Комплектные аксессуары Тюнер плазшюнного ТВ 35WP26P 110-240 В АС. 50/60 Гц 893 мм (Ш) 635 мм (В) 309 мм...