Страница 4 - НАЗНАЧЕНИЕ ПРИБОРА
IM2021 4 Прибор не предназначен для использования лицами (включая детей) с пониженными физическими, сенсорными или умственными способностями или при отсутствии у них жизненного опыта или знаний, если они не находятся под присмотром или не проинструктированы об использовании прибора лицом, ответств...
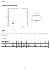
Страница 7 - *Изображение приведено в качестве справочной информации и может
IM2021 7 5. ОПИСАНИЕ ВОДОНАГРЕВАТЕЛЯ Рисунок 2* *Изображение приведено в качестве справочной информации и может отличаться от реального прибора 1. Верхняя комбинированная защитная крышка 2. Внешний декоративный корпус 3. Система переливов 4. Теплоизоляционный слой из пенополиуретана 5. Внутренний ре...
Страница 8 - КОМПЛЕКТ ПОСТАВКИ; изменять содержимое комплекта поставки данного прибора; УСТАНОВКА ВОДОНАГРЕВАТЕЛЯ; выдерживать, как минимум, двойной вес водонагревателя, полностью
IM2021 8 6. КОМПЛЕКТ ПОСТАВКИ 1. Водонагреватель – 1 шт. 2. Комплект анкерных болтов – 1 шт. 3. Предохранительный клапан – 1 шт. 4. Руководство по эксплуатации – 1 шт. 5. Гарантийный талон – 1 шт. 6. Упаковка – 1 шт. Производитель оставляет за собой право без дополнительного уведомления изменять сод...
Страница 9 - Рисунок 3 Рисунок 4; давление воды в водонагревателе, соответствует давлению воды в
IM2021 9 Рисунок 3 Рисунок 4 После того, как вы выбрали правильное место установки водонагревателя, определите точки для отверстий под анкерные болты с крюками (определяются в соответствии со спецификацией прибора, который вы выбрали). Просверлите в стене два отверстия соответствующей глубины с испо...
Страница 10 - повторное использование старых шлангов не допускается; Подключение к электрической сети
IM2021 10 из разборного крана, закройте разборный кран и проверьте герметичность всех соединений. * не входит в комплект поставки. Необходимо использовать новые шланги, повторное использование старых шлангов не допускается ВНИМАНИЕ! Запрещена эксплуатация водонагревателя без установки на входной п...
Страница 11 - УПРАВЛЕНИЕ ВОДОНАГРЕВАТЕЛЕМ
IM2021 11 УЗО (устройство защитного отключения) 1. Подключите сетевой шнур к сети, индикатор (1) загорится. 2. Для тестирования нажмите кнопку (2), напряжение перестанет подаваться, индикатор (1) погаснет и кнопка перезапуска (3) поднимется вверх. 3. Для перезапуска нажмите кнопку (3), напряжение оп...
Страница 12 - . Кнопка установки температуры
IM2021 12 1 . Кнопка ВКЛ/ВЫКЛ: для включения и выключения прибора 2 . Дисплей 3 . Кнопка установки температуры Эксплуатация водонагревателя 1. Сначала откройте один из кранов выхода горячей воды, затем откройте кран подачи холодной воды. Электрический водонагреватель начнёт заполняться водой. Когда ...
Страница 13 - ОБСЛУЖИВАНИЕ
IM2021 13 9. ОБСЛУЖИВАНИЕ Рисунок 5 Рисунок 6 1. Проверяйте электрическую вилку и розетку как можно чаще. Должен быть обеспечен надёжный электрический контакт, а также правильное заземление. Вилка и розетка не должны чрезмерно нагреваться. 2. Если водонагреватель не используется продолжительное врем...
Страница 14 - УСТРАНЕНИЕ НЕИСПРАВНОСТЕЙ
IM2021 14 сеть, но не происходит нагрев воды и не горит индикатор подключения к электросети, значит, отключился или не был включен термовыключатель. Для возврата водонагревателя в рабочее состояние необходимо: - отключить питание от водонагревателя, снять накладку боковой/нижней крышки для горизонта...
Страница 15 - Проблема
IM2021 15 Проблема Возможные причины Способ устранения Индикатор подключения к электросети на панели управления не горит, вода не греется. 1. Повреждение устройства регулирования температуры. 1. Обратиться к специалисту по ремонту в авторизованный сервисный центр. 2. Сработало или не было включено у...
Страница 17 - и перемещения упаковки внутри транспортного средства.
IM2021 17 13. ТРАНСПОРТИРОВКА И ХРАНЕНИЕ 1. При транспортировке должны быть исключены любые возможные удары и перемещения упаковки внутри транспортного средства. 2. При транспортировке и хранении должны строго соблюдаться требования манипуляционных знаков на упаковке прибора. Температурные требовани...