Thermex ES 70 V/H - инструкции и руководства

Водонагреватель Thermex ES 70 V/H - инструкции пользователя по применению, эксплуатации и установке на русском языке читайте онлайн в формате pdf

1 Page 1
2 Page 2
3 Page 3
4 Page 4
5 Page 5
6 Page 6
7 Page 7
8 Page 8
9 Page 9
10 Page 10
11 Page 11

Краткое содержание

Страница 2 - Описание Рис

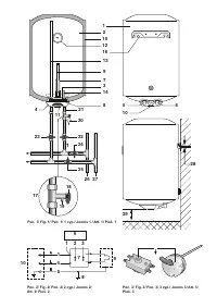
1 2 151216 13 9 73 14 8 11 4 5 10 6 20 21 22 23 24 25 26 27 18 19 17 29 28 Рис . 1/ Fig. 1/ Рис . 1/ 1 сур ./ Joonis 1./ Att. 1/ Pieš. 1 3 3 5 5 4 4 2 2 9 9 10 10 8 8 7 7 6 6 1 1 1 1 Рис. 2/ Fig. 2/ Рис. 2/ 2 сур./ Joonis 2 / Att. 2/ Pieš. 2 Рис. 3/ Fig. 3/ Рис. 3/ 3 сур./ Joonis 3/ Att. 3/ Pieš. 3 ...

Страница 4 - Описание Ри; Комплект поставки; Назначение

Вход холодной воды/ Cold water inlet / Вхід холодної води/ Салқын су кірісі / Külma vee sisend/ Aukstā ūdens ieeja/ Šalto vandens įėjimas Вентиль подачи холодной воды/ Cold water inlet valve / Вентиль подачі холодної води/ Салқын су жеткізетін вентиль / Külma vee ventiil/ Aukstā ūdens padeves ventil...

Страница 6 - Модель ЭВН; Подключение к водопроводу

На съемном фланце смонтированы: трубчатый электронагреватель (ТЭН) (7) , термостат ( 8 ) и магниевый анод ( 9 ). ТЭН служит для нагрева воды, а термостат обеспечивает возможность регулировки температуры нагрева до +74°С (±5°С ) . Магниевый анод предназначен для нейтрали- зации воздействия электрохим...

Thermex Водонагреватели Инструкции