Страница 2 - Рис
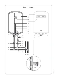
1 2 1 4 1 5 1 2 9 73 1 3 8 4 19 2 0 2 1 2 2 2 3 2 4 2 5 2 6 1 7 1 8 1 6 3 2 7 Описание Рис. 1 / 1 сур. Сипаттамасы Внешний корпус / Сыртқы корпус Внутренний бак (емкость) / Ішкі бак (сыйымдылық) Съемный фланец / Алмалы ернемек Защитная крышка / Қорғаныс қақпағы Патрубок подачи холодной воды (с синим...
Страница 4 - Комплект поставки
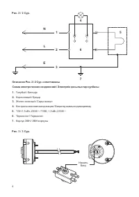
4 7 5 3 2 1 N L E 4 6 Описание Ри c. 2 / 2 Сур . сипаттамасы Схема электрических соеденений / Электрлік қосылыстар сұлбасы 1. Голубой / Көгілдір 2. Коричневый / Қоңыр 3. Желто-зеленый / Сары-жасыл 4. Контрольная лампа индикации / Бақылау шамы индикациялау 5. ТЭН 1,5 кВт, 230 В ~ / ~ ТЭЖ , 1,5 кВт, 2...
Страница 6 - Указание мер безопасности
0,05 / 0,6 МПа 2 3 0 B ~ , 50 Гц 1 ,5 кВт G 1/2 IPX4 + 3 ...+40 ° С +18…+70 ° С ±5 ° С Давление в магистрали холодной воды, min / max Питающая электросеть – однофазная, напряжение, частота Мощность трубчатого электронагревателя (ТЭНа) Диаметр резьбы патрубков подключения холодной и горячей воды Клас...
Страница 8 - Установка и подключение
Рекомендуется устанавливать ЭВН максимально близко от места использования горячей воды, чтобы сократить потери тепла в трубах. В зависимости от выбранной Вами модели, Вам понадобится 2 или 4 анкера. При выборе места монтажа необходимо учитывать общий вес ЭВН заполненного водой. Стену и пол со слабой...
Страница 12 - Утилизация
Включенный в электросеть ЭВН не нагревает воду. Отсутствует подсветка контрольной лампыиндикации. Вышеперечисленные неисправности не являются дефектами ЭВН и устраняются потребите-лем самостоятельно или силами специализированной организации за его счет. При невозможности устранить неисправность при ...
Страница 14 - Жеткізілім жиынтығы
Головной сервисный центр – установка и подключение ЭВН, гарантийный и постгаран-тийный ремонты: Россия, 196105, г. Санкт-Петербург, ул. Благодатная, д. 63, тел.: (812) 313-32-73 Телефоны и адреса авторизованных сервисных центров в других городах и регионах России можно узнать на сайте www.thermex.ru...
Страница 26 - Гарантийные талоны / Кепілдік талондары
2 3 4 1 6 Модель / Үлгі Серийный номер /Сериялық № Дата продажи / Сату күні Фирма-продавец /Сатушы фирма 5 Печать фирмы-продавца / Сатушы фирманың мөрі Заполняется фирмой – продавцом / Сатушы фирма толтырады 2 3 4 1 6 Модель / Үлгі Серийный номер /Сериялық № Дата продажи / Сату күні Фирма-продавец /...