Страница 4 - Thermex
Время нагрева и нормы расхода электроэнергии / Heating time and energy consumption rates / Час нагріву і норми витрати електроенергії / Жылыту уақыты жəне электр энергиясын жұмсау нормалары. Объем, л Capacity, l Об'єм, л Көлемі, л Время нагрева, Heating time, Час нагріву, Жылыту уақыты , ∆T=45ºС Пос...
Страница 6 - Комплект поставки
0,05 / 0,7 МПа 2 3 0 B~ , 50 Гц 1500 Вт G 1/2 IPX4 + 3 ...+40 ° С + 30 …+ 74 ° С ±5 ° С Давление в магистрали холодной воды, min / max Питающая электросеть – однофазная, напряжение, частота Мощность ЭВН Диаметр резьбы патрубков подключения холодной и горячей воды Класс защиты водонагревателя Работа ...
Страница 8 - Описание и принцип действия; Heating; Размещение и установка; За падение ЭВН, связанное с его неправильной установкой; Подключение к водопроводу; ной очистки воды со степенью очистки не менее 200 мкм.
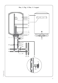
Описание и принцип действия ЭВН состоит из корпуса, нагревательного элемента, термостата, предохранительного клапана и защитной крышки с элементами управления. Корпус ЭВН состоит из стального бака теплоизолированного экологически чистым пенополиу-ретаном, и двух резьбовых патрубков: подачи холодной ...
Страница 10 - Подключение к электросети; отметка с печатью организа
Ручка ( ) предназначена для открытия клапана ( ). Необходимо следить, чтобы во время 1 7 1 8 работы водонагревателя эта ручка находилась в положении, закрывающем слив воды из бака. Подключение к водопроводной системе производится в соответствии с ( ) при помощи Рис. 1 медных, пластмассовых труб или ...
Страница 13 - Возможные неисправности и методы их устранения
Вышеперечисленные неисправности не являются дефектами ЭВН и устраняются потребите-лем самостоятельно или силами специализированной организации за его счет. При невозможности устранить неисправность при помощи вышеописанных рекомендаций или в случае выявления других, следует обратиться в сервисный це...
Страница 14 - mail; ICS
ВНИМАНИЕ! Неисправность предохранительного клапана или шнура питания не является неисправностью собственно ЭВН и не влечет за собой замену ЭВН. Ответственность за соблюдение правил установки и подключения лежит на покупателе (в случае самостоятельно-го подключения) либо на монтажной организации, про...
Страница 46 - Warranty certificates /
47 Модель / Model / Модель / Үлгі Серийный № / Nr. seriei / Серійний № / Сериялық № Дата продажи / Date of sale / Дата продажу / Сату күні Фирма - продавец / Dealer / Фірма- продавець / Сатушы фирма Сервисный центр , указанный фирмой - продавцом / Service center indicated by dealer Сервісний центр, ...
Страница 48 - Заполняется сервисным центром
1. Дата приема / Date of acceptance / Дата прийому / Қабылдау күні 2. Дата выдачи / Issue date / Дата видачі / Берілетін күні 3. Дефект / Defect / Дефект / Ақау 4. Выполненная работа / Executed work / Виконана робота /Орындалған жұмыс 5. Мастер / Specialist (name) / Майстер (ПІБ) / Шебер (толық аты-...
Страница 49 - Заполняется сервисным центром
1. Дата приема / Date of acceptance / Дата прийому / Қабылдау күні 2. Дата выдачи / Issue date / Дата видачі / Берілетін күні 3. Дефект / Defect / Дефект / Ақау 4. Выполненная работа / Executed work / Виконана робота /Орындалған жұмыс 5. Мастер / Specialist (name) / Майстер (ПІБ) / Шебер (толық аты-...