Страница 2 - or; IF YOU HAVE ANY DOUBT, CONSULT A QUALIFIED ELECTRICIAN.; The details on this page are only for Russian models; ИНФОРМАЦИЯ; «SHARP»; Модели; © Copyright SHARP Corporation 2010.
SPECIAL NOTE FOR USERS IN THE U.K. The mains lead of this product is fitted with a non-rewireable (moulded) plug incorporating a 13A fuse. Should the fuse need to be replaced, a BSI or ASTA approved BS 1362 fuse marked or ASA and of the same rating as above, which is also indicated on the pin face o...
Страница 3 - Торговые
1 ИНСТРУКЦИЯ ПО ЭКСПЛУАТАЦИИ РУССКИЙ • Иллюстрации и OSD в данной инструкции по эксплуатации используются с целью пояснения , и они могут немного отличаться от реальных действий . • Примеры в данной инструкции основаны на модели LC-46LE824E. Торговые марки • «HDMI, логотип HDMI и High-Definition Mul...
Страница 4 - Уважаемый покупатель продукции SHARP; Важные меры предосторожности по безопасности; Введение
2 Уважаемый покупатель продукции SHARP Благодарим Вас за приобретение цветного телевизора с жидкокристаллическим дисплеем SHARP. Для обеспечения безопасности и многих лет бесперебойной эксплуатации Вашего изделия, пожалуйста, перед началом его использования внимательно прочтите пункт Важные меры пре...
Страница 5 - ОСТОРОЖНО; вблизи данного изделия.; ПРИМЕЧАНИЕ; USB-адаптер беспроводной сети рассчитан; только на использование в помещении
3 Уход за передней панелью • Предварительно выключите основное питание и извлеките сетевой шнур из розетки. • Аккуратно протрите поверхность передней панели мягкой тканью (хлопок, фланель и т.п.) Не следует использовать грязную ткань, жидкие чистящие средства или протирочные салфетки (влажные или су...
Страница 8 - Основные операции; Отображение экрана; Выбор в Меню; Выбор опций; ПРИМЕР; LCFONT
6 Что такое Меню? Вам необходимо вывести OSD для выполнения установок телевизора. OSD для установок называется «ТВ МЕНЮ». «ТВ МЕНЮ» используется для включения различных установок и регулировок. Основные операции Отображение экрана Меню Нажмите кнопку @ , после чего появится экран «Меню». Выход из эк...
Страница 9 - Работа без пульта дистанционного управления; Использование экранной клавиатуры; abc; END
7 Введение Работа без пульта дистанционного управления Данная функция полезна, если поблизости нет пульта дистанционного управления. 1 Нажмите кнопку @- , после чего появится экран «Меню». 2 Воспользуйтесь кнопками !s/r вместо кнопок a/b или кнопками Yl/k вместо кнопок c/d для выбора опции. 3 Нажмит...
Страница 10 - Прилагаемые принадлежности
8 Введение Прилагаемые принадлежности Пульт дистанционного управления ( x 1) Щелочная батарея размера «AAA» ( x 2) Кабельный зажим ( x 1) Стр. 4 и 10 Страница 10 Страница 12 Компонентный кабель RGB ( x 1) Кабель SCART ( x 1) Кабель AV ( x 1) Страница 25 Страница 25 Стр. 25 и 26 Подставка ( x 1) USB-...
Страница 11 - Прикрепление подставки; ПРЕДОСТЕРЕЖЕНИЕ; Подготовка
9 Прикрепление подставки • Перед выполнением работы расстелите амортизирующий материал на поверхности, куда положите телевизор. Это предотвратит его повреждение. ПРЕДОСТЕРЕЖЕНИЕ • Прикрепите подставку в правильном положении. • Обязательно следуйте приведенным ниже инструкциям. Неправильная установка...
Страница 12 - Откройте крышку батарейного отсека.; Закройте крышку батарейного отсека.; Примечания по утилизации батарей; Угол действия пульта дистанционного управления
10 Использование пульта дистанционного управления Вставка батарей Перед использованием телевизора в первый раз вставьте две прилагаемые щелочные батареи размера «AAA». Когда батареи разрядятся и пульт дистанционного управления перестанет работать, замените батареи новыми батареями размера «AAA». 1 О...
Страница 13 - Обзор первоначальной инсталляции; Установка языка; Начните поиск; Теперь Вы можете смотреть; Руководство по быстрой настройке
11 Обзор первоначальной инсталляции Выполните приведенные ниже пункты один за другим при использовании телевизора в первый раз. Некоторые пункты могут не быть необходимыми в зависимости от установки и подключения телевизора. Подготовка n Подсоедините антенный кабель к гнезду антенны (Стр. 12). o В с...
Страница 14 - Проверка информации модуля CI
12 Перед включением питания 2 1 n Стандартный штекер DIN45325 (IEC 169-2) 75 q коаксиальный кабель o Кабель спутниковой антенны p Шнур питания переменного тока (формы изделия могут быть различными в некоторых странах) q Убедитесь, что выключатель питания MAIN POWER на задней панели телевиз...
Страница 15 - Перед включением питания проверьте; Установки цифрового; Поиск наземных программ
13 Первоначальная автоматическая инсталляция При первом включении телевизора после приобретения появляется мастер первоначальной автоматической инсталляции. Следуйте указаниям меню и последовательно выполните необходимые установки. Перед включением питания проверьте следующее E Подсоединен ли антенн...
Страница 16 - Поиск кабельных программ; Установки аналогового телевидения
14 Руководство по быстрой настройке E Поиск кабельных программ Чтобы задать требуемые установки для каждой опции: 1 Воспользуйтесь кнопками a/b для выбора меню, а затем нажмите кнопку ; . Зашифрован.станции [да] Метод поиска [Канал] Начальная частота Идентификатор сети [Никакой] Скор.перед.1 Скор.пе...
Страница 17 - Поиск спутниковых программ; При запуске спутникового поиска
15 Поиск спутниковых программ Воспользуйтесь кнопками c/d для выбора опции «Да», а затем нажмите кнопку ; . да нет • Если вы не хотите выполнять «Спутниковый поиск», выберите опцию «нет», а затем нажмите кнопку ; . • Отображается экран текущих настроек DVB-S/S2. Следую. другой Спутник Частота LNBНиз...
Страница 18 - При изменении настроек; Опция «Один спутник»
16 2 При изменении настроек подключения антенны: Воспользуйтесь кнопками c/d для выбора опции «Изменить установку» в левом столбце на экране настроек DVB-S/S2, а затем нажмите кнопку ; . • Отображается экран настройки подключения антенны. Один спутник 2 спутника на коммутаторе 22кГц 2 спутника на ко...
Страница 19 - Проверка мощности сигнала и; Проверка мощности сигнала; Проверка мощности канала; Мощность канала DVB-T; Мощность канала DVB-C; Подача питания к антенне
17 Руководство по быстрой настройке Проверка мощности сигнала и канала (DVB-T/C/S/S2) В случае установки антенны DVB-T/C/S/S2 впервые или ее перемещения Вам необходимо будет отрегулировать ориентацию антенны для получения хорошего приема, проверяя экран установки антенны. 1 Перейдите в «Меню» > «...
Страница 20 - Ежедневная работа; В режим ожидания; Переключение между; Переключение каналов; Просмотр телевизора
18 Ежедневная работа Включение/выключение Включение/выключение питания 1 Включите ( ; ) выключатель питания MAIN POWER, расположенный на задней панели телевизора (Стр. 5). 2 Для включения телевизора нажмите кнопку <a на телевизоре или кнопку >a на пульте дистанционного управления. 3 Для выключ...
Страница 21 - Выбор внешнего источника; Выбор режима звука; Режим ATV
19 Просмотр телевизора Выбор внешнего источника видеосигнала После установки соединения нажмите кнопку b для отображения экрана «Ввод», а затем воспользуйтесь кнопками b или a/b для переключения на соответствующий внешний источник с помощью кнопки ; . ПРИМЕЧАНИЕ • Можно также выбрать внешний источни...
Страница 22 - Основная настройка; EPG; Установка диапазона индикации; Опция; Установка пиктограммы жанра; Список пиктограмм жанров
20 Просмотр телевизора EPG EPG представляет собой список программ, отображаемый на экране. С помощью EPG вы можете узнавать расписание программ DTV/SAT/RADIO/DATA, просматривать подробную информацию о них, выполнять настройку на транслируемую в данный момент передачу. Полезные установки для использо...
Страница 23 - Выбор программы с помощью EPG
21 Выбор программы с помощью EPG Основные операции В иллюстрациях на данной странице используются трехзначные номера каналов. E Отобразить/закрыть экран EPG Нажмите кнопку EPG . ВЫБРАТЬ Ввод Назад Выход AM PM Информация о программе. Поиск по жанру Поиск по дате Список таймеров ПРИМЕЧАНИЕ • Можно так...
Страница 24 - Отобразите список таймеров для; Настройка таймера с помощью; Отмена настройки таймера; Отмена с помощью кнопки
22 Просмотр телевизора 6 Отобразите список таймеров для телепрограмм Нажмите кнопку B . • Информацию об установке таймера см. на странице 22. Настройка таймера с помощью EPG В заданное время можно переключиться на ту или иную программу. 1 Нажмите кнопку EPG . 2 Воспользуйтесь кнопками a/b/c/d для вы...
Страница 25 - Телетекст; Включение/выключение телетекста; Выберите телевизионный канал или внешний; Использование приложения
23 Телетекст Что такое телетекст? Телетекст обеспечивает трансляцию страниц деловой и развлекательной информации, принимаемая специально оборудованным телевизором. Ваш телевизор принимает сигналы телетекста, транслируемые по телевизионной сети, и переводит их в графический формат для просмотра. Сред...
Страница 26 - Перед подключением ...; Подключения видео; Примеры подсоединяемых устройств; В случае использования; Сертифицированный кабель HDMI; Поддерживаемый видеосигнал; Подключение внешних устройств
24 E Перед подключением … • Не забудьте выключить телевизор и все остальные устройства перед выполнением каких-либо подключений. • Надежно подключите кабель к гнезду или гнездам. • Внимательно прочтите инструкцию по эксплуатации к каждому внешнему устройству для выяснения возможных типов подключения...
Страница 27 - Подключение SCART; Видеомагнитофон; Компонентное подключение; После подключения; Выбор компонентного сигнала
25 Подключение SCART Примеры подсоединяемых устройств E Видеомагнитофон E DVD-плеер/рекордер Видеомагнитофон Декодер q Кабель SCART (входит в комплект)/Переходной кабель r Кабель SCART ПРИМЕЧАНИЕ • В случаях, когда декодеру необходимо получить сигнал от телевизора, обязательно выберите гнездо EX...
Страница 28 - Подключение VIDEO; Подключения аудио; Подключение усилителя с цифровым/; Установка цифрового аудио выхода
26 Подключение VIDEO Примеры подсоединяемых устройств E Видеомагнитофон E DVD-плеер/рекордер E Игровая консоль E Видеокамера Вы можете воспользоваться гнездом EXT 2 для подключения игровой консоли, видеокамеры, DVD-плеера/рекордера или другого устройства. u Кабель AV (входит в комплект)/Переходной...
Страница 29 - Управление устройствами HDMI при помощи AQUOS LINK; Что такое AQUOS LINK?; Что можно делать при помощи AQUOS LINK; REC; Подключение AQUOS LINK; AQUOS LINK
27 Управление устройствами HDMI при помощи AQUOS LINK E Что такое AQUOS LINK? Используя протокол HDMI CEC при помощи AQUOS LINK Вы можете в интерактивном режиме работать с устройствами, совместимыми с этой системой (AV-усилителем, DVD-плеером/ рекордером, плеером/рекордером Blu-ray), используя один ...
Страница 30 - Установка AQUOS LINK
28 Подключение BD-плеера AQUOS/рекордера AQUOS через акустическую систему AQUOS AUDIO BD-плеер AQUOS/рекордер AQUOS Акустическая система AQUOS AUDIO n Сертифицированный кабель HDMI o Оптический аудиокабель Подключение только BD-плеера AQUOS/ рекордера AQUOS BD-плеер AQUOS/рекордер AQUOS * Фу...
Страница 31 - SOURCE; Меню AQUOS LINK; PLAY; При помощи AQUOS AUDIO SP
29 Управление устройством AQUOS LINK AQUOS LINK позволяет Вам управлять подсоединенным устройством HDMI при помощи одного пульта дистанционного управления. 1 Нажмите кнопку I , чтобы начать воспроизведение записи. • См. раздел Главное меню/Список названий , если Вы хотите начать воспроизведение при ...
Страница 32 - Настройки изображения; Перейдите к пункту «Меню» > «Установки» >; Картинка; Режим AV; Регулировки изображения; Опции настройки; Основная регулировка
30 Настройки изображения Перейдите к пункту «Меню» > «Установки» > «Картинка». Установки Режим AV Картинка OPC [ВЫКЛ] Список КАН :Назад :Ввод Меню Подсветка Контраст Картинка Режим AV Функция настройки «Режим AV» предлагает Вам несколько режимов просмотра, из которых Вы можете выбрать наиболее...
Страница 33 - Дополнительный
31 Картинка Дополнительный Этот телевизор предоставляет множество дополнительных функций для оптимизации качества изображения. Перейдите к пункту «Меню» > «Установки» > «Картинка» > «Дополнительный». C.M.S.-Оттенок Данная функция используется для регулировки оттенка выбранного цвета с помощ...
Страница 34 - Установки звука; Установка аудиовхода; При выборе «EXT 3» в меню «Ввод»
32 Установки звука Перейдите к пункту «Меню» > «Установки» > «Звук». Установки Автонастр.громкости Звук [ВЫКЛ] СТАНДАРТ Список КАН :Назад :Ввод Меню Звук Автонастр. громкости Различные источники звука очень часто имеют разный уровень громкости, например, программа и реклама во время ее перерыв...
Страница 35 - Установки экономии энергии; Регулировка изображения ECO; Пиктограммы состояния «Экон.; Таймер отключения; Только звук
33 Установки экономии энергии Перейдите к пункту «Меню» > «Установки» > «ECO». Установки Нет сигнала выкл Регулировка изображения ECO ECO Экономия энергии Список КАН :Назад :Ввод Меню Нет операций выкл [Отключ.] [Отключ.] [ВЫКЛ] [ВКЛ] ECO Регулировка изображения ECO Данная функция автоматическ...
Страница 36 - Установки канала; Настройка просмотра; Автоинсталляция; Aналогового поиск; Установки аналогового; Спутниковый поиск; Установка программ; Добавить поиск
34 Установки канала Установки Быстрый запуск Автоинсталляция Настройка просмотра Настройки каналов Список КАН :Назад :Ввод Меню Индивидуальная настройка Настройка просмотра Автоинсталляция Телевизор автоматически определяет и сохраняет все программы, доступные в Вашем регионе. Эта функция также позв...
Страница 37 - Кнопки для операции «Ручная настройка»; Кабельный; Поиск
35 Основная регулировка E Ручная настройка Измените различные установки для каждой программы с помощью кнопок цветные ( R / G / Y / B ). Номер программы Блокировка Название программы Блокировк а CH Пропуск Стар кан CH Пропуск Сортировка Удалить 1 Воспользуйтесь кнопками a/b для выбора нужной програм...
Страница 39 - При выборе опции «да»; При выборе опции «нет»; Оценка родителей; При; Установка заголовка; Отмена блокировки
37 Установки пароля/блокировки Настройка просмотра PIN-код Эта функция позволяет Вам использовать PIN-код для предотвращения случайного изменения некоторых настроек. Перейдите в «Меню» > «Установки» > «Настройка просмотра» > «Индивидуальная настройка» > «PIN- код». ПРИМЕЧАНИЕ • Ввод PIN-...
Страница 40 - Установки языка; Субтитры; Выбираемые опции; Для польз.с нарушениями слуха; Язык; Язык OSD; Полезные настройки; Быстрый запуск
38 Основная регулировка Установки языка Настройка просмотра Язык цифр. аудиос Установка до трех избранных языков мультиплексного звука в случае, если эти языки звука доступны. Перейдите в «Меню» > «Установки» > «Настройка просмотра» > «Индивидуальная настройка» > «Язык цифр. аудиос». E П...
Страница 41 - Time shift; READY; Нажмите кнопку; Полезные функции просмотра
39 Time shift Эта функция позволяет временно приостанавливать просмотр цифровой или спутниковой телевизионной передачи и затем продолжать просмотр с этого же места. Эта функция доступна только в моделях серии 924/824. 1 Нажмите кнопку READY . • Телевизор начинает временно записывать телепередачу в р...
Страница 42 - Вывод информации о режиме Time; Автоматический выбор входа
40 Полезные функции просмотра Вывод информации о режиме Time shift Индикация канала Для вывода информации о канале нажмите кнопку p на пульте дистанционного управления. Аудио (ENG) СТЕРЕО Видео Субтитры ВЫКЛ >> Новая информация n Если была нажата кнопка READY и телевизор записывает телепередач...
Страница 43 - Выбор размера изображения; WSS; Режим Широкий
41 Выбор размера изображения Автоматический выбор размера изображения WSS Опция WSS Функция «WSS» позволяет телевизору выполнять автоматическое переключение между разными размерами изображения. Перейдите к пункту «Меню» > «Установки» > «Опция» > «WSS». ПРИМЕЧАНИЕ • Если подходящий размер из...
Страница 44 - Размер запис. изображения; Установка опции; Автопросм. HDMI сигнала; Положение
42 Выбор вручную размера записываемого изображения Опция Размер запис. изображения Вы можете воспользоваться этим меню для установки перед записью соответствующего формата изображения для просмотра телевизионной программы в формате 16:9 на телевизоре формата 4:3. Перейдите к пункту «Меню» > «Уста...
Страница 45 - Индикация времени в информации; Индикация времени и заголовка; Индикация времени; Время воспроизведения игры; Индикация названия программы
43 Установки индикации Индикация канала Вы можете вывести информацию о канале, нажав кнопку p на пульте дистанционного управления. Режим DTV Режим ATV Аудио (ENG) СТЕРЕО Видео Субтитры ВЫКЛ >> Новая информация МОНО Авто Субтитры Режим SAT Аудио (ENG) СТЕРЕО Видео Субтитры ВЫКЛ >> Новая и...
Страница 46 - Выбор ввода; Маркировка входного сигн; Пропуск заданного входного; Пропуск вход. сигнала; Другие полезные функции
44 Установка в случае использования внешниx устройств Установки источника входного сигнала Опция Выбор ввода Для установки типа сигнала внешнего оборудования. 1 Нажмите кнопку b для выбора источника ввода для настройки входного сигнала («EXT 1» или «EXT 3») в меню «Ввод», а затем нажмите кнопку ; . ...
Страница 47 - Дополнительные функции; Цветовая система; Выбрать наушники/аудиовыход; Эффект при выборе канала; Подсветка
45 Дополнительные функции Опция Цветовая система Вы можете изменить цветовую систему на одну из совместимых с изображением на экране. Перейдите к пункту «Меню» > «Установки» > «Опция» > «Цветовая система». ПРИМЕЧАНИЕ • Заводской стандартной установкой является опция «Авто». • Если выбрано з...
Страница 48 - Режим фотоснимка
46 Подключение устройства USB Подключите устройство USB к телевизору, как показано ниже. • Телевизор автоматически переключается в режим USB при подключении устройства USB к USB-разъему (эта функция не работает при использовании режима Time shift). • В зависимости от устройства USB, телевизор может ...
Страница 51 - Настройка DivX®; Регистрация DivX® VOD; Совместимость устройства USB; Совместимость с сервером; Выбор формата изображения
49 Другие полезные функции Настройка просмотра Настройка DivX® Эта функция используется для подтверждения Вашего регистрационного кода. Вам необходимо зарегистрировать свой код на сайте www.divx.com. Перейдите к пункту «Меню» > «Установки» > «Настройка просмотра» > «Настройка DivX®». E Реги...
Страница 52 - ПК; Отображение на экране; Подключение ПК
50 Подключение ПК Подключение HDMI ПК HDMI 1, 2, 3 или 4 n Сертифицированный кабель HDMI ПК HDMI 2* o Стереофонический кабель с минигнездом Ø 3,5 мм p Кабель DVI/HDMI * В случае использования гнезда HDMI 2 необходимо выбрать нужную опцию в меню «Выбор аудио» в зависимости от типа подключенного...
Страница 53 - Авто Sync; Регулировка изображения ПК; Точная Sync; Совместимость с ПК
51 Автоматическая регулировка изображения с ПК Опция Авто Sync Эта функция позволяет автоматически установить наилучшие возможные параметры экрана в случае соединения аналоговых гнезд телевизора и ПК при помощи продаваемого отдельно переходного кабеля DVI/RGB, и т.п. 1 Нажмите кнопку b для выбора «E...
Страница 54 - Технические характеристики
52 Технические характеристики порта RS-232C Управление телевизором при помощи ПК • После установки программы телевизором можно управлять с ПК через гнездо RS-232C. Можно выбирать входной сигнал (ПК/видео), регулировать громкость и выполнять различные другие регулировки и установки, что делает возмож...
Страница 55 - Список команд RS-232C
53 Список команд RS-232C ОПЦИЯ РЕГУЛИРОВКИ КОМАНДА ПАРАМЕТР СОДЕРЖАНИЕ РЕГУЛИРОВКИ УСТАНОВКА ПИТАНИЯ P O W R 0 _ _ _ ПИТАНИЕ ВЫКЛ (ОЖИДАНИЕ) ВЫБОР ВВОДА A I T G D _ _ _ _ ПЕРЕКЛЮЧЕНИЕ ВХОДНОГО СИГНАЛА (ПЕРЕКЛЮЧЕНИЕ) I T V D _ _ _ _ ТВ (КАНАЛ ФИКСИРОВАН) I D T V _ _ _ _ DTV (КАНАЛ ФИКСИРОВАН) I A V D...
Страница 56 - Подключение к сети; Обзор проводного соединения; Маршрутизатор; Настройка сети
54 Подключение к сети Для использования сервисов Интернет необходимо подключить телевизор к маршрутизатору, имеющему высокоскоростное соединение с Интернетом. Вы можете также подключить телевизор к серверу своей домашней сети через маршрутизатор или точку доступа. Подключение телевизора к маршрутиза...
Страница 57 - Беспроводное соединение; Обзор беспроводного соединения; Как выполнить подключение
55 Настройка сети Беспроводное соединение Используйте USB-адаптер беспроводной сети, входящий в комплект поставки телевизора. E Обзор беспроводного соединения n ПК o Беспроводной маршрутизатор/точка доступа p USB-адаптер беспроводной сети (прилагается) q Сеть ПРИМЕЧАНИЕ • При использовании USB-адапт...
Страница 58 - Отображение начальной страницы; NET; Меню опций; Пользовательская установка
56 Что такое Интернет-ТВ? Интернет-ТВ предлагает Интернет-услуги и веб-сайты, адаптированные для Вашего телевизора. Вы можете просматривать страницы Интернет-ТВ с помощью пульта дистанционного управления телевизором. Вы можете смотреть фильмы и изображения, слушать музыку, играть и т.д. Интернет-ТВ ...
Страница 59 - Пульт управления; Обновить экран; Масштабирование; Сведения о безопасности.; Ввод текста
57 Интернет-ТВ E Пульт управления Отображение экранного пульта управления для просмотра интерактивного содержания. 1 Выберите пункт «Пульт управления» и нажмите кнопку ; . 2 Воспользуйтесь кнопками a/b/c/d для выбора нужного действия, а затем нажмите кнопку ; . 3 Для выхода нажмите кнопку > . Кно...
Страница 60 - ОГРАНИЧЕНИЕ ОТВЕТСТВЕННОСТИ; В данном изделии используется браузер OperaTM.
58 Интернет-ТВ ОГРАНИЧЕНИЕ ОТВЕТСТВЕННОСТИ В данном изделии используется браузер Opera™. • В данном изделии используются шрифты, предоставленные компанией Monotype Imaging Inc. • Monotype® является торговой маркой Monotype Imaging Inc., зарегистрированной в Бюро по патентам и товарным знакам США. Да...
Страница 61 - Поиск и устранение неисправностей; Приложение
59 Поиск и устранение неисправностей Проблема Возможное решение • Не включается питание. • Включите ( ; ) выключатель питания MAIN POWER, расположенный на задней панели телевизора (Стр. 5). • Не отсоединился ли шнур питания переменного тока? • Проверьте, нажата ли кнопка <a на телевизоре. • Телев...
Страница 62 - Обновление Вашего телевизора; Установка загрузки; Загрузка программного обеспечения; Получение информации об; Лист сообщения; Отчет получателя; Информация; Распознавание
60 Обновление Вашего телевизора через DVB-T Следите за тем, чтобы версия программного обеспечения Вашего телевизора была всегда на уровне современных требований. Время от времени фирма SHARP выпускает новые версии обновленного базового программного обеспечения для телевизора и программного обеспечен...
Страница 63 - Обновление программного обеспечения
61 Приложение Обновление Вашего телевизора через USB/сеть Информация Обновление программного обеспечения Эта функция позволяет Вам обновлять программное обеспечение до последней версии с помощью устройства USB или по сети. • Для проверки версии программного обеспечения телевизора используйте адрес, ...
Страница 66 - Предостережение по вопросу эксплуатации
64 Приложение Предостережение по вопросу эксплуатации Предостережения относительно эксплуатации в условиях высокой и низкой температуры • Если телевизор используется в помещении (напр., в комнате, офисе) с низкой температурой, изображение может оставлять следы или выглядеть слегка замедленным. Это н...
Страница 69 - Экологические характеристики; Настройка звука для настенного использования
67 Экологические характеристики Опция Модели с диагональю 40 дюймов Модели с диагональю 46 дюймов Модели 924 Модели 814/824 I Режим «включено» (Вт) (ДОМАШНИЙ РЕЖИМ) 80 Вт 71 Вт 85 Вт J Режим «Экономия энергии» (Вт) Дополнительный 70 Вт 69 Вт 77 Вт K Режим «Ожидание» (Вт) 0,20 Вт 0,20 Вт 0,20 Вт L Ре...
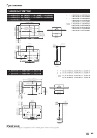
Страница 71 - Размерные чертежи
69 Приложение Размерные чертежи LC-46LE824E LC-46LE824RU LC-46LU824E LC-46LU824RU LC-40LE924E LC-40LE924RU LC-40LE824E LC-40LE824RU LC-40LE824E LC-40LU824E LC-40LU824RU ( 1127.0 ) / [ 993.0 ] ( 1127,0 ) / [ 993,0 ] ( 540.0 ) ( 540,0 ) [ 450.0 ] [ 450,0 ] ( 785. 0 ) / [ 707 .0 ] ( 785, 0 ) / [ 707 ,0...