Samsung Dual Cook Flex NV75N7646RB/WT - инструкции и руководства
Печь Samsung Dual Cook Flex NV75N7646RB/WT - инструкции пользователя по применению, эксплуатации и установке на русском языке читайте онлайн в формате pdf
Инструкции:
Инструкция по эксплуатации Samsung Dual Cook Flex NV75N7646RB/WT
Краткое содержание
2 Русский Со дер ж ание Содержание Содержание Использование руководства 3 В данном руководстве используются следующие обозначения: 3 Инструкции по технике безопасности 3 Важные меры предосторожности 3 Правильная утилизация изделия (Использованное электрическое и электронное оборудование) 6 Функция а...
Русский 3 Исполь зование р ук оводс тв а Инструкции по технике безопасности Благодарим вас за выбор встраиваемого духового шкафа компании SAMSUNG. Данное руководство пользователя содержит важную информацию по безопасности, а также инструкции по эксплуатации и обслуживанию устройства. Перед началом э...
4 Русский Инстр укции по т ехнике безопаснос ти Инструкции по технике безопасности ПРЕДУПРЕЖДЕНИЕ. Внешние части устройства могут сильно нагреваться при использовании. Не оставляйте детей без присмотра рядом с устройством. Не используйте абразивные очистители, химически активные вещества и острые ме...
6 Русский Инстр укции по т ехнике безопаснос ти Инструкции по технике безопасности В целях безопасности не следует чистить устройство струей воды или пара под высоким давлением.Во время работы духового шкафа дети должны находиться на безопасном расстоянии от него.Замороженные блюда (например, пиццу)...
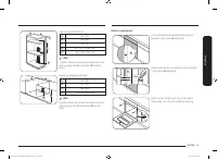
Русский 7 Ус тановк а Установка ПРЕДУПРЕЖДЕНИЕ Установку данного духового шкафа должен осуществлять квалифицированный специалист. Он несет ответственность за подключение духового шкафа к основному источнику питания и за соблюдение соответствующих местных правил техники безопасности. Комплектация Убе...
8 Русский Ус тановк а Установка Подготовка к установке духового шкафа Отвертка Phillips Дрель Подключение к источнику питания 01 02 03 L N 01 КОРИЧНЕВЫЙ или ЧЕРНЫЙ 02 СИНИЙ или БЕЛЫЙ 03 ЖЕЛТЫЙ или ЗЕЛЕНЫЙ Подключите кабель питания духового шкафа к розетке электросети. Если штепсельная розетка недост...
10 Русский По дг от овка к исполь зованию Установка По завершении установки снимите защитную пленку, защитную ленту и другие упаковочные материалы, а также выньте дополнительные принадлежности из духового шкафа. Перед извлечением духового шкафа из отсека кухонной мебели отключите его от сети электро...
Русский 11 По дг от овка к исполь зованию Запах нового духового шкафа Перед первым использованием необходимо очистить камеру духового шкафа, чтобы устранить запах, свойственный новому прибору. 1. Извлеките из духового шкафа все принадлежности. 2. Включите режим Конвекция или Стандартный, установив т...
Русский 13 По дг от овка к исполь зованию Универсальная дверца Духовой шкаф оснащен уникальной универсальной дверцей, оснащенной петлями посередине, благодаря чему для доступа к верхней зоне достаточно открыть только ее верхнюю половину. При использовании режима двойного приготовления она обеспечива...
14 Русский По дг от овка к исполь зованию Подготовка к использованию Механический замок (только для соответствующих моделей) Установка A 1. Вставьте тонкую часть (A) механического замка в соответствующий паз на ручке, как показано на иллюстрации. 2. Затяните винт на ручке с замком. Демонтаж • Ослабь...
Русский 15 Исполь зование 10 Быстрый прогрев Режим Быстрый прогрев позволяет быстро нагреть духовой шкаф до заданной температуры. • Нажмите, чтобы включить или выключить функцию Быстрый прогрев. • Если установлена температура ниже 100 °C, функция отключена. • Функция быстрого прогрева доступна тольк...
16 Русский Исполь зование Использование Общие настройки При необходимости заданные по умолчанию значения параметров Температура и/или Время приготовления можно менять при выборе режима приготовления. Выполните приведенные ниже действия для регулировки параметров Температура и/или Время приготовления...
Русский 17 Исполь зование Время завершения 1. Выберите режим приготовления на панели функций. 2. Дважды нажмите , после чего установите требуемое значение параметра Время завершения с помощью кнопок / . 3. Для подтверждения изменений нажмите OK . ПРИМЕЧАНИЕ • При желании можно готовить без установки...
Русский 19 Исполь зование Режимы приготовления 1. Выберите режим приготовления на панели функций. 2. При необходимости установите параметры Время приготовления и/или Температура. Дополнительную информацию см. в разделе Общие настройки . 3. При необходимости можно быстро прогреть духовой шкаф. Для эт...
Русский 23 Исполь зование Остановка процесса приготовления 1. В процессе приготовления нажмите . 2. Нажмите ОК , чтобы отменить приготовление. Специальные функции Добавление специальных или дополнительных функций позволяет повысить эффективность процесса приготовления. Специальные функции недоступны...
24 Русский Исполь зование Использование Автоматическое приготовление Менее опытные пользователи могут выбрать один из 50 готовых рецептов для автоматического приготовления. Эта функция позволяет тратить меньше времени на приготовление блюд или быстрее освоить функции и режимы устройства. Параметры В...
Русский 25 Исполь зование Очистка паром Эта функция позволяет использовать пар для удаления небольших загрязнений. Эта функция позволяет сэкономить время, исключая необходимость регулярной ручной чистки. 1. Налейте 400 мл воды на дно духового шкафа и закройте дверцу. 2. Нажмите на панели функций. 3....
26 Русский Рек ом ендации по приг от ов лению Рекомендации по приготовлению Приготовление вручную ПРЕДУПРЕЖДЕНИЕ об акриламиде Акриламид образуется в процессе выпекания крахмалосодержащих продуктов, например картофельных чипсов, картошки фри и хлеба, и является вредным для здоровья человека вещество...
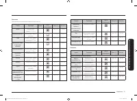
28 Русский Рек ом ендации по приг от ов лению Рекомендации по приготовлению Блюдо Принадлежности Уровень Тип нагрева Температура (°C) Время (мин) Птица (курица/утка/индейка) Курица целиком, 1,2 кг * Решетка + Универсальный противень (для стекающей жидкости) 31 200 65–80 * Кусочки курицы Решетка + Ун...
30 Русский Рек ом ендации по приг от ов лению Рекомендации по приготовлению Двойное приготовление Перед использованием функции двойного приготовления установите разделитель. Для получения наилучших результатов рекомендуется предварительно прогреть духовой шкаф.В следующей таблице представлены 5 прог...
Русский 31 Рек ом ендации по приг от ов лению Для экономии энергии можно использовать только верхнюю или нижнюю зону. При использовании отдельной зоны время приготовления может увеличиться. Для получения наилучших результатов рекомендуется предварительно прогреть духовой шкаф. Верхняя зона Блюдо При...
32 Русский Рек ом ендации по приг от ов лению Рекомендации по приготовлению Двойное приготовление — режим Конвекция Эко Для экономии энергии можно использовать режим Конвекция Эко в верхней или нижней зоне.Время приготовления блюд этой категории указано без учета предварительного прогрева, который н...
38 Русский Рек ом ендации по приг от ов лению Рекомендации по приготовлению Пробные блюда В соответствии со стандартом EN 60350-1 1. Выпечка Рекомендации для выпечки приведены с учетом предварительного прогрева духового шкафа. Не используйте функцию Быстрый прогрев. Всегда устанавливайте противень в...
40 Русский Рек ом ендации по приг от ов лению Рекомендации по приготовлению Яблочный пирог Ингредиенты • Тесто : 275 г муки, 1 / 2 ст. л. соли, 125 г сахарной пудры, 8 г ванильного сахара, 175 г охлажденного сливочного масла, 1 яйцо (взбитое) • Начинка : 750 г крепких яблок, 1 ст. л. лимонного сока,...
42 Русский Обслу живание Обслуживание Очистка Для облегчения очистки духового шкафа выполняйте данную процедуру регулярно. ПРЕДУПРЕЖДЕНИЕ • Перед очисткой убедитесь, что духовой шкаф и принадлежности остыли. • Не используйте абразивные чистящие средства, жесткие щетки, ткани или губки с грубыми воло...
Русский 43 Обслу живание Верхняя стенка камеры духового шкафа (только для соответствующих моделей) 1. Опустите нагревательный элемент гриля. Для этого, удерживая нагревательный элемент гриля, отверните круглую гайку, вращая ее против часовой стрелки. Нагревательный элемент гриля не является съемной ...
44 Русский Обслу живание Обслуживание Боковые решетки (только для соответствующих моделей) 1. Нажмите на верхнюю часть левой решетки и опустите ее вниз, наклонив под углом 45°. 2. Потяните и извлеките нижнюю часть левой решетки. 3. Выполните те же действия с правой решеткой. 4. Очистите обе боковые ...
Русский 45 Ус транение неисправнос тей Устранение неисправностей Контрольные пункты В случае возникновения проблем в работе устройства, сначала сверьтесь со списком, приведенным ниже, и выполните предложенные действия по устранению неполадок. Если проблему не удается устранить, обратитесь в местный ...
Русский 47 Ус транение неисправнос тей Проблема Причина Решение Во время использования духового шкафа присутствует запах гари или пластика. • Используется нежаропрочная посуда из пластмассы или других материалов. • Используйте стеклянную посуду, устойчивую к воздействию высоких температур. Духовой ш...
48 Русский Те хнические харак теристики Код Значение Решение -dC- Если разделитель вынимается из духового шкафа во время приготовления в режиме двойного приготовления.Если разделитель устанавливается в духовой шкаф во время приготовления в режиме единой камеры. Не вынимайте разделитель из духового ш...
Русский 49 Прило ж ение Технический лист с информацией об энергетической эффективности (только для Республики Беларусь) Наименование изготовителя Samsung Наименование модели NV75N7646RB, NV75N7646RS, NV75N7626RB Индекс энергетической эффективности EEI cavity для каждой камеры 81,6 Класс энергетическ...
Samsung Печи Инструкции
-
Samsung BF1N3T022
Инструкция по эксплуатации
-
Samsung BF1N3T134
Инструкция по эксплуатации
-
Samsung BF3N3T013
Инструкция по эксплуатации
-
Samsung BF3N3W013
Инструкция по эксплуатации
-
Samsung BF3N3W080
Инструкция по эксплуатации
-
Samsung BF3ON3T011
Инструкция по эксплуатации
-
Samsung BF641FB
Инструкция по эксплуатации
-
Samsung BFN1351B
Инструкция по эксплуатации
-
Samsung BT621CDST
Инструкция по эксплуатации
-
Samsung BTS1454B
Инструкция по эксплуатации
-
Samsung BTS14D4T
Инструкция по эксплуатации
-
Samsung Dual Cook Flex NV75N7646RS/WT
Инструкция по эксплуатации
-
Samsung FQ115S003
Инструкция по эксплуатации
-
Samsung NV64R3531BS
Инструкция по эксплуатации
-
Samsung NV6584BNESR
Инструкция по эксплуатации
-
Samsung NV6584LNESR
Инструкция по эксплуатации
-
Samsung NV68A1110BB
Инструкция по эксплуатации
-
Samsung NV68A1110BB/WT
Инструкция по эксплуатации
-
Samsung NV68A1110BS/WT
Инструкция по эксплуатации
-
Samsung NV68A1110RB
Инструкция по эксплуатации