Protherm Scat - инструкции и руководства
Котел Protherm Scat - инструкции пользователя по применению, эксплуатации и установке на русском языке читайте онлайн в формате pdf
Инструкции:
Инструкция по эксплуатации Protherm Scat
1
2
3
4
5
6
7
8
9
10
11
12
13
14
15
16
17
18
19
20
21
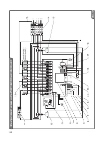
22
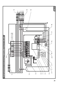
23
24
25
26
27
28
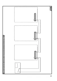
29
30
31
32
33
34
35
36
37
38
39
40
Protherm Котлы Инструкции
-
Protherm Bison NL 30 70
Инструкция по эксплуатации
-
Protherm Grizzly 100 KLO
Инструкция по эксплуатации
-
Protherm Grizzly 130 KLO
Инструкция по эксплуатации
-
Protherm Grizzly 150 KLO
Инструкция по эксплуатации
-
Protherm Grizzly 65 KLO
Инструкция по эксплуатации
-
Protherm Grizzly 85 KLO
Инструкция по эксплуатации
-
Protherm Medved 20 KLZ
Инструкция по эксплуатации
-
Protherm Medved 20 TLO
Инструкция по эксплуатации
-
Protherm Medved 30 KLZ
Инструкция по эксплуатации
-
Protherm Medved 30 TLO
Инструкция по эксплуатации
-
Protherm Medved 40 KLZ
Инструкция по эксплуатации
-
Protherm Medved 40 TLO
Инструкция по эксплуатации
-
Protherm Medved 50 KLZ
Инструкция по эксплуатации
-
Protherm Medved 50 TLO
Инструкция по эксплуатации
-
Protherm Panther 30 KOV
Инструкция по эксплуатации
-
Protherm Panther 35 KTV
Инструкция по эксплуатации
-
Protherm Пантера 25 КТV
Инструкция по эксплуатации
-
Protherm Гепард 12 MTV модель 2015г
Инструкция по эксплуатации
-
Protherm Медведь 30 PLO
Инструкция по эксплуатации
-
Protherm Гризли 100 KLO
Инструкция по эксплуатации