Страница 2 - Содержание
Содержание 2 Руководство по установке и техническому обслуживанию Gepard 0020205765_02 Содержание 1 Безопасность ..................................................... 4 1.1 Относящиеся к действию предупредительные указания............................. 4 1.2 Использование по назначению..................
Страница 3 - Уровень специалиста/уровень сервиса –
Содержание 0020205765_02 Gepard Руководство по установке и техническому обслуживанию 3 A Уровень специалиста/уровень сервиса – Обзор................................................................ 67 B Коды состояния – обзор.................................. 69 C Тестовые программы – Обзор ............
Страница 4 - Безопасность
1 Безопасность 4 Руководство по установке и техническому обслуживанию Gepard 0020205765_02 1 Безопасность 1.1 Относящиеся к действию предупредительные указания Классификация относящихся к действию предупредительных указанийОтносящиеся к действию предупреди- тельные указания классифицированы по степе...
Страница 5 - Безопасность 1
Безопасность 1 0020205765_02 Gepard Руководство по установке и техническому обслуживанию 5 специалисты, имеющие достаточную для этого квалификацию:– Монтаж– Демонтаж– Установка– Ввод в эксплуатацию– Техническое обслуживание– Ремонт– Вывод из эксплуатации ▶ Соблюдайте все прилагаемые к изде- лию руко...
Страница 10 - Указания по документации; Описание изделия
2 Указания по документации 10 Руководство по установке и техническому обслуживанию Gepard 0020205765_02 2 Указания по документации 2.1 Соблюдение совместно действующей документации ▶ Обязательно соблюдайте инструкции, содержащиеся во всех руководствах по эксплуатации и монтажу, прилагаемых к компоне...
Страница 11 - Описание изделия 3
Описание изделия 3 0020205765_02 Gepard Руководство по установке и техническому обслуживанию 11 3 Вторичный теплооб- менник 4 Быстродействующий воздухоотводчик 5 Насос системы отоп- ления 6 Газовая арматура 7 Приоритетный пере- ключающий клапан 3.2 Данные на маркировочной табличке Маркировочная табл...
Страница 12 - Монтаж; Извлечение изделия из упаковки; Извлеките изделие из картонной упаковки.; Проверка комплектности; Проверьте комплект поставки на комплектность.; Размеры
4 Монтаж 12 Руководство по установке и техническому обслуживанию Gepard 0020205765_02 4 Монтаж 4.1 Извлечение изделия из упаковки ▶ Извлеките изделие из картонной упаковки. 4.2 Проверка комплектности ▶ Проверьте комплект поставки на комплектность. Действительность: Россия, Казахстан Количе- ство Наз...
Страница 13 - Монтаж 4
Монтаж 4 0020205765_02 Gepard Руководство по установке и техническому обслуживанию 13 8 Мембранный расши- рительный бак 9 Вентиль мембранного расширительного бака 10 Подключение для удаления отходящих газов 4.4 Минимальные расстояния B B A C Минимальное расстояние A 400 мм B 10 мм C 250 мм 4.5 Расст...
Страница 14 - Снимите крышку камеры, как показано на рисунке.; Снятие/установка боковых частей
4 Монтаж 14 Руководство по установке и техническому обслуживанию Gepard 0020205765_02 4.8.1.1 Снятие крышки камеры сгорания 2x B A ▶ Снимите крышку камеры, как показано на рисунке. 4.8.1.2 Снятие крышки камеры сгорания ▶ Снимите крышку камеры сгорания, как показано на рисунке. 4.8.1.3 Установка крыш...
Страница 15 - Установка 5; Снимите боковые части, как показано на рисунке.; Установка; тельных трубопроводах может вызвать
Установка 5 0020205765_02 Gepard Руководство по установке и техническому обслуживанию 15 2x B D E F G A C C 2x 3. Снимите боковые части, как показано на рисунке. 4.9.2 Установка боковых частей 2x B A E C D ▶ Выполните установку боковых частей, как показано на рисунке. 5 Установка Опасность!Опасность...
Страница 16 - Установка
5 Установка 16 Руководство по установке и техническому обслуживанию Gepard 0020205765_02 Осторожно!Риск материального ущерба в резуль- тате загрязнения труб!Посторонние предметы, такие как остатки шлака от сварки или грязь в трубопрово- дах, могут вызвать повреждение прибора. ▶ Перед установкой тщат...
Страница 19 - RT
Установка 5 0020205765_02 Gepard Руководство по установке и техническому обслуживанию 19 5.5.3 Обеспечение электропитания 1. Откройте блок электроники. (→ страница 17) 2. Убедитесь, что номинальное сетевое напряжение составляет 230 В. 3. Подсоедините кабель питания от сети (со штепсель- ной вилкой) ...
Страница 20 - через многофункциональный модуль; Система воздуховодов/дымоходов; Обзор системы
6 Система воздуховодов/дымоходов 20 Руководство по установке и техническому обслуживанию Gepard 0020205765_02 5.5.6.1 Активация дополнительного компонента через многофункциональный модуль Условия: Компонент подключен к реле 1 ▶ Установите код диагностики d.27, чтобы соотнести реле 1 какую-либо функц...
Страница 21 - Система воздуховодов/дымоходов 6; воздуховодов/дымоходов в шахте
Система воздуховодов/дымоходов 6 0020205765_02 Gepard Руководство по установке и техническому обслуживанию 21 6.1.1.5 Коаксиальное подключение к системе воздуховодов/дымоходов в шахте 60/100 ▶ Монтаж подключения к системе воздухово- дов/дымоходов (→ страница 36) ▶ Подсоедините изделие к системе дымо...
Страница 22 - фицированные компоненты.; Компоненты
6 Система воздуховодов/дымоходов 22 Руководство по установке и техническому обслуживанию Gepard 0020205765_02 6.2 Сертифицированные системы воздуховодов/дымоходов и компоненты 6.2.1 Система воздуховодов/дымоходов ⌀ 60/100 мм Арт. № Система воздуховодов/дымоходов 00201993730020199374 Вертикальный про...
Страница 25 - Условия системы
Система воздуховодов/дымоходов 6 0020205765_02 Gepard Руководство по установке и техническому обслуживанию 25 6.3 Условия системы 6.3.1 Максимально допустимая длина труб ⌀ 60/100 мм Система Арт. № Макс. длина труб Gepard 12 MTV... Gepard 23 MTV... Вертикальный проход через крышу 00201993730020199374...
Страница 27 - дымоходов/воздуховодов
Система воздуховодов/дымоходов 6 0020205765_02 Gepard Руководство по установке и техническому обслуживанию 27 6.3.4 Установка дроссельных шайб Если общая длина труб (длины труб, отводов и, при не- обходимости, остальных деталей) превышает указанный ниже минимально допустимый размер, необходимо вста-...
Страница 37 - Монтаж концентрического подключения; дымоходу
Система воздуховодов/дымоходов 6 0020205765_02 Gepard Руководство по установке и техническому обслуживанию 37 2 1 1. Надвиньте стеновую накладку (2) на трубу воздухо- вода. 2. Установите изделие , см. руководство по установке изделия. 3. Соедините отвод 90° (1) с патрубком изделия и с помощью подход...
Страница 38 - упрощения монтажа системы воздухово-; Выполните установку разъединительного устрой-
6 Система воздуховодов/дымоходов 38 Руководство по установке и техническому обслуживанию Gepard 0020205765_02 6.4.7 Монтаж разъединительного устройства и удлинителей 6.4.7.1 Монтаж разъединительного устройства УказаниеРазъединительное устройство служит для упрощения монтажа системы воздухово- дов/ды...
Страница 39 - трубы отходящих газов могут смещаться и
Система воздуховодов/дымоходов 6 0020205765_02 Gepard Руководство по установке и техническому обслуживанию 39 Опасность!Опасность отравления из-за утечки отхо- дящих газов!В результате теплового расширения трубы отходящих газов могут смещаться и в некоторых случаях даже разъединяться. ▶ Зафиксируйте...
Страница 43 - Таблица значений смещения (→ страница 43)
Система воздуховодов/дымоходов 6 0020205765_02 Gepard Руководство по установке и техническому обслуживанию 43 Таблица значений смещения (→ страница 43) 2. На основе этого значения определите длину трубы по таблице (B) = 284 мм, а также высоту (C) = 420 мм. ◁ Из этого складывается соответствующая дли...
Страница 46 - Соедините все стыки хомутами воздуховода:
6 Система воздуховодов/дымоходов 46 Руководство по установке и техническому обслуживанию Gepard 0020205765_02 6.4.8.5 Монтаж хомутов воздуховода 1. Соедините все стыки хомутами воздуховода: min. 30 mm 70 mm 1 2 3 48 mm min. 15 mm 1 2 3 30 mm min. 12 mm 1 2 3 40 mm min. 15 mm 1 2 3 2. Надвиньте хомут...
Страница 48 - ⌀ 80 мм - с забором воздуха из помещения
6 Система воздуховодов/дымоходов 48 Руководство по установке и техническому обслуживанию Gepard 0020205765_02 6.4.10 Подключение к системе дымоходов ⌀ 80 мм - с забором воздуха из помещения 6.4.10.1 Комплект поставки 1 2 3 6 5 4 1 Присоединительный элемент 2 Отвод 87° 3 Отвод конденсата 4 Отвод 87° ...
Страница 49 - с забором воздуха через концентрическую
Система воздуховодов/дымоходов 6 0020205765_02 Gepard Руководство по установке и техническому обслуживанию 49 6.4.12 Подключение к системе дымоходов DN 80, с забором воздуха через концентрическую шахту - не из помещения 6.4.12.1 Комплект поставки 1 2 3 6 5 4 1 Присоединительный элемент 2 Отвод 87° 3...
Страница 50 - опорной консолью
6 Система воздуховодов/дымоходов 50 Руководство по установке и техническому обслуживанию Gepard 0020205765_02 4 Отвод 87° с опорной консолью 5 Распорка 6 Оголовок шахты 6.4.14.2 Указания по монтажу 1 2 3 7 8 9 10 4 6 5 11 1 Оголовок шахты 2 Удлинитель с ревизи- онным отверстием 3 Ревизионное отвер- ...
Страница 51 - полипропилена
Система воздуховодов/дымоходов 6 0020205765_02 Gepard Руководство по установке и техническому обслуживанию 51 6.4.14.4 Монтаж жесткого дымохода в шахте 1 2 3 4 1. Опустите первый дымоход (3) с помощью стропы (2) вниз насколько, чтобы можно было надеть следую- щий (1). 2. Через интервалы не более 4 м...
Страница 53 - Управление 7; воздуховода (работа без забора воздуха; Управление; Концепция управления
Управление 7 0020205765_02 Gepard Руководство по установке и техническому обслуживанию 53 6.4.14.7 Монтаж шахтного/стенового патрубка для воздуховода (работа без забора воздуха из помещения) 1 3 2 1 1 Труба подачи воздуха 2 Защита от ветра 3 Вентиляция помеще- ния 1. Определите место установки подач...
Страница 54 - Ввод в эксплуатацию
8 Ввод в эксплуатацию 54 Руководство по установке и техническому обслуживанию Gepard 0020205765_02 7.2 Вызов уровня специалиста/уровня сервиса 1. Нажмите и удерживайте 7 секунд. 2. С помощью и задайте код для уровня специа- листа/уровня сервиса.– Код уровня специалиста: 96– Код уровня сервиса (тольк...
Страница 55 - Ввод в эксплуатацию 8
Ввод в эксплуатацию 8 0020205765_02 Gepard Руководство по установке и техническому обслуживанию 55 Проверка заправочной и подпиточной воды ▶ Прежде чем наполнить систему, измерьте жесткость заправочной и подпиточной воды. Подготовка заправочной и подпиточной воды ▶ При приготовлении воды для наполне...
Страница 56 - Удаление воздуха из системы отопления; Наполнение системы горячего
8 Ввод в эксплуатацию 56 Руководство по установке и техническому обслуживанию Gepard 0020205765_02 1 4. Снимите колпачок (1) быстродействующего воздухо- отводчика.– Обороты влево: 1 … 2 5. Поднимите блок электроники вверх и защелкните его. 6. Запустите тестовую программу P.05. (→ страница 54) ◁ Прио...
Страница 60 - Адаптация к системе отопления; Время блокировки горелки; горелки
9 Адаптация к системе отопления 60 Руководство по установке и техническому обслуживанию Gepard 0020205765_02 9 Адаптация к системе отопления В меню диагностики можно настраивать/изменять пара- метры установки.С помощью тестовых программ можно прове- рять/выполнять функции изделия. Обзор всех парамет...
Страница 61 - Передача изделия эксплуатирующей стороне 10; 0 Передача изделия эксплуатирующей
Передача изделия эксплуатирующей стороне 10 0020205765_02 Gepard Руководство по установке и техническому обслуживанию 61 9.3.1 Настройка производительности насоса 1. Временно выведите изделие из эксплуатации. (→ страница 66) 2. Демонтируйте переднюю облицовку. (→ страница 13) 3. Поверните блок элект...
Страница 62 - 1 Устранение неполадок; Сброс параметров на заводские настройки
11 Устранение неполадок 62 Руководство по установке и техническому обслуживанию Gepard 0020205765_02 11.2.2 Очистка памяти ошибок 1. Альтернатива 1 / 2 ▶ Настройте код диагностики d.94. (→ страница 54)Уровень специалиста/уровень сервиса – Обзор (→ страница 67) ▶ Выйдите из меню диагностики. (→ стран...
Страница 63 - Устранение неполадок 11
Устранение неполадок 11 0020205765_02 Gepard Руководство по установке и техническому обслуживанию 63 A B D E C 5. Снимите расширительный бак, как показано на ри- сунке. E D B A C 6. Установите новый расширительный бак, как пока- зано на рисунке. При этом установите новую про- кладку. 7. Повесьте изд...
Страница 64 - 2 Осмотр и техобслуживание
12 Осмотр и техобслуживание 64 Руководство по установке и техническому обслуживанию Gepard 0020205765_02 11.4.4 Замена электронной платы и дисплея 1. Снимите крышку блока электроники. 2. Замените электронную плату в соответствии с при- лагаемым руководством по монтажу и установке. 3. Закрепите крышк...
Страница 65 - Осмотр и техобслуживание 12
Осмотр и техобслуживание 12 0020205765_02 Gepard Руководство по установке и техническому обслуживанию 65 12.3.2 Очистка горелки ▶ Очистите горелку от продуктов сгорания. 12.3.3 Очистка сетчатого фильтра на входе холодной воды 1 1. Очистите прибор со стороны горячей воды, открутив резьбовые соединени...
Страница 66 - 3 Вывод из эксплуатации; 5 Переработка и утилизация
13 Вывод из эксплуатации 66 Руководство по установке и техническому обслуживанию Gepard 0020205765_02 12.7 Завершение работ по осмотру и техническому обслуживанию ▶ Проверьте давление газа на входе. (→ страница 57) 13 Вывод из эксплуатации 13.1 Временный вывод изделия из эксплуатации 1. Нажмите . ◁ ...
Страница 67 - Приложение; A Уровень специалиста/уровень сервиса – Обзор
Приложение 0020205765_02 Gepard Руководство по установке и техническому обслуживанию 67 Приложение A Уровень специалиста/уровень сервиса – Обзор Доступность тех или иных кодов диагностики зависит от того, под каким кодом (специалиста или сервиса) вы зареги- стрировались. Уровень настроек Значения Ед...
Страница 69 - B Коды состояния – обзор
Приложение 0020205765_02 Gepard Руководство по установке и техническому обслуживанию 69 Уровень настроек Значения Единица измере- ния Величина шага, выбор, объяснение Заводские настройки мин. макс. d.69 (Кол-во запусков при второй попытке) Текущее значе- ние – 1 – d.70 (3-ходовой клапан, режим) 0 2 ...
Страница 70 - C Тестовые программы – Обзор
Приложение 70 Руководство по установке и техническому обслуживанию Gepard 0020205765_02 Код состояния Значение S.10 Запрос горячей воды от датчика крыльчатки S.11 Режим ГВС: запуск вентилятора S.13 Режим ГВС: розжиг S.14 Режим ГВС: горелка работает S.15 Режим ГВС: выбег насоса/вентилятора S.16 Режим...
Страница 71 - D Сообщения об ошибках – Обзор
Приложение 0020205765_02 Gepard Руководство по установке и техническому обслуживанию 71 Индика- ция Значение P.07 Тестовая программа «Удаление воздуха (контур горячей воды)»: Внутренний насос запускается в тактовом режиме. Из контура горячей воды через быстродействующий воздухоотводчик удаляется воз...
Страница 74 - E Работы по осмотру и техническому обслуживанию – обзор
Приложение 74 Руководство по установке и техническому обслуживанию Gepard 0020205765_02 Сообщение Возможная причина Мероприятие F.71 Сбой датчика темпера- туры в подающей линии NTC-датчик подающей линии выдает постоянное значение 1. Проверьте расположение NTC-датчика подающей линии. NTC-датчик, непр...
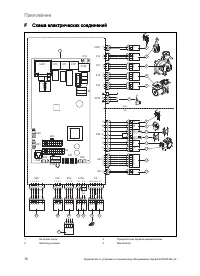
Страница 76 - F Схема электрических соединений
Приложение 76 Руководство по установке и техническому обслуживанию Gepard 0020205765_02 F Схема электрических соединений – + 24V= RT BUS X40 X41 X32 X20 X2 X30 X51 X90 X13 U901 F200 X11 X19 X12 X104 X106 230V~ 24V N L N L 2 1 3 X104 X11 2 1 3 2 1 3 X12 2 1 3 5 4 6 2 3 1 X41 X40 5 1 1 5 X2 2 3 1 5 6 ...
Страница 77 - G Технические характеристики; Технические характеристики – мощность/нагрузка G20
Приложение 0020205765_02 Gepard Руководство по установке и техническому обслуживанию 77 5 Насос системы отопления 6 Электропитание опциональной электронной платы 7 Кабель подключения к электрической сети 8 Контрольный электрод 9 Реле давления 10 Датчик температуры в подающей линии 11 Датчик температ...
Страница 78 - Технические характеристики - отопление
Приложение 78 Руководство по установке и техническому обслуживанию Gepard 0020205765_02 Gepard 12 MTV (H‑RU) Gepard 23 MTV (H‑RU) Потребление газа при номинальной мощности при 15°C и 1013 мбар (при необходимости, в пересчете на ГВС), G20 2,9 м³/ч 2,9 м³/ч Потребление газа при номинальной мощности пр...
Страница 79 - Технические характеристики - электрика
Приложение 0020205765_02 Gepard Руководство по установке и техническому обслуживанию 79 Gepard 12 MTV (H‑RU) Gepard 23 MTV (H‑RU) Необходимое подключаемое давление 0,1 … 0,4 МПа(1,0 … 4,0 бар) 0,1 … 0,4 МПа(1,0 … 4,0 бар) Диапазон температур горячей воды на выходе 35 … 65 ℃ 35 … 65 ℃ Технические хар...
Страница 80 - Указатель ключевых слов
Указатель ключевых слов 80 Руководство по установке и техническому обслуживанию Gepard 0020205765_02 Указатель ключевых слов ААктивация дополнительного компонента ........................ 20Аэрозоль для поиска утечек ............................................... 7ВВес ................................