Страница 5 - РАЗМОРАЖИВАНИЕ ВРУЧНУЮ.; СОДЕРЖАНИЕ; ПОЛКИ
INOXPAN S.L. ВИННЫЕ ШКАФЫ 5 12. ПОСЛЕПРОДАЖНОЕ И ГАРАНТИЙНОЕ ОБСЛУЖИВАНИЕ .......................................................53 11. СХЕМА УКЛАДКИ БУТЫЛОК ..........................................................................................................51 10. СХЕМЫ УСТАНОВКИ И РАЗМЕРЫ ......
Страница 7 - УКАЗАНИЯ ПО ТЕХНИКЕ БЕЗОПАСНОСТИ
INOXPAN S.L. ВИННЫЕ ШКАФЫ 7 Для минимизации опасности возгорания, поражения электрическим током и травмирования при использовании электроприборов необходимо соблюдать определенные меры предосторожности, указанные ниже. ДЛЯ ВАШЕЙ БЕЗОПАСНОСТИ Внимательно изучите это руководство, даже если вы уже хоро...
Страница 9 - кроме тех, которые рекомендуются производителем.; НЕ; рекомендуется использовать прибор в ПРОМЫШЛЕННЫХ целях.
INOXPAN S.L. ВИННЫЕ ШКАФЫ 9 ВНИМАНИЕ! Не заслоняйте вентиляционные отверстия прибора или конструкции, в которые встраивается прибор. Производитель не несет ответственности за повреждения, возникшие в результате неправильного использования или ремонта, проведенного специалистом без надлежащей подгото...
Страница 11 - УТИЛИЗАЦИЯ УПАКОВКИ.
INOXPAN S.L. ВИННЫЕ ШКАФЫ 11 Производитель не несет ответственности за возможные неточности в этом руководстве из- за дефектов печати или перевода. Производитель оставляет за собой право вносить любые полезные или необходимые изменения в прибор, которые существенно не влияют на функциональные характ...
Страница 12 - ХАРАКТЕРИСТИКИ ПРИБОРА; °C до 12 °C в верхней зоне и от 12 °C до 20 °C в нижней зоне. Температура; белого и игристого вина.; Звуковое оповещение открытой дверцы.
INOXPAN S.L. ВИННЫЕ ШКАФЫ 12 2. ХАРАКТЕРИСТИКИ ПРИБОРА • В приборе установлены полки, а также предусмотрены одна, две или три температурных зоны в зависимости от модели. • Предусмотрено электронное управление температурой с помощью сенсорного ЖК-дисплея. • Температура регулируется в диапазоне от 5 °...
Страница 13 - ПЕРЕД ИСПОЛЬЗОВАНИЕМ ПРИБОРА; • Прибор предназначен для встраивания или напольной установки.; предназначен исключительно для использования в помещении.
INOXPAN S.L. ВИННЫЕ ШКАФЫ 13 3. УСТАНОВКА МОНТАЖНАЯ СХЕМА И РАЗМЕРЫ УКАЗАНЫ В КОНЦЕ ЭТОГО РУКОВОДСТВА. 3.1. ПЕРЕД ИСПОЛЬЗОВАНИЕМ ПРИБОРА • Снимите всю внешнюю и внутреннюю упаковку. Очистите внутренние поверхности мягкой тканевой салфеткой, смоченной теплой водой. В первое время прибор может содержа...
Страница 14 - ПРИМЕЧАНИЕ. Вилка кабеля электропитания; УСТАНОВКА ПРИБОРА ПОД СТОЛЕШНИЦЕЙ; При перемещении прибора в место установки не допускайте зажатия
INOXPAN S.L. ВИННЫЕ ШКАФЫ 14 ПРИМЕЧАНИЕ. Вилка кабеля электропитания прибора должна быть легко доступна. ВАЖНО! ВЫСОКАЯ ВЛАЖНОСТЬ. При повышении влажности на внешней поверхности стеклянной дверцы может образовываться конденсат. Конденсат исчезнет при снижении уровня влажности. Чтобы предотвратить об...
Страница 16 - изменить направление открывания дверцы для модели PVZB 15-9,; НЕТ; ОТКРЫВАНИЕ; ДВЕРЦА С ИЗМЕНЯЕМЫМ НАПРАВЛЕНИЕМ ОТКРЫВАНИЯ; ОТКРЫВАНИЕ СПРАВА; сервисный
INOXPAN S.L. ВИННЫЕ ШКАФЫ 16 ВНИМАНИЕ! Следующее касается только модели PVZB 15-9 : направление открывания дверцы следует указать во время покупки прибора, поскольку на дверцу наносится ориентированная шелкография. Фактически, при разворачивании дверцы необходимо приобрести новую, с правильно ориент...
Страница 17 - Стопорные винты
INOXPAN S.L. ВИННЫЕ ШКАФЫ 17 3.6.1 ДВЕРЦА С ИЗМЕНЯЕМЫМ НАПРАВЛЕНИЕМ ОТКРЫВАНИЯ И НАРУЖНЫМИ ПЕТЛЯМИ РИС. 1 РИС. 2 РИС. 3 РИС. 4 (1) Стопорные винты (4) Верхняя петля (правая) (7) Верхняя петля (левая) (2) Нижняя петля (правая) (3) Штифт дверцы (5) Дверца (6) Корпус винного шкафа (8) Нижняя петля (лев...
Страница 18 - Климатический; температура в помещении ниже определенного значения.; УСЛОВИЯ ЭКСПЛУАТАЦИИ ПРИБОРА
INOXPAN S.L. ВИННЫЕ ШКАФЫ 18 Эксплуатация прибора должна осуществляться в указанном диапазоне температур в помещении. Климатический класс (ST) указан на заводской табличке внутри прибора. Прибор может выйти из строя при эксплуатации вне указанного диапазона температур в течение длительного периода в...
Страница 19 - ЭКСПЛУАТАЦИЯ ПРИБОРА
INOXPAN S.L. ВИННЫЕ ШКАФЫ 19 5.1. ПАНЕЛЬ УПРАВЛЕНИЯ 5.1.1. ПАНЕЛЬ УПРАВЛЕНИЯ МОДЕЛИ PVZB 15-9 ПАНЕЛЬ УПРАВЛЕНИЯ С ПОДСВЕТКОЙ Показывает температуру и другую информацию. ИНДИКАТОР ВКЛЮЧЕНИЯ . При первом подключении винного шкафа он включится автоматически, при этом раздастся подтверждающий звуковой с...
Страница 22 - температуру для нижней зоны нельзя задать ниже, чем для верхней.
INOXPAN S.L. ВИННЫЕ ШКАФЫ 22 5.1.2. ПАНЕЛЬ УПРАВЛЕНИЯ МОДЕЛЕЙ PVZB 30-16, PVZB 60-46, PVZL 180-165 (ДВОЙНАЯ ЗОНА) ВЫБОР ОТОБРАЖЕНИЯ ТЕМПЕРАТУРЫ В ГРАДУСАХ ºC / ºF Выберите настройку отображения температуры в градусах Фаренгейта или Цельсия. Чтобы изменить отображение температуры с градусов Фаренгейт...
Страница 25 - Не выдвигайте более одной наполненной вином полки за один раз, так
INOXPAN S.L. ВИННЫЕ ШКАФЫ 25 5.4 ПОЛКИ И ХРАНЕНИЕ ВНИМАНИЕ! Не выдвигайте более одной наполненной вином полки за один раз, так как это может привести к опрокидыванию прибора вперед. Некоторые полки позволяют хранить бутылки с вином, выложенные в несколько рядов друг на друга. Такие полки нельзя выдв...
Страница 27 - нажмите на; пластиковые фиксаторы направляющих с двух сторон полки
INOXPAN S.L. ВИННЫЕ ШКАФЫ 27 5.5. ПОЛКИ • Для снятия полок с направляющих сначала полностью выдвиньте полки. Одновременно нажмите на пластиковые фиксаторы направляющих с двух сторон полки : надавите на фиксатор с правой стороны вниз, как показано на рис. A, и потяните за фиксатор с левой стороны вве...
Страница 32 - Вымойте полки раствором неагрессивного моющего средства.; ОЧИСТКА И ОБСЛУЖИВАНИЕ
INOXPAN S.L. ВИННЫЕ ШКАФЫ 32 ВНИМАНИЕ! Перед обслуживанием или очисткой необходимо обязательно отключить прибор от электросети. В ином случае существует опасность поражения электрическим током или травмирования. 6.1. ОЧИСТКА ПРИБОРА Выключите прибор, отсоедините кабель питания и извлеките все из при...
Страница 35 - УСТРАНЕНИЕ НЕИСПРАВНОСТЕЙ
INOXPAN S.L. ВИННЫЕ ШКАФЫ 35 Многие распространенные проблемы легко решаются без необходимости обращения в сервисный центр. Перед обращением в сервисный центр и службу послепродажного обслуживания попробуйте устранить проблему с помощью указаний в таблице ниже. ПРОБЛЕМА ВОЗМОЖНАЯ ПРИЧИНА СПОСОБ УСТР...
Страница 37 - oF) при условии, что эта температура поддерживается постоянно.; ЧАСТО ЗАДАВАЕМЫЕ ВОПРОСЫ
INOXPAN S.L. ВИННЫЕ ШКАФЫ 37 1. Какие параметры должны быть соблюдены для хранения качественного вина? Свет, влажность, температура и вибрация. 2. При какой температуре хранить вино? Вино следует хранить при температуре в диапазоне от 11 ºC до 14 ºC (52–57 ºF). Тем не менее можно использовать любую ...
Страница 38 - Вентиляторы; ВИННЫЙ ШКАФ НЕЛЬЗЯ РАЗМЕЩАТЬ В ТАКИХ МЕСТАХ.
INOXPAN S.L. ВИННЫЕ ШКАФЫ 38 9. Двигатели вентиляторов включаются и выключаются, даже если установленная температура достигнута. При работе компрессора в режиме динамического контроля температуры и влажности внутренние вентиляторы включаются и выключаются для обеспечения циркуляции воздуха, а также ...
Страница 39 - ТЕХНИЧЕСКИЕ ХАРАКТЕРИСТИКИ; ХАРАКТЕРИСТИКИ
INOXPAN S.L. ВИННЫЕ ШКАФЫ 39 9. ТЕХНИЧЕСКИЕ ХАРАКТЕРИСТИКИ ХАРАКТЕРИСТИКИ PVZB 15-9 PVZB 30-16 PVZB 60-46 PVZL 180-165 Количество зон 1 2 2 2 Кол-во бутылок на выдвигающихся полках, всего 9 16 46 165 Высота бутылки, мм 300 300 300 300 Кол-во съемных полок из бука 6 (несъемных) 5 6 15 Кол-во несъемны...
Страница 40 - Потребление
INOXPAN S.L. ВИННЫЕ ШКАФЫ 40 ХАРАКТЕРИСТИКИ PVZB 15-9 PVZB 30-16 PVZB 60-46 PVZL 180- 165 Закаленное стекло Да Да Да Да Вентиляция (вентиляция через кухонную мебель/через плинтус с вентиляционной решеткой) Передняя вентиляцион ная решетка Передняя вентиляцион ная решетка Передняя вентиляцион ная реш...
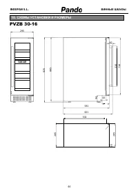
Страница 41 - СХЕМЫ УСТАНОВКИ И РАЗМЕРЫ
INOXPAN S.L. ВИННЫЕ ШКАФЫ 41 565 525 475 PVZB 15-9 150 10. СХЕМЫ УСТАНОВКИ И РАЗМЕРЫ 565 525 475 40 53 100 825 815 95 510
Страница 43 - Вид спереди
INOXPAN S.L. ВИННЫЕ ШКАФЫ 43 5 PVZB 15-9 Вид спереди 150 Вид сбоку "I" 156 Вид сверху 475 "I" 5 >550 10. СХЕМЫ УСТАНОВКИ И РАЗМЕРЫ 40 525 100 53 >8 3 0 8 2 5 8 1 5 95 5 10 7 2 0
Страница 53 - ПОСЛЕПРОДАЖНОЕ И ГАРАНТИЙНОЕ ОБСЛУЖИВАНИЕ
INOXPAN S.L. ВИННЫЕ ШКАФЫ 53 12. ПОСЛЕПРОДАЖНОЕ И ГАРАНТИЙНОЕ ОБСЛУЖИВАНИЕ Компания INOXPAN S.L. благодарит за выбор нашей торговой марки и доверие к продукции Pando, которая является стандартом качества, дизайна и инноваций, торговой марки, уважающей свои традиции и обязательства. ГАРАНТИЙНЫЕ УСЛОВ...