Страница 2 - RUS Инструкция по применению; Данный прибор изготовлен в мае 2018 года.
RUS Инструкция по применению Дата изготовления прибора содержится в его серийном номере.Серийный номер прибора указан на внутренней этикетке, которая размещена на вытяжке. Расшифровка серийного номера. Данный прибор изготовлен в мае 2018 года.
Страница 3 - ВЫТЯЖКИ КУХОННЫЕ; Уважаемый покупатель!; сертифицировано СЕ, T
RUS Инструкция по применению RUS Инструкция по применению ВЫТЯЖКИ КУХОННЫЕ 1 Уважаемый покупатель! Мы благодарны Вам за то, что Вы выбрали продукцию «KRONAsteel». Мы постарались сделать все, чтобы вы остались довольны нашим изделием. Ваше мнение о нашем продукте очень важно для нас. Мы будем признат...
Страница 4 - Декоративный короб воздуховода вытяжки – 2 шт.; ТЕХНИЧЕСКИЕ ХАРАКТЕРИСТИКИ; Модель
RUS Инструкция по применению ВЫТЯЖКИ КУХОННЫЕ 2 КОМПЛЕКТАЦИЯ* В комплект поставки входят:1. Корпус вытяжки – 1 шт. 2. Декоративный короб воздуховода вытяжки – 2 шт. 3. Комплект крепежа вытяжки к стене – 1 упаковка. 4. Инструкция – 1 шт. (*комплектация может быть изменена без предварительного уведомл...
Страница 5 - ПРАВО НА ГАРАНТИЙНОЕ; БЕЗОПАСНОСТЬ ДЕТЕЙ
RUS Инструкция по применению RUS Инструкция по применению ВЫТЯЖКИ КУХОННЫЕ 3 Внимание! Во избежание поломки перед включением вытяжки в холод-ное время года, необходимо выдер-жать ее в распакованном виде при комнатной температуре не менее 2-х часов. Применение изделия в целях, отличных от бытовых, не...
Страница 6 - МЕРЫ БЕЗОПАСНОСТИ
RUS Инструкция по применению ВЫТЯЖКИ КУХОННЫЕ 4 МЕРЫ БЕЗОПАСНОСТИ Вытяжка подключается к электросети напряжением 220–230 В~, 50 Гц. Во избежание поражения электриче- ским током вытяжка должна включаться в розетку с заземлением. Данное изделие относится к классу 1 защиты от поражения электрическим то...
Страница 7 - ОПИСАНИЕ ВЫТЯЖКИ
RUS Инструкция по применению RUS Инструкция по применению ВЫТЯЖКИ КУХОННЫЕ 5 ОПИСАНИЕ ВЫТЯЖКИ Наружная часть вытяжки состоит из следующих составных частей (см. рис. 1): 1. Внутренняя часть короба вытяжки.2. Наружная часть короба вытяжки.3. Откидная панель.4. Пульт управления вытяжкой.5. Лампы освеще...
Страница 8 - Ваша вытяжка имеет 3 скорости вен-; Пульт управления; На лицевой панели вытяжки распо-; УПРАВЛЕНИЕ ВЫТЯЖК0Й
RUS Инструкция по применению ВЫТЯЖКИ КУХОННЫЕ 6 Ваша вытяжка имеет 3 скорости вен- тиляции. В зависимости от того, на-сколько велики испарения при готовке и жарке, вы можете выбрать наиболее подходящую скорость вентиляции. Для более полной очистки воздуха включайте плиту и вытяжку одновре-менно. Это...
Страница 9 - ЭКСПЛУАТАЦИЯ ВЫТЯЖКИ; Кухонная вытяжка, в зависимости от; Наибольшую
RUS Инструкция по применению RUS Инструкция по применению ВЫТЯЖКИ КУХОННЫЕ 7 ЭКСПЛУАТАЦИЯ ВЫТЯЖКИ Кухонная вытяжка, в зависимости от ее установки, может работать в двух режимах:– режим отвода воздуха в вентиля- ционную шахту; – режим рециркуляции. В режиме отвода воздуха в вентиля- ционную шахту (см...
Страница 11 - Замена ламп подсветки
RUS Инструкция по применению RUS Инструкция по применению ВЫТЯЖКИ КУХОННЫЕ 9 Чтобы установить фильтр, его не- обходимо слегка поджать к решетке короба мотора и повернуть по часовой стрелке до фиксации его на решет-ке (см. рис. 8). Для снятия угольного фильтра его следует слегка поджать к решетке кор...
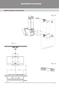
Страница 12 - УСТАНОВКА ВЫТЯЖКИ
RUS Инструкция по применению ВЫТЯЖКИ КУХОННЫЕ 10 УСТАНОВКА ВЫТЯЖКИ Только квалифицированный специ-алист имеет право устанавливать и подключать вытяжку к электросети. Не рекомендуется начинать монтаж вытяжки и снимать с нее защитную пленку, пока Вы не убедитесь в ее тех-нической исправности путем под...
Страница 14 - откидное
RUS Инструкция по применению ВЫТЯЖКИ КУХОННЫЕ 12 Рис. 13 Рис. 14 Рис. 15 Рис. 16 5) Повесьте вытяжку, привинтив ее в точках A и B, соблюдая зазор меж ду головкой винта и стеной 5 мм. (Рисунок 13) 6) Откройте откидное стек- ло вытяжки, потянув его на себя, и удалите алюминие-вый фильтр. Закрепите кор...
Страница 15 - ) Осторожно вставьте внутренний ко-
RUS Инструкция по применению RUS Инструкция по применению ВЫТЯЖКИ КУХОННЫЕ 13 8) Осторожно вставьте внутренний ко- жух во внешний и установите их на верхней части вытяжки так, чтобы низ внешнего кожуха находился за преде-лами фиксаторов расположенных на верхней части корпуса вытяжки. 9) Потяните вну...
Страница 16 - Вытяжка подк лючается к электро-
RUS Инструкция по применению ВЫТЯЖКИ КУХОННЫЕ 14 ПОДКЛЮЧЕНИЕ К ЭЛЕКТРОСЕТИ Вытяжка подк лючается к электро- сети напряжением 220–240 В~, 50–60 Гц. Во избежание поражения электри- ческим током вытяжка должна вклю-чаться в розетку с заземлением. В целях дополнительной защиты вытяжки от перепадов напря...
Страница 17 - Центра технической поддержки
RUS Инструкция по применению RUS Инструкция по применению ВЫТЯЖКИ КУХОННЫЕ 15 ВОЗМОЖНЫЕ НЕИСПРАВНОСТИ ВЫТЯЖКИ И СПОСОбЫ ИХ УСТРАНЕНИЯ П р о ве р и ть э л е кт р и че ск и е с о е д ин е ния П р о ве р и ть в кл ю че н л и м о то р П р о ве р и ть в ы кл ю ча те л ь л а м п ы (д о л ж е н б ы ть в кл...