Страница 8 - Уважаемый потребитель!; них правила техники безопасности при работе.; всего срока службы машины.; ГАРАНТИЙНЫЕ ОБЯЗАТЕЛЬСТВА ПРОИЗВОДИТЕЛЯ; ских условий изготовителя.
8 РУССКИЙ Уважаемый потребитель! При покупке машины ручной бензиномоторной: – требуйте проверки её исправности путем пробного запуска, а также комплектности согласно сведе- ниям соответствующего раздела настоящего Руководства по эксплуатации; – убедитесь, что гарантийный талон оформлен должным образ...
Страница 9 - ИНСТРУКЦИЯ ПО БЕЗОПАСНОСТИ; ОБЩИЕ УКАЗАНИЯ МЕР БЕЗОПАСНОСТИ; ВНИМАНИЕ! Бензин является легковоспламеняющейся жидкостью.
9 РУССКИЙ ИНСТРУКЦИЯ ПО БЕЗОПАСНОСТИ ОБЩИЕ УКАЗАНИЯ МЕР БЕЗОПАСНОСТИ 1 ВНИМАНИЕ! Прочтите все предупреждения и указания мер безопасности и все инструкции. Невыпол- нение предупреждений и инструкций может привести к тяжелым травмам, пожару и (или) серьезным повреждениям. Сохраните все предупреждения ...
Страница 10 - ) Эксплуатация и уход за бензиномоторной машиной.; МЕРЫ БЕЗОПАСНОСТИ ПРИ РАБОТЕ МОТОКОСОЙ БЕНЗИНОМОТОРНОЙ; колпачком провода высокого напряжения в защитных перчатках.
10 РУССКИЙ вреждений. e) Перед запуском машины удалите все регулировочные или гаечные ключи. Ключ, оставленный вблизи враща- ющихся частей машины, может привести к травмированию оператора. f) При работе не пытайтесь дотянуться до чего-либо, всегда сохраняйте устойчивое положение. Это позволит обеспе...
Страница 11 - нить повреждение перед тем, как продолжить работу
11 РУССКИЙ c ) тщательно проверьте территорию, на которой будет выполняться работа. Удалите с неё весь мусор, который может попасть под рабочий инструмент, и все предметы, которые могут быть отброшены леской; d) крепко держите работающую мотокосу обеими руками, обхватив рукоятки пальцами; e) остерег...
Страница 12 - СВЕДЕНИЯ О СЕРТИФИКАТЕ СООТВЕТСТВИЯ
12 РУССКИЙ Кусторез бензиномоторный, соответствуют техническому регламентам Таможенного союза: ТР ТС 010/2011 “О безопасности машин и оборудования”; ТР ТС 020/2011 “Электромагнитная совместимость технических средств. Соответствие техническим регламентам обеспечивается применением и выполнением норм ...
Страница 13 - ОБЩИЕ СВЕДЕНИЯ; запылённости воздуха.
13 РУССКИЙ РУКОВОДСТВО ПО ЭКСПЛУАТАЦИИ ОБЩИЕ СВЕДЕНИЯ 1 1.1 Кусторез бензиномоторный моделей: КБ-25/33В, КБ-25/43В, КБ-25/52В (далее по тексту «кусторез») предна- значены для кошения зелёной и жесткой травы и мелкого травянистого кустарника в парках и садах, на приусадебных и дачных участках, обочин...
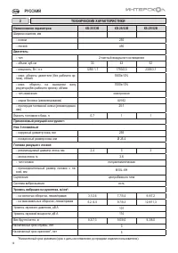
Страница 14 - Наименование параметров; ТЕХНИЧЕСКИЕ ХАРАКТЕРИСТИКИ
14 РУССКИЙ Наименование параметров КБ-25/33В КБ-25/43В КБ-25/52В Ширина кошения, мм – ножом 255 – леской 450 Двигатель: – тип 2-тактный воздушного охлаждения – объем, куб.см 33 43 52 – мощность, Вт / л.с 1250/ 1,7 1750/2,3 2300/3,1 – макс. обороты двигателя (без рабочего ор- гана), об/мин 9300±10% –...
Страница 15 - Наименование
15 РУССКИЙ Наименование КБ-25/33В КБ-25/43В КБ-25/52В Кусторез 1 1 1 Инструкция по безопасности и Руко- водство по эксплуатации 1 1 1 Гарантийный талон 1 1 1 Рукоятка двух состовная велосипед- ного типа 1 1 1 Нож 3-лезвийный 1 1 1 Комплект крепежа для ножа 1 1 1 Кожух защитный ножа 1 1 1 Комплект кр...
Страница 17 - ПОДГОТОВКА К РАБОТЕ И ПОРЯДОК РАБОТЫ; ПЕРЕД НАЧАЛОМ ЭКСПЛУАТАЦИИ КУСТОРЕЗА НЕОБХОДИМО:
17 РУССКИЙ Двигатель должен работать на топливной смеси из бензина и моторного масла для двухтакт- ных двигателей (2Т). НЕ ИСПОЛЬЗУЙТЕ автомобильные и лодочные масла для четырехтактных двигателей. При приготовлении топливной смеси следуйте указаниям производителя масла. Для приготовления топливной с...
Страница 19 - ОБСЛУЖИВАНИЕ МАШИНЫ; ТЕХНИЧЕСКОЕ ОБСЛУЖИВАНИЕ
19 РУССКИЙ следует производить за несколько проходов; – для повышения эффективности косите траву справа налево (в направлении вращения лески). Срезанная трава при этом отбрасывается на скошенную поверхность; – не рекомендуется косить влажную траву. – в случае значительного нагрева нижней части штанг...
Страница 20 - Периодичность обслуживания
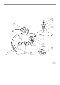
20 РУССКИЙ Перед проведением любой операции по обслуживанию и регулировке двигателя и других частейкустореза отсо- едините колпачок свечи зажигания. Диагностирование кустореза производится по мере необходимости. По окончании работ по обслуживанию кустореза смажте выходной конец шпинделя консистентно...
Страница 21 - гарантия считается недействительной.
21 РУССКИЙ Возьмите около 3,6 метров лески, слегка придавите пятку автоматического выпуска лески и проденьте в отверстие 34 леску так, чтобы оба конца были одинаковой длинны. Вращая пятку автоматического выпуска лески 33, по часовой стрелке, намотайте леску на катушку. Не наматывайте всю леску, оста...
Страница 22 - ВОЗМОЖНЫЕ НЕИСПРАВНОСТИ; НЕИСПРАВНОСТЬ
22 РУССКИЙ 6.3 ВОЗМОЖНЫЕ НЕИСПРАВНОСТИ НЕИСПРАВНОСТЬ ВЕРОЯТНАЯ ПРИЧИНА СПОСОБ УСТРАНЕНИЯ Двигатель не заводится или самопро- извольно останавливается Выключатель зажигания находится в положении “O” Установите выключатель зажигания в положение “I” Неправильная процедура запуска Выполнять инструкции С...
Страница 23 - мая температура хранения от 0 °С до плюс 40 °С.; АКСЕССУАРЫ; официальном сайте компании.; УТИЛИЗАЦИЯ; В других обстоятельствах:
23 РУССКИЙ ХРАНЕНИЕ 7 7.1 Во время назначенного срока службы, храните машину в сухом отапливаемом помещении. Рекомендуе- мая температура хранения от 0 °С до плюс 40 °С. Перед помещением машины на хранение снимите рабочий инструмент. Во время транспортировки недопустимо прямое воздействие осадков, пр...