Страница 2 - Уважаемый потребитель!; При покупке машины ручной электрической (электроинструмента):; ГАРАНТИЙНЫЕ ОБЯЗАТЕЛЬСТВА ПРОИЗВОДИТЕЛЯ; ских условий изготовителя.
Уважаемый потребитель! При покупке машины ручной электрической (электроинструмента): - требуйте проверки её исправности путем пробного включения, а также комплектности согласно сведениям соответствующего раздела настоящего руководства по эксплуатации; - убедитесь, что гарантийный талон оформлен долж...
Страница 6 - СОДЕРЖАНИЕ; ИНСТРУКЦИЯ ПО БЕЗОПАСНОСТИ
6 РУССКИЙ СОДЕРЖАНИЕ ИНСТРУКЦИЯ ПО БЕЗОПАСНОСТИ 7 1 ОБЩИЕ УКАЗАНИЯ МЕР БЕЗОПАСНОСТИ 7 2 ДОПОЛНИТЕЛЬНЫЕ УКАЗАНИЯ МЕР БЕЗОПАСНОСТИ ДЛЯ МАШИН РУЧНЫХ ЭЛЕКТРИЧЕСКИХ ФРЕЗЕРНЫХ 8 3 МЕРЫ БЕЗОПАСНОСТИ ДЛЯ ФРЕЗЕРНЫХ МАШИН 8 СВЕДЕНИЯ О СЕРТИФИКАТЕ СООТВЕТСТВИЯ 10 РУКОВОДСТВО ПО ЭКСПЛУАТАЦИИ 1 1 1 ОБЩИЕ СВЕДЕНИ...
Страница 10 - совместимость технических средств».; СВЕДЕНИЯ О СЕРТИФИКАТЕ СООТВЕТСТВИЯ
10 РУССКИЙ Машины ручные электрические фрезерные, выпускаемые АО «ИНТЕРСКОЛ», соответствуют тех - ническим регламентам Таможенного союза ТР ТС 010/2011 «О безопасности машин и оборудования», ТР ТС 004/2011 «О безопасности низковольтного оборудования», ТР ТС 020/2011 «Электромагнитная совместимость т...
Страница 11 - РУКОВОДСТВО ПО ЭКСПЛУАТАЦИИ; ОБЩИЕ СВЕДЕНИЯ
11 РУССКИЙ РУКОВОДСТВО ПО ЭКСПЛУАТАЦИИ ОБЩИЕ СВЕДЕНИЯ 1 1.1. Машина ручная электрическая фрезерная ФМ-40/1000Э (далее по тексту «машина») предна - значена для фрезерования изделий из древесины, древесно-стружечных плит, пластмасс при помощи пальцевых и концевых фрез. 1.2. Машина предназначена для эк...
Страница 12 - КОМПЛЕКТНОСТЬ
12 РУССКИЙ Наименование параметра Наименование модели ФМ-40/1000Э Масса согласно процедуре ЕРТА 01/2003 (без кабеля), кг 2,3 Средний уровень звукового давления, Lpa, дБ(A) 85 Средний уровень звуковой мощности, Lwa, дБ(A) 98 Коэффициент неопределенности, K, дБ 3 Среднеквадратичное значение корректиро...
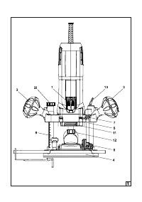
Страница 13 - 0- винты блокировки линейки направляющей
13 РУССКИЙ 9 - линейка направляющая; 10- винты блокировки линейки направляющей; 11- кнопка блокировки шпинделя; 12- гайка накидная; 13- рычаг фиксатора вертикального положения; 14- адаптер для удаления пыли; 15- винт для крепления адаптера; 16 - ключ шестигранный торцевый; 17 - копир роликовый; 18 -...
Страница 15 - на конце шпинделя и, заблокировав ее кнопкой (; няться только при выключенной машине.; Установите машину на плоской пов
15 РУССКИЙ 6.5 УСТАНОВКА И/ИЛИ ЗАМЕНА РАБОЧЕГО ИНСТРУМЕНТА: ВНИМАНИЕ! Перед выполнением любых регулировок машины вилку сетевого кабе - ля следует вынуть из розетки. В процессе монтажа и удаления фрезерных головок рекомендуется надевать защитные перчатки. ВНИМАНИЕ! Не допускается устанавливать на маш...
Страница 16 - Затяните винты блокировки (
16 РУССКИЙ центра. Установите требуемый радиус между центром окружности и центром обрабатываемого паза. Затяните винты блокировки ( 10 ), чтобы зафиксировать центр. Установите центр ( 18 ) в центр окружности. Фрезерование осуществляется подачей машины вокруг центра по часовой стрелке. 6.10 ФРЕЗЕРОВА...
Страница 18 - согласно нормам, действующим в стране эксплуатации.
18 РУССКИЙ УТИЛИЗАЦИЯ 11 11.1 Машина, отслужившая свой срок и не подлежащая восстановлению, должна утилизироваться согласно нормам, действующим в стране эксплуатации. В других обстоятельствах: – не выбрасывайте машину вместе с бытовым мусором; – рекомендуется обращаться в специализированные пункты в...