Страница 3 - При покупке машины ручной электрической (электроинструмента):; Помните: электроинструмент является; технических условий изготовителя.
3 РУССКИЙ Уважаемый потребитель! При покупке машины ручной электрической (электроинструмента): - требуйте проверки её исправности путем пробного включения, а также комплектности согласно сведениям соответствующего раздела настоящего руководства по эксплуатации; - убедитесь, что гарантийный талон офо...
Страница 4 - РУССКИЙ; ИНСТРУКЦИЯ ПО БЕЗОПАСНОСТИ
4 РУССКИЙ ИНСТРУКЦИЯ ПО БЕЗОПАСНОСТИ ОБЩИЕ УКАЗАНИЯ МЕР БЕЗОПАСНОСТИ ЭЛЕКТРИЧЕСКИХ МАШИН 1 ВНИМАНИЕ! Прочтите все предупреждения и указания мер безопасности и все инструк - ции. Невыполнение предупреждений и инструкций может привести к поражению электриче - ским током, пожару и (или) серьезным повре...
Страница 7 - техническим регламентам Таможенного союза; СВЕДЕНИЯ О СЕРТИФИКАТЕ СООТВЕТСТВИЯ
7 РУССКИЙ Машины ручные электрические сверлильные аккумуляторные, ТМ «ИНТЕРСКОЛ» соответствуют техническим регламентам Таможенного союза ТР ТС 010/2011 «О безопасности машин и оборудования», ТР ТС 004/2011 «О безопасности низковольтного оборудования», ТР ТС 020/2011 «Электромагнитная совместимость т...
Страница 8 - РУКОВОДСТВО ПО ЭКСПЛУАТАЦИИ; ОБЩИЕ СВЕДЕНИЯ
8 РУССКИЙ РУКОВОДСТВО ПО ЭКСПЛУАТАЦИИ ОБЩИЕ СВЕДЕНИЯ 1 1.1. Машина ручная электрическая сверлильная аккумуляторная (далее по тексту - “машина”) пред - назначена для заворачивания/отворачивания винтов и шурупов, сверления отверстий в различных конструкционных материалах (в том числе: металле, дереве,...
Страница 9 - Основные технические характеристики приведены в таблице No2.; Таблица No2; Машина аккумуляторная
9 РУССКИЙ Символ Обозначение ~ Переменный ток.Вращение с ударомТолько вращение. U Напряжение, В. ТЕХНИЧЕСКИЕ ХАРАКТЕРИСТИКИ 3 3.1.Основные технические характеристики приведены в таблице №2. Таблица №2 Машина аккумуляторная ДАУ-13/18В ДАУ-13/18ВК Напряжение питания, В 18 Частота вращения на холостом ...
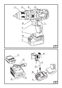
Страница 10 - Устройство зарядное; КОМПЛЕКТНОСТЬ; Модель; УСТРОЙСТВО И ПРИНЦИП РАБОТЫ
10 РУССКИЙ Устройство зарядное (арт. 2401.026 для 574.4.1.70, 573.4.1.70) Напряжение питания, В~ 220-240 Частота тока, Гц 50-60 Напряжение цепи зарядки, В 22 Ток зарядки, А 4 Номинальное время зарядки, мин 60 Масса, кг, не более 0,52 * Назначенный срок службы при профессиональном использовании. ** Н...
Страница 11 - стемой защиты от перегрева.; жать аккумулятор большей емкости.; вание процесса зарядки не наносит вреда аккумулятору.
11 РУССКИЙ муфты. Шпиндель машины снабжен системой автоблокировки вращения, что позволяет откручивать/ закручивать сверлильный патрон при смене оснастки одной рукой. Машина оснащена электронной си - стемой защиты от перегрева. 5.1.2 Порядок зарядки батареи. ВНИМАНИЕ! Зарядное устройство следует подк...
Страница 13 - - избегайте длительной непрерывной работы машины
13 РУССКИЙ 2: Высокая скорость, низкий момент. В случае, если переключатель диапазона скоростей 5 не доходит до конечного положения, необходимо вернуть его обратно, включить и выключить машину кратковременным нажатием выключателя 4, и после полной остановки двигателя произвести снова переключение ск...
Страница 14 - - следите за состоянием рабочего инструмента и нагревом машины; ШУМ И ВИБРАЦИЯ; Для обеспечения качественной и без
14 РУССКИЙ веществ, а также от попадания жидкостей и посторонних твёрдых предметов внутрь машины; - обеспечьте эффективное охлаждение машины и отвод продуктов обработки из зоны об - работки; - следите за состоянием рабочего инструмента и нагревом машины; - при существенном падение производительности...