Страница 4 - ОБЯЗАТЕЛЬНО ПРОЧТИТЕ И СОБЛЮДАЙТЕ; позвоните по номеру телефона, указанному в гарантийном буклете.; ИСПОЛЬЗОВАНИЕ ПО НАЗНАЧЕНИЮ; тем, чтобы вентиляционные отверстия не были закрыты.; МОНТАЖ; УКАЗАНИЯ ПО ТЕХНИКЕ БЕЗОПАСНОСТИ
- 4 - ОБЯЗАТЕЛЬНО ПРОЧТИТЕ И СОБЛЮДАЙТЕ • Загрузите полную версию инструкции по эксплуатации с веб-сайта docs.hotpoint.eu или позвоните по номеру телефона, указанному в гарантийном буклете. • Перед началом использования прибора внимательно изучите данную инструкцию по технике безопасности. Сохраните...
Страница 6 - УТИЛИЗАЦИЯ УПАКОВОЧНОГО МАТЕРИАЛА; УТИЛИЗАЦИЯ БЫТОВЫХ ПРИБОРОВ
- 6 - УТИЛИЗАЦИЯ УПАКОВОЧНОГО МАТЕРИАЛА Упаковочный материал на 100% пригоден для переработки, о чем свидетельствует соответствующий символ ( ). Различные части упаковки должны быть утилизированы в полном соответствии с действующими местными правилами утилизации отходов. УТИЛИЗАЦИЯ БЫТОВЫХ ПРИБОРОВ ...
Страница 7 - Описание изделия
- 7 - Описание изделия Внутренний блок Наружный блок Передняя панель Воздухозаборник Панель индикаторов Панель аварийного управления Отверстие для выхода воздуха Жалюзи с вертикальной регулировкой Жалюзи с горизонтальной регулировкой Воздушный фильтр Пульт дистанционного управления Воздухозаборник С...
Страница 8 - Пользовательский интерфейс
- 8 - Пользовательский интерфейс 5 6 Индикатор температуры (1) Показывает заданную температуру. Показывает "FC" в качестве напоминания о необходимости очистки фильтра. Индикатор рабочего режима (2) Горит непрерывно во время эксплуатации. Мигает во время выполнения оттаивания в наружном блоке...
Страница 9 - Пульт дистанционного управления
- 9 - Пульт дистанционного управления Установка батареек в пульт дистанционного управления 1. Подцепите тонким предметом и мягко отожмите крышку отделения для батареек вниз, а затем сдвиньте в направлении, указанном стрелкой и снимите, как показано на рисунке. 2. Вложите 2 батарейки AAA (1,5 В) в от...
Страница 10 - ЗАЩИТА
- 10 - Пульт дистанционного управления Описание функций кнопок (J1 - 39)1. КНОПКА ON/OFF (ВКЛ/ВЫКЛ) При нажатии этой кнопки прибор включается или выключается. 2. КНОПКА MODE (ПЕРЕКЛЮЧЕНИЯ РЕЖИМОВ) Используется для выбора рабочего режима в заданной последовательности: "Охлаждение", "Осуше...
Страница 11 - Уход
- 11 - Уход Очистка передней панели внутреннего блока 1. Отсоединение от источника питания Перед отсоединением прибора от источника питания выключите его. 2. Снятие передней панели Откройте переднюю панель, как показано стрелками (рис. A). Захватите переднюю панель снизу за прорези, оттяните с силой...
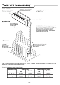
Страница 12 - Указания по монтажу
- 12 - Указания по монтажу Схема монтажа Расстояние от стены должно составлять более 50 мм Внутренний блок Наружный блок Расстояние от потолка должно составлять более 200 мм Расстояние от пола должно составлять более 2500 мм Расстояние от воздухозаборника до стены должно составлять более 250 мм Расс...
Страница 13 - Поиск и устранение неисправностей
- 13 - Поиск и устранение неисправностей Проблемы, возникающие в процессе эксплуатации, часто бывают вызваны незначительными причинами. Поэтому, прежде чем обращаться в сервисную службу, проверьте возможную причину по следующей таблице. Так вы сможете сэкономить время и избежать ненужных расходов. П...
Страница 14 - ПОСЛЕПРОДАЖНОЕ ОБСЛУЖИВАНИЕ
- 14 - ПОСЛЕПРОДАЖНОЕ ОБСЛУЖИВАНИЕ Перед тем как связаться с Центром обслуживания клиентов: 1. Попробуйте решить проблему самостоятельно, руководствуясь указаниями в разделе "Поиск и устранение неисправностей". 2. Выключите и снова включите изделие, чтобы проверить, не исчезнет ли неисправно...