Страница 2 - Общая информация и рекомендации; ВНИМАНИЕ: Доступные детали могут нагреваться при
Общая информация и рекомендации ВНИМАНИЕ: Доступные детали могут нагреваться при использовании с кухонными приборами При определенных обстоятельствах электрические приборы могут быть опасными. А) Если кухонная вытяжка используется одновременно с приборами, работающими на газе или другом топливе, в п...
Страница 5 - Информация
1 2 Общая информация и рекомендации Паспортная табличка H≥650мм Проверьте, соответствуют ли напряжение и частота сети значениям, указанным на паспортной табличке, расположенной на внутренней стороне вытяжки. Рекомендуется, чтобы после установки нижняя часть вытяжки находилась не менее чем на 650 мм ...
Страница 6 - Габаритные размеры кухонной вытяжки
Габаритные размеры кухонной вытяжки 3 285 10 260 277 200 290 560/660 595/695 579/679 600/700/900 После открытия коробки снимите левый и правый элементы упаковки и осмотрите устройство, чтобы убедиться в отсутствии внешних повреждений. Продольные упаковочные планки можно снять, удалив четыре винта, к...
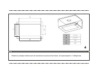
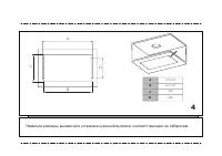
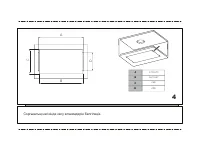
Страница 8 - УСТАНОВКА
5 6 УСТАНОВКА Снимите жироулавливающий фильтр, открутите 4 крепежных винта с панели и снимите ее. Подсоедините вытяжную трубу к переходнику воздуховода и расположите ее на вытяжке, как показано на рисунке.
Страница 10 - Управление; Выключенное состояние; Кнопка подсветки
Управление кнопка регулирования скорости кнопка подсветки При включении вилки в электрическую розетку прибор подает один звуковой сигнал, а индикатор кнопки полностью загорается один раз, после чего отключается. Выключенное состояние : состояние после включения считается выключенным состоянием. Кноп...
Страница 11 - Замена и техническое обслуживание; Замена лампы
Замена и техническое обслуживание Если шнур питания поврежден, он подлежит замене производителем, его сервисным агентом или лицом с аналогичной квалификацией во избежание опасной ситуации. Замена лампы Вытяжка оснащена системой светодиодной подсветки.Светодиодные лампы обеспечивают высокое качество ...
Страница 12 - Угольный фильтр
9 10 11 Угольный фильтр В режиме рециркуляции воздух возвращается назад на кухню через отверстие в вытяжке.Этот метод рекомендуется использовать, если вы редко пользуетесь варочной панелью. При рециркуляции воздуха необходимо использовать угольный фильтр для удаления запахов.Для обеспечения эффектив...
Страница 14 - Поиск и устранение неисправностей; Неисправность
Поиск и устранение неисправностей Неисправность Причина Решение Отсутствуетпитание 1. Вилка шнура питания не вставлена врозетку или вставлена неправильно.2. Розетка не работает.3. К предохранителю не подаетсяэлектропитание или предохранительнеисправен. 1. Подключите вилку питания.2. Включите подачу ...
Страница 15 - Сведения об используемом оборудовании:
Поиск и устранение неисправностей Неисправность Причина Решение Слабое всасывание 1. Слишком сильная или слабая венти-ляция из-за дверей и окон, открытых вовремя пользования вытяжкой.2. Высота установки оборудования несоответствует допустимым значениям.3. Слишком длинный воздуховод или нанем слишком...
Страница 16 - Параметры
Параметры Характеристики Размер: прибор (включая декор, короб), мм Управление Производительность, м 3 /ч Освещение Диаметр воздухоотводной трубы, мм Напряжение, В / Гц Уровень шума Вес нетто Длина сетевого шнура Мощность - HVX-BI662X:600x290x315 HVX-BI772X:700x290x315 HVX-BI972X:900x290x315 - Сенсор...
Страница 17 - Утилизация прибора; приведенных выше рекомендаций и инструкций по установке,
Утилизация прибора Эта маркировка указывает на то, что данный продукт нельзя утилизировать вместе с другими бытовыми отходами на всей территории ЕС. Чтобы предотвратить возможное причинение вреда окружающей среде или здоровью человека в результате неконтролируемой утилизации отходов, следует сдать п...