Страница 2 - Русский; Сервисная; СОДЕРЖАНИЕ; Фирменные; MODEL
Русский (RU) 2 Русский (RU) Сервисная инструкция Перевод оригинального документа на английском языке . СОДЕРЖАНИЕ Стр . 1. Типовое обозначение В данном разделе представлены фирменные таблички , типовые обозначения и коды , которые могут присутствовать в кодовом обозначении насосов различных исполнен...
Страница 4 - IEC; THERMALLY PROTECTED
Русский (RU) 4 1.1.2 Фирменная табличка электродвигателя Фирменная табличка электродвигателя выгравирована на его корпусе . T M 06 09 19 12 14 1 3 4 5 6 7 2 MSE3NE PROD.NO. 96511018MODEL B P1 0436 P1: 1.02 kW U: 1 x 200-240 V - 50/60 Hz I: 5.2 AP2: 0.70 kW IEC/EN 60034 Cl.1 P2: 0.5 HPSF 1.85 SF AMP ...
Страница 5 - Типовые; SQE
Ру сский (RU) 5 1.2 Типовые обозначения 1.2.1 Типовые обозначение насоса Типовое обозначение насоса , Южноамериканский регион , Азиатско - Тихоокеанский регион , Япония , Австралия Типовое обозначение насоса , Североамериканский регион 1.2.2 Типовой код двигателя Пример SQE 2 - 35 N Типовой ряд : SQ...
Страница 6 - Unisilkon
Русский (RU) 6 2. Моменты затяжки и смазочные материалы Консистентная смазка типа Unisilkon, L 641, 5 г , номер детали 96037562. * Электродвигатели , выпущенные после 6 недели 2006 года , обслуживанию не подлежат . Возможна только разборка для анализа неисправности . Поз . Наименование Номер Момент ...
Страница 8 - Общие; SML 2
Русский (RU) 8 4. Разборка и сборка 4.1 Общие сведения Если насос демонтирован из - за снижения производительности необходимо отремонтировать насос и проверить погружной электродвигатель . Позиции деталей ( указанные цифрами ) относятся к чертежам насоса с перечнями деталей ; позиции инструментов ( ...
Страница 9 - torx
Ру сский (RU) 9 4.2 Разборка и сборка насоса и двигателя 4.2.1 Разборка 1. Ослабить винт (18b), снять его вместе с манжетой кабеля (18). 2. Если двигатель исправен , снимать кабель не требуется . Если двигатель неисправен , снять винты (250), снять с двигателя крышку с кабелем и разъемом . 3. Зафикс...
Страница 11 - Заливка; Сборка
Ру сский (RU) 11 4.4.2 Сборка двигателей модели A 1. Установить в двигатель упорный подшипник (203) так , чтобы поверхность скольжения была сверху . 2. Поворачивать упорный подшипник пока три зубца не войдут в пазы в нижней части двигателя . 3. Установить стопорное кольцо (202 а ) на вал с ротором т...
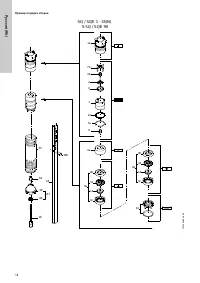
Страница 12 - См
Русский (RU) 12 5. Порядок сборки 1. Определить тип насоса и количество ступеней . Найдите требуемый насос в соответствующем разделе таблицы ступеней . 2. Найдите компоненты комплектов камер на рисунке . T M 01 30 68 04 02 2 3 4 5 6 7 8 9 10 1 1 765432 2 3 4 5 6 7 8 9 1 320 270 230 180 140 90 5 SQ /...
Страница 15 - Чертежи
Ру сский (RU) 15 Чертежи двигателя TM 01 20 16 14 00 - TM0 3 8 2 1 2 0 8 0 7 Модель В , выпущенная до 6 недели 2006 года Модель В , выпущенная после 5 недели 2006 года 202 b 222 a 220 250
Страница 18 - Условия
Русский (RU) 18 7. Утилизация отходов Основным критерием предельного состояния является : 1. отказ одной или нескольких составных частей , ремонт или замена которых не предусмотрены ; 2. увеличение затрат на ремонт и техническое обслуживание , приводящее к экономической нецелесообразности эксплуатац...