Страница 3 - СОДЕРЖАНИЕ
GENERATORS MANUAL CONTENTS СОДЕРЖАНИЕ 1. МЕРЫ ПРЕДОСТОРОЖННОСТИ ................................................................................................................................ 4 2. ОПИСАНИЕ ................................................................................................
Страница 4 - ПРАВИЛА ТЕХНИКИ БЕЗОПАСНОСТИ
SAFETY PRECAUTION GENERATORS MANUAL 1. ПРАВИЛА ТЕХНИКИ БЕЗОПАСНОСТИ Перед использование LPG/PROPANE оборудования, соблюдайте элементарные меры предосторожности, всегда должны соблюдать правила перечисленные в данном руководстве, для избежания получения серьезных травм или повреждения оборудования. П...
Страница 10 - ТЕХНИЧЕСКИЕ ХАРАКТЕРИСТИКИ
SPECIFICATIONS GENERATORS MANUAL 2. ТЕХНИЧЕСКИЕ ХАРАКТЕРИСТИКИ GE-2000, GE-3000 GE-5000, GE-6000, GE-6000T, GE- 7000, GE-7000T 9 ВХОД FRAME CONTROL PANEL RECOIL STARTER OIL GAUGE (OIL FILLER) РАМА ВХОД РУЧКА AIR CLEANER КОНТРЛ. ПАНЕЛЬ РУЧНОЙ СТАРТЕР МАСЛЯНОЙ ЩУП КОЛЕСО
Страница 11 - SPECIFICATIONS
SPECIFICATIONS GENERATORS MANUAL 3. SPECIFICATIONS МОДЕЛЬ ГЕНЕРАТОРА GE-2000 GE-3000 Модель двигателя GGN3GN GG3GN Тип двигателя OHV,25°наклон, одноцилиндровый, воздушное охлаждение, 4х-тактный Диметр цилиндра*ход(мм) 68 x 54 68 x 54 68 x 54 Объем(см3) 212 212 212 Тип зажигания T.C.I. Степень сжатия...
Страница 15 - Стандартные условия эксплуатации:
SPECIFICATIONS GENERATORS MANUAL Модель генератора GE-7000T Модель двигателя GG6GN Тип двигателя OHV,25°наклон, одноцилиндровый, воздушное охлаждение, 4х-тактный Диметр цилиндра*ход (мм) 92x66 Объем (см3) 420 Тип зажигания T.C.I Степень сжатия 9.0:1 Топливо СУГ/Пропан Запуск Электрический СУГ/пропан...
Страница 16 - ПРЕД-ПУСКОВЫЕ ПРОВЕРКИ; ПРОВЕРИТЬ УРОВЕНЬ МАСЛА
PRE-OPERATION CHECKS GENERATORS MANUAL 4. ПРЕД-ПУСКОВЫЕ ПРОВЕРКИ 4.1 ПРОВЕРИТЬ УРОВЕНЬ МАСЛА ПРИМЕЧАНИЕ: оборудование поставляется без масла в картере. Заполните картер перед первым запуском для предотвращения повреждения двигателя. Перед проверкой или замены масла убедитесь, что генератор стоит на ...
Страница 17 - ПОДКЛЮЧЕНИЕ ПРОПАНОВОГО БАЛЛОНА
PRE-OPERATION CHECKS GENERATORS MANUAL 4.2 ПОДКЛЮЧЕНИЕ ПРОПАНОВОГО БАЛЛОНА ПРЕДУПРЕЖДЕНИЕ: Сера, вода, пыль и тд вредны для двигателя. Если источник подачи газа содержит эти вещества, то оператор должен обеспечивать фильтр для удаления их, чтобы обеспечить подачу чистого газа. В противном случае сро...
Страница 18 - ПРОВЕРКА СОСТАВНЫХ ЧАСТЕЙ/ГЕНЕРАТОРНОГО ОКРУЖЕНИЯ
PRE-OPERATION CHECKS GENERATORS MANUAL КАК ПОДКЛЮЧИТЬ ИСТОЧНИК ПОДАЧИ ГАЗА (1): -Источник подачи газа держите закрытым. -Убедитесь что двигатель выключен . -Подключите гибкий шланг к впуску газа резьбовым соединением и закрутите против часовой стрелки. -Подсоедините к баллону. Используйте гаечный кл...
Страница 19 - УСТАНОВКА БАТАРЕИ; НЕТ; ДА
PRE-OPERATION CHECKS GENERATORS MANUAL WARNING WARNING WARNING WARNING 4.4 УСТАНОВКА БАТАРЕИ WARNING Рекомендуемая батарея: емкость батареи 12V-24AH или выше. Переключите положение стартера в положение "STOP" при монтаже или демонтаже батареи. При установке батареи подключите положительный (...
Страница 20 - ЗАЗМЕЛЕНИЕ ГЕНЕРАТОРА
PRE-OPERATION CHECKS GENERATORS MANUAL 4.5 ЗАЗМЕЛЕНИЕ ГЕНЕРАТОРА Для заземления генератора, подсоедините заземляющий наконечник генератора к заземляющему шипу, вбитый в землю или к проводнику, который был уже заземлен. Если такой заземляющий проводник или электрод заземления отсутствует, то подключи...
Страница 21 - РАБОЧИЕ ПРОЦЕДУРЫ; ЗАПУСК ДВИГАТЕЛЯ
OPERATING PROCEDURES GENERATORS MANUAL 5. РАБОЧИЕ ПРОЦЕДУРЫ 5.1 ЗАПУСК ДВИГАТЕЛЯ ВНИМАНИЕ: Проверяйте уровень масла перед каждым запуском как написано в пункте 4.1. 1- Откройте подачу газа повернув против часовой стрелки вентиль на баллоне 2-При наличии нажмите кнопку сброса на регуляторе. 3- Нажмит...
Страница 23 - ИСПОЛЬЗОВАНИЕ ЭЛЕКТРОЭНЕРГИИ
OPERATING PROCEDURES GENERATORS MANUAL 5.2 ИСПОЛЬЗОВАНИЕ ЭЛЕКТРОЭНЕРГИИ ВНИМАНИЕ : Убедитесь что прибор выключен, перед подключением к генератору. Не перемещайте генератор во время работы. Обязательно заземлите генератор, если подключенный прибор заземлен. Отсутствие заземления может привести к пора...
Страница 25 - ОСТАНОВКА ГЕНЕРАТОРА; ДАТЧИК МАСЛА
OPERATING PROCEDURES GENERATORS MANUAL OIL SENSOR 5.3 ОСТАНОВКА ГЕНЕРАТОРА 1-Выключить подключенное оборудование и отсоединить кабель питания от розетки генератора. 2- Переключить автоматический выключатель в положение «OFF». 3- Оставьте генератор примерно на три минуты на холостом ходу чтобы дать е...
Страница 26 - ИНФОРМАЦИЯ ВАТТНОСТИ
WATTAGE INFORMATION GENERATORS MANUAL 6. ИНФОРМАЦИЯ ВАТТНОСТИ Некоторое оборудование нуждается в пусковых токах при запуске. Это значит, что количество электрической мощности, необходимой для запуска прибора может превышать количество, необходимое для его работы. Электротехника и инструменты, как пр...
Страница 27 - ТЕХНИЧЕСКОЕ ОБСЛУЖИВАНИЕ
MAINTENANCE GENERATORS MANUAL 7. ТЕХНИЧЕСКОЕ ОБСЛУЖИВАНИЕ Техническое обслуживание, ремонт и замена системы контроля за выбросами и компонентов должна производиться квалифицированным и уполномоченным специалистом. КАЖДОДНЕВНАЯ ПРОВЕРКА -Проверьте на лишнюю вибрацию и шум. -Проверьте уровень масла. -...
Страница 29 - ЗАМЕНА МОТОРНОГО ДЕЙСТВИЯ
MAINTENANCE GENERATORS MANUAL 7.1 ЗАМЕНА МОТОРНОГО ДЕЙСТВИЯ Заменяйте масло каждые 100 часов (Для нового двигателя через 20 часов). 1- Слейте масло, удалив сливную пробку и крышку заливной горловины масла, пока двигатель теплый. 2- Установите на место пробку сливного отверстия и заполните двигатель ...
Страница 30 - ОЧИСТКА И РУГУЛИРОВКА СВЕЧИ ЗАЖИГАНИЯ; ПРОВЕРКА УГЛЕРОДНОЙ ЩЕТКИ
MAINTENANCE Отрегулируйте зазор до 0.7-0.8 мм GENERATORS MANUAL 7.3 ОЧИСТКА И РУГУЛИРОВКА СВЕЧИ ЗАЖИГАНИЯ Если вилка загрязнена углеродом, то снимите его и очистите пылесосом или проволочной щеткой. Проверьте зазор между электродами. Отрегулируйте зазор до 0.7-0.8 мм CAUTION: be sure to tighten the ...
Страница 31 - ХРАНЕНИЕ И ТРАНСПОРТИРОВКА
MAINTENANCE GENERATORS MANUAL 8. ХРАНЕНИЕ И ТРАНСПОРТИРОВКА Следующие процедуры должны быть выполнены при хранении генератора от 6 месяцев и более: -Отсоедините пропановый баллон. -Дайте двигателю остыть. Снимите свечу зажигания и накапайте 10 капель высококачественного моторного масла в цилиндр. -О...
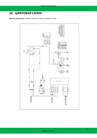
Страница 32 - ПОИСК И ИСПРАВЛЕНИЕ НЕИСПРАВНОСТЕЙ
WIRING DIAGRAM GENERATORS MANUAL 9. ПОИСК И ИСПРАВЛЕНИЕ НЕИСПРАВНОСТЕЙ Если генератор не запускается после нескольких попыток или нет напряжения в розетке, то проверьте все по следующей таблице. Если после этого неполадки не исправлены, то обратитесь к ближайшему дилеру для получения информации или ...
Страница 35 - ПАДЕНИЕ НАПРЯЖЕНИЕ ЧЕРЕЗ УДЛИНИТЕЛЬ
GENERATORS MANUAL 33 11. ПАДЕНИЕ НАПРЯЖЕНИЕ ЧЕРЕЗ УДЛИНИТЕЛЬ Если используется длинный удлинитель для подключения приборов к генератору, то может происходить потеря энергии происходят в удлинителе, который уменьшает эффективное напряжение, допустимое для прибора или инструмента. В приведенной таблиц...