Страница 2 - СОДЕРЖАНИЕ; Размеры и установка декоративного фасада 24
2 Прочитайте данное руководство по эксплуатации Уважаемые покупатели! Пожалуйста, внимательно прочитайте данное руководство перед использованием посудо-моечной машины: оно поможет Вам пра-вильно использовать и обслуживать посудо-моечную машину. Сохраните руководство для дальнейшего ис-пользовани...
Страница 4 - Утилизация; Запрещается утилизировать прибор с обычными бытовыми отходами.
4 При установке прибора не сгибайте и не прижимайте электрический провод. Не вмешивайтесь в систему управления. Прибор должен подключаться к водопроводной сети при помощи нового комплекта шлангов. Не используйте старый шланг для подключения прибора. Максимальное вместимость посудомоечной маш...
Страница 5 - КРАТКОЕ РУКОВОДСТВО; Механический индикатор С.
5 2. КРАТКОЕ РУКОВОДСТВО Описание правил эксплуатации посудомоечной машины представлено в настоящем документе да- лее. Включите прибор Откройте дверцу и нажмите кнопку «Вкл./Выкл.» Добавьте моющее средство Отсек А: При каждом цикле мойки Отсек В: Только для программ с предварительным мытьем (следуйт...
Страница 7 - ЭКСПЛУАТАЦИЯ ПРИБОРА; Панель управления
7 3. ЭКСПЛУАТАЦИЯ ПРИБОРА ВАЖНО! Для обеспечения наиболее эффективной работы прибора, перед первым использованием машины прочтите настоящую инструкцию по эксплуата-ции. Панель управления 1. Кнопка «Вкл./Выкл.»: включение и вы- ключение прибора. 2. Кнопка «Программа»: выбор программы. 3. Индикаторы п...
Страница 8 - ПЕРЕД ПЕРВЫМ ИСПОЛЬЗОВАНИЕМ; А. Устройство для смягчения воды
8 4. ПЕРЕД ПЕРВЫМ ИСПОЛЬЗОВАНИЕМ Перед первым использованием посудомоечной машины: А. Настройте устройство смягчения воды. Б. Добавьте в контейнер для соли 1,5 кг соли для посудомоечных машин, после чего полностью за- полните контейнер водой. В. Залейте в соответствующий контейнер ополаскиватель. Г....
Страница 9 - Б. Загрузка соли в устройство для смягчения воды; После заполнения контейнера плотно закройте крышку.
9 УСТРОЙСТВО ДЛЯ СМЯГЧЕНИЯ ВОДЫ Жесткость воды зависит от региона. Если в посудомоечной машине используется жесткая вода, то на посуде и столовых приборах будут оставаться разводы. Прибор оснащен специальным контейнером для соли, смягчающей воду. Эта соль удаляет из воды известь и минералы. Б. Загру...
Страница 10 - Аккуратно налейте ополаскиватель в контейнер. Не перелейте!
10 В. Добавление ополаскивателя Контейнер для ополаскивателя Средство для полоскания используется на последней стадии для предотвращения образова-ния следов капель на посуде. Также оно улучшает процесс сушки, позволяя воде «соскальзы-вать» с посуды. В данной посудомоечной машине используются жидкие ...
Страница 11 - традиционные щелочные средства с едкими компонентами
11 ПРИМЕЧАНИЕ: Аккуратно удалите при помощи впитывающей ткани пролитый ополаскива- тель, чтобы предотвратить образование излишней пены при следующем цикле мытья. Не за- будьте закрутить крышку контейнера, прежде чем закрывать дверцу прибора. Регулировка диспенсера ополаскивателя На регулятор нанесен...
Страница 12 - Если крышка закрыта: нажмите на защелку, и крышка откроется сама.
12 Таблетки различных марок растворяются с разной скоростью. По этой причине за время «коротких» программ мытья некоторые таблетированные моющие средства не успевают раствориться и развить свою полную мощность. Поэтому при использовании моющего средства в таблетках рекомендуется выбирать «длинные» п...
Страница 13 - Добавление моющего средства; Моющее средство для основной мойки.
13 Добавление моющего средства Добавьте в контейнер моющее средство. Отметки показывают уро-вень залитого вещества (см. рисунок справа): (А) Моющее средство для основной мойки. (В) Моющее средство для предварительной мойки. Пожалуйста, соблюдайте рекомендации производителя по дози-ровке и хранению м...
Страница 14 - ПОДГОТОВКА И ЗАГРУЗКА ПОСУДЫ; Рекомендации; Столовые приборы с деревянными; Предназначены с ограничениями:; Не вкладывайте друг в друга посуду и столовые приборы
14 5. ПОДГОТОВКА И ЗАГРУЗКА ПОСУДЫ Рекомендации Рекомендуется купить посуду, предназначенную для мытья в посудомоечной машине. Используйте мягкое моющее средство, не наносящее вред посуде. При необходимости, дополни-тельную информацию Вы можете получить у производителя моющего средства. Для не...
Страница 16 - Острые предметы располагайте только острым концом вниз!
16 Д. Полочка для столовых приборов Столовые приборы следует размещать в специальной корзине для сто-ловых приборов, при этом ручки приборов должны быть направлены вниз. Если полочка оснащена боковыми отделениями, то ложки необ-ходимо загружать отдельно в соответствующих ячейках. Длинные сто-ловые п...
Страница 17 - ЗАПУСК ПРОГРАММЫ МЫТЬЯ
17 6. ЗАПУСК ПРОГРАММЫ МЫТЬЯ Таблица программ ПРИМЕЧАНИЕ: Знак означает, что необходимо заполнить контейнер для ополаскивателя. Программа Информация о программе Описание цикла мытья Моющее средство предв./ос н.мытье Дли- тель- ность (мин.) Рас- ход энер- гии (кВтч ) Расход воды (л) Опо- ласки- ват...
Страница 18 - ПРИМЕЧАНИЕ; Включение посудомоечной машины
18 Сушка Быстрая Сокращенное мытье и быстрая сушка для слегка загряз- ненной посуды. Мытье (45°С) Ополаскива-ние (50°C) Ополаскива-ние (55°C) 25г 30 0,75 11 Замачивание Сокращенное мытье слегка за-грязненной по-суды. Без сушки Предваритель-ное мытье 15 0,02 4 ПРИМЕЧАНИЕ * EN 50242: Указанные значе...
Страница 20 - Не используйте машину без фильтров!
20 7. УХОД И ЧИСТКА Система фильтров Система фильтров предотвращает попадание остатков пищи и других предметов в насос машины. Остатки пищи могут засорить фильтр; в таком случае фильтр необходимо прочистить. Система фильтров состоит из фильтра грубой очистки, основ-ного фильтра и фильтра тонкой очис...
Страница 21 - Выполнение данной процедуры в порядке «Шаг 1 – Шаг 2» позволяет; Раз в неделю рекомендуется чистить систему фильтров полностью.; Отключите машину от электричества.
21 ПРИМЕЧАНИЕ! Выполнение данной процедуры в порядке «Шаг 1 – Шаг 2» позволяет снять систему фильтров. Выполнение процедуры в обратном порядке позволяет установить си-стему фильтров на место. Примечания: - после каждого цикла мытья проверяйте наличие мусора в фильтрах, чтобы избежать засорения. - от...
Страница 23 - ИНСТРУКЦИИ ПО УСТАНОВКЕ; Подготовка к установке
23 8. ИНСТРУКЦИИ ПО УСТАНОВКЕ Внимание! Подключение машины к водопроводу и электросети должно выполняться только квалифицирован-ными специалистами! ВНИМАНИЕ! Во избежание поражения электрическим током отключите машину от электросети пе-ред установкой. Невыполнение этого требования может привести к г...
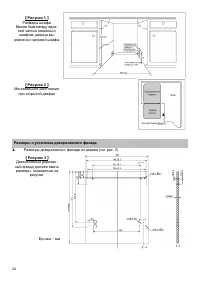
Страница 24 - Размеры и установка декоративного фасада
24 [ Рисунок 1 ] Размеры шкафа Менее 5мм между верх- ней частью машины и шкафом; дверца вы- ровнена с кромкой шкафа [ Рисунок 2 ] Минимальное расстояние при открытой дверце Размеры и установка декоративного фасада 1. Размеры декоративного фасада из дерева (см. рис. 3) [ Рисунок 3 ] Декоративный дере...
Страница 25 - Регулировка пружины дверцы
25 2. Установите ручку на декоративный деревянный фасад и закрепите крепежные элементы на внешней части дверцы машины (рисунок 4а). После этого выровняйте и закрепите фасад с помощью шурупов и болтов (рисунок 4б). [ Рисунок 4а] Установка декоративного фасада. [ Рисунок 4б] Установка декоративного де...
Страница 26 - Регулировка натяжения; Подключение сливного шланга; плект поставки. Крепление скоб показано на схемах встраивания.
26 [ Рисунок 5] Регулировка натяжения пружины дверцы. Подключение сливного шланга Вставьте сливной шланг в дренажную трубу диаметром 40мм или опустите сливной шланг в раковину, избегая загибов и пережатия шланга. Высота установки шланга не должна превышать 1000мм. ЗАФИКСИРУЙТЕ СЛИВНОЙ ШЛАНГ ОДНИМ ИЗ...
Страница 28 - высота; Подключение к электросети; Для личной безопасности:; Требования к электросети
28 [ Рисунок 8 ] Регулировка ножек. ПРИМЕЧАНИЕ: Максимальная высота регулировки – 50мм. Подключение к электросети ВНИМАНИЕ! Для личной безопасности: не используйте удлинители и тройники. ни при каких обстоятельствах не удаляйте провод заземления из кабеля питания. Требования к электросети Пожалу...
Страница 29 - Перед запуском машины полностью откройте кран подачи воды.; Удлинение сливного шланга
29 Подключение к водопроводной сети Подключение безопасного заливного шланга Подключение прибора к водопроводной сети необходимо осуществлять с ис-пользованием новых шлангов. Не используйте повторно старые шланги! Давление воды в водопроводе должно составлять от 0,04 до 1,0 Мпа. Если давление ниже м...
Страница 30 - Начало работы посудомоечной машины
30 Слив через сифон Расстояние между сливным отверстием и дном прибора не должно превышать 1000мм. Конец слив-ного шланга должен быть надежно закреплен. Начало работы посудомоечной машины Перед первым запуском посудомоечной машины проверьте: 1. Машина выровнена и закреплена. 2. Кран подачи воды откр...
Страница 31 - УСТРАНЕНИЕ НЕПОЛАДОК; Неполадка
31 9. УСТРАНЕНИЕ НЕПОЛАДОК Прежде чем обращаться в сервисную службу, ознакомьтесь с представленной далее таблицей. Неполадка Возможные причины Решение Машина не запускается Сгорел предохра-нитель или срабо-тал размыкатель цепи (пробки) Заменить предохранитель или включить пробки. Убрать все остальны...
Страница 35 - ЗАГРУЗКА ПОСУДЫ В СООТВЕТСТВИИ С ДИРЕКТИВОЙ EN50242; Полочка для столовых приборов; Дозировка ополаскивателя: 6
35 11. ЗАГРУЗКА ПОСУДЫ В СООТВЕТСТВИИ С ДИРЕКТИВОЙ EN50242 1 . Верхний короб 3. Полочка для столовых приборов 2. Нижний короб Информация для сравнительного теста в соответствии со стан-дартом EN 50242: Загрузка: 14 комплектов посуды Положение верхнего короба: нижнее Программа: ECO Дозировка ополаски...
Страница 37 - Спецификация
37 Спецификация Спецификация посудомоечной машины в соответствии с Директивой ЕС 1059/2010: Производитель GRAUDE Название модели VG 60.1 Вместимость (комплектов посуды) 14 Класс энергоэффективности (1) A++ Годовое потребление энергии (2) 266 кВт Потребление энергии для стандартного цикла мы-тья 0,93...