Страница 2 - Содержание
2 Содержание Важные инструкции по технике безопасности .......................................................................................... 3 Спецификация ..............................................................................................................................................
Страница 3 - Важные инструкции по технике безопасности; Запрещается использовать прибор, если рабочая камера пустая.
3 Важные инструкции по технике безопасности Во время использования прибора необходимо соблюдать основные меры предосторожности, а также следовать следующим указаниям: предупреждение: во избежание получения ожогов и травм, поражения электрическим током, возникновения пожара или избыточного воздействи...
Страница 4 - Следите, чтобы дети не играли с прибором!
4 Важные инструкции по технике безопасности 18) Данный прибор не предназначен для эксплуатации людьми (в том числе детьми) с ограниченными физическими, сенсорными или умственными способностями, а также людьми с недостаточными опытом и знаниями, тем не менее, они могут пользоваться п рибором, но толь...
Страница 5 - Спецификация; Потребляемая мощность:; Прежде чем обратиться в сервисный центр; Установите время таймера.; Создание радиошумов; Очистите поверхности дверцы и уплотнителя дверцы прибора.
5 Спецификация Потребляемая мощность: 230В~50 Гц, 1080 Вт Мощность (на выходе): 700 Вт Нагревательный элемент (гриль): 800 Вт Рабочая частота: 2,450 МГц Внешние размеры: 595мм(W) X 313 мм(D) X 390мм(H) Размеры рабочей камеры: 315мм(W) X 211мм(D) X296мм(H) Объем прибора: 20 литров Масса без упаковки:...
Страница 6 - Монтаж
6 Монтаж 1. Удалите все упаковочные материалы с внутренней стороны дверцы. 2. Осмотрите прибор на наличие внешних повреждений, таких как: - Смещение дверцы - Повреждение дверцы - Вмятины или отверстия на стекле дверцы или экрана - Вмятины внутри рабочей камеры - При обнаружении какого-либо поврежден...
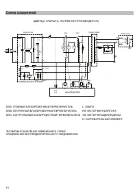
Страница 7 - Указания по технике безопасности при эксплуатации
7 Указания по технике безопасности при эксплуатации Ниже приведены правила и меры предосторожности для обеспечения наилучшей производительности прибора: 1. Во время работы стеклянный поддон, ролики, соединительная муфта и направляющий ролик должны находиться на своем месте внутри рабочей камеры. 2. ...
Страница 9 - Панель управления
9 Панель управления (1) ДИСПЛЕЙ (2) МИКРОВОЛНОВАЯ ПРОГРАММА/ РАЗМОРАЖИВАНИЕ (3) ГРИЛЬ/КОМБИНИРОВАННАЯ ПРОГРАММА (4) ВРЕМЯ+ (5) ВРЕМЯ- (6) ЧАСЫ/ТАЙМЕР (7) СТАРТ/ОТМЕНА
Страница 10 - Описание режимов программ
10 Описание режимов программ Следующие программы приготовления: микроволновая, гриль, комбинированная имеют несколько режимов работы. Микроволновая программа имеет 5 режимов (приготовление осуществляется повторяющимися циклами по 22 секунды, т. е. если задать 110 секунд, то прибор выполнит 5 циклов)...
Страница 11 - Инструкция по эксплуатации; ПРИГОТОВЛЕНИЕ С ПРИМЕНЕНИЕМ МИКРОВОЛН
11 Инструкция по эксплуатации 1. БЫСТРОЕ ПРИГОТОВЛЕНИЕ Нажмите на кнопку «СТАРТ/ОТМЕНА», прибор запустит микроволновый режим P100 и будет работать 1 минуту. После завершения приготовления прибор подаст пятикратный звуковой сигнал. 2. ПРИГОТОВЛЕНИЕ С ПРИМЕНЕНИЕМ МИКРОВОЛН (A) Быстрый способ: (Наприме...
Страница 12 - Нажмите кнопку «Часы/Таймер» еще раз, настройка часов завершена.; Примечание; ПАУЗА И ОТМЕНА
12 Инструкция по эксплуатации 5. ЗАЩИТА ОТ ДЕТЕЙ Чтобы активировать устройство защиты от детей, удерживайте кнопки « ВРЕМЯ+» и «ВРЕМЯ-» нажатыми в течение 2 секунд, когда прибор находится в режиме ожидания. Для того чтобы разблокировать прибор, удерживайте кнопки «ВРЕМЯ+» и «ВРЕМЯ-» нажатыми в течен...
Страница 13 - Уход за микроволновой печью
13 Уход за микроволновой печью 1. Перед началом очистки отключите прибор и вытащите вилку из розетки. 2. Следите за чистотой рабочей камеры. При попадании брызг на стенки рабочей камеры их следует протереть влажной тряпкой. Не рекомендуется использовать агрессивные или абразивные чистящие средства. ...
Страница 15 - КОМПЛЕКТУЮЩИЕ
15 Инструкция по монтажу КОМПЛЕКТУЮЩИЕ 1 винт 2 х 22 2 ШТ . 2 колпачок 1 ШТ . 3 винт 1x35 1 ШТ . НИША ДЛЯ ВСТРАИВАНИЯ МИКРОВОЛНОВОЙ ПЕЧИ Требования для встраивания в нишу ( рис . выше ): 1. Ширина составляет 565 мм . Это минимальное расстояние между левой и правой панелями . Отклоне Монтаж в верхний...
Страница 16 - Порядок установки рамки
16 Порядок установки рамки 1. Вставьте микроволновую печь в нишу, держите прибор в горизонтальном положении, следите, чтобы расстояние до двух краев с обеих сторон было одинаковым. Вставьте винты (компл. 1) на верхнем ребре прибора и закрутите их в нишу. 2 . Откройте дверцу, вставьте винт (компл. 3)...