Страница 4 - ОБЩИЕ УКАЗАНИЯ; Наша бытовая техника постоянно совершенствуется, улучшаются ее
2 ПВГ 2231.00.0.000 РЭ 1 ОБЩИЕ УКАЗАНИЯ Наша бытовая техника постоянно совершенствуется, улучшаются ее характеристики, обновляется дизайн, поэтому рисунки и обозначения в руководстве могут несколько отличаться от Вашей модели. Настоящее руководство по эксплуатации распространяется на панели варочные...
Страница 5 - ТРЕБОВАНИЯ БЕЗОПАСНОСТИ
3 ПВГ 2231.00.0.000 РЭ 2 ТРЕБОВАНИЯ БЕЗОПАСНОСТИ ВНИМАНИЕ! ЛИЦА, ПОЛЬЗУЮЩИЕСЯ ПАНЕЛЯМИ ВАРОЧНЫМИ, ОБЯЗАНЫ ЗНАТЬ ПРАВИЛА ПОЛЬЗОВАНИЯ ГАЗОМ В БЫТУ И ВНИМАТЕЛЬНО ИЗУЧИТЬ ДАННОЕ РУКОВОДСТВО. ВНИМАНИЕ! ПЕРЕД ПЕРВЫМ ВКЛЮЧЕНИЕМ ВЫДЕРЖАТЬ ПРИБОР В ПОМЕЩЕНИИ, ГДЕ ОН БУДЕТ УСТАНОВЛЕН, НЕ МЕНЕЕ ЧЕТЫРЕХ ЧАСОВ. ...
Страница 7 - ТЕХНИЧЕСКИЕ ХАРАКТЕРИСТИКИ; Модель; Наличие дополнительных элементов комфорности:
5 ПВГ 2231.00.0.000 РЭ 3 ТЕХНИЧЕСКИЕ ХАРАКТЕРИСТИКИ Модель ПВГ 2231 ПВГ 2231-01, -03 ПВГ 2231-08 ПВГ 2231-05, -06 ПВГ 2231-07 Класс прибора 3 Категория прибора II 2Н+ЗВ/Р Диапазон номинальных напряжений, В 220-230 Номинальная частота, Гц 50 Класс защиты от поражения электрическим током I Вид климати...
Страница 9 - КОМПЛЕКТНОСТЬ; * Только для панели варочной, изготовленной под природный газ.; УСТРОЙСТВО И ПОРЯДОК РАБОТЫ
ПВГ 2231.00.0.000 РЭ 7 4 КОМПЛЕКТНОСТЬ * Только для панели варочной, изготовленной под природный газ. ** Для модификаций с одинарной решеткой. Модель ПВГ 2231,-01,-03,-05,-06,-07,-08 Панель варочная, шт. 1 Комплект горелок панели варочной (смеситель и шляпка), шт. 4 Сменные сопла, шт.* 4 Решетка, шт...
Страница 10 - УПРАВЛЕНИЕ ПАНЕЛЬЮ ВАРОЧНОЙ
ПВГ 2231.00.0.000 РЭ 8 5.2 УПРАВЛЕНИЕ ПАНЕЛЬЮ ВАРОЧНОЙ Возле каждой ручки нанесены символы, обозначающие соответствие горелки и управляющего крана, а также: « » или « » – кран закрыт « » – электророзжиг и максимальное пламя « » – малое пламя Чтобы зажечь горелку, необходимо нажать на соответствующую...
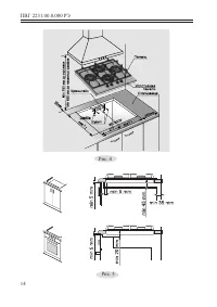
Страница 15 - УСТАНОВКА
6 УСТАНОВКА При установке необходимо учесть наличие и размеры подводящих газовых и электрических коммуникаций. Порядок монтажа: 1. Точно разметить на столешнице контур проема под панель варочную в соответствии с рис. 4. Стена за панелью варочной должна быть облицована термостойким материалом (наприм...
Страница 17 - ПОДКЛЮЧЕНИЕ
ПВГ 2231.00.0.000 РЭ 15 7 ПОДКЛЮЧЕНИЕ Панель варочная должна быть подключена только квалифицированным персоналом организаций, имеющих право на установку, подключение и обслуживание газовых приборов. При подключении панели варочной должен быть заполнен талон установки. Самовольно и неправильно подклю...
Страница 19 - РЕКОМЕНДАЦИИ РЕМОНТНЫМ СЛУЖБАМ; Регулировка для различных давлений газа
17 ПВГ 2231.00.0.000 РЭ 7.1 РЕКОМЕНДАЦИИ РЕМОНТНЫМ СЛУЖБАМ Регулировка для различных давлений газа Если произведена регулировка на использование газа другого давления, мастер обязан сделать отметку в талоне установки гарантийной карты. Мастер обязан проверить герметичость прибора в соответствии с те...
Страница 20 - хлоросодержащие средства и другие агрессивные компоненты; ПРАКТИЧЕСКИЕ СОВЕТЫ
18 ПВГ 2231.00.0.000 РЭ 9 ОБСЛУЖИВАНИЕ ПАНЕЛИ ВАРОЧНОЙ 9.1 УХОД ЗА ПАНЕЛЬЮ ВАРОЧНОЙ Содержите панель варочную в чистоте. ВНИМАНИЕ! ПЕРЕД ТЕМ КАК МЫТЬ, ОБЯЗАТЕЛЬНО ОТКЛЮЧИТЕ ПАНЕЛЬ ВАРОЧНУЮ ОТ ЭЛЕКТРОСЕТИ! Панель варочную следует мыть кухонной губкой, теплой водой с моющим средством для посуды и прот...
Страница 22 - 2 ТРАНСПОРТИРОВАНИЕ И ХРАНЕНИЕ; требованиям манипуляционных знаков.; 1 ТЕХНИЧЕСКОЕ ОБСЛУЖИВАНИЕ ПАНЕЛИ ВАРОЧНОЙ; варочной или необходимости ее замены.
20 ПВГ 2231.00.0.000 РЭ 12 ТРАНСПОРТИРОВАНИЕ И ХРАНЕНИЕ Перевозить панели необходимо в заводской упаковке согласно указанным на них требованиям манипуляционных знаков. Транспорт и хранилища должны обеспечивать защиту панелей варочных от атмосферных осадков и механических повреждений. Панели варочные...
Страница 23 - 4 ГАРАНТИИ ИЗГОТОВИТЕЛЯ; ВНИМАНИЕ; СП ОАО «Брестгазоаппарат»; - адрес электронной почты
21 ПВГ 2231.00.0.000 РЭ 14 ГАРАНТИИ ИЗГОТОВИТЕЛЯ Данные гарантийные обязательства не ограничивают определенные законом права потребителей. Гарантийная карта является неотъемлемой частью (см. приложение) руководства по эксплуатации. Месяц и год изготовления и адрес изготовителя прибора указаны в гара...