Страница 3 - СОДЕРЖАНИЕ
1 Руководство по эксплуатации, техническому обслуживанию и установке ДА602.00.0.000 РЭ СОДЕРЖАНИЕ Модели и модификации духовок на обложке 1 Общие указания 2 2 Требования безопасности 3 3 Технические характеристики 5 4 Комплектность 6 5 Устройство и порядок работы 5.1 Устройство 7 5.2 Управление духо...
Страница 4 - ОБЩИЕ УКАЗАНИЯ; Наши изделия постоянно совершенствуются, улучшаются их; внимание; по которым проведена обязательная сертификация.
ДА602.00.0.000 РЭ 2 1 ОБЩИЕ УКАЗАНИЯ Наши изделия постоянно совершенствуются, улучшаются их характеристики, обновляется дизайн, поэтому рисунки и обозначения в руководстве могут несколько отличаться от Вашей модели. внимание ! ПеРеД ПеРВыМ ВКлючениеМ ВыДеРжаТь ПРибОР В ПОМещении, ГДе Он бУДеТ УсТанО...
Страница 5 - ТРЕБОВАНИЯ БЕЗОПАСНОСТИ
2 ТРЕБОВАНИЯ БЕЗОПАСНОСТИ ДА602.00.0.000 РЭ 3 ДУхОВКа не ПРеДнаЗначена Для исПОльЗОВания В КОММеРчесКих и ПРОиЗВОДсТВенных ЗОнах. внимание ! ПРибОР ВыПОлнен ПО I КлассУ ЗащиТы ОТ ПОРажения ЭлеКТРичесКиМ ТОКОМ и ДОлжен ПОДКлючаТься К ДВУхПОлюснОй РО З е Т К е с З аЗ е М л я ю щ и М КО н Та К ТО М . Д...
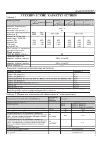
Страница 7 - ТЕхНИчЕСКИЕ хАРАКТЕРИСТИКИ
ДА602.00.0.000 РЭ 5 3 ТЕхНИчЕСКИЕ хАРАКТЕРИСТИКИ Таблица 1 Модель духовки Да602 Да622 Да602-01 Да622-01 Да602-02 Да622-02 Да602-03 Да622-03 Да622-04 Да622-04 а Да622-04 а1 Да622-04 н3 Диапазон номинальных напряжений,В номинальная частота, Гц 220-230 50 номинальная потребляемая мощность, Вт 1850- 202...
Страница 8 - Таблица 3; Комплектующие; КОМПЛЕКТНОСТЬ
Таблица 3 Комплектующие Модели духовки Да602 Да622 Да602-01 Да622-01 Да602-02 Да622-02 Да602-03 Да622-03 Да622-04 Духовка (шт.) 1 1 1 1 1 1 1 1 Противень для выпечки (шт.) 1 1 1 2 2 2 2 2 Проволочные направляющие - - 1 компл. 1 компл. 1 компл. 1 компл. 1 компл. 1 компл. Решетка (шт.) 1 1 1 2 2 2 2 2...
Страница 10 - УПРАВЛЕНИЕ ДУхОВКОй; *те л е с к о п и ч е с к и е п ол к и
8 ДА602.00.0.000 РЭ 5.2 УПРАВЛЕНИЕ ДУхОВКОй В зависимости от модели, управление духовкой может производиться механическим переключением ручек управления (рис.4 и рис.5 вариант а, б или в), с помощью электроники, посредством касания сенсорных зон либо комбинированным способом. Модификации Ра, Рн3, Рн...
Страница 11 - MIN...MAX; лампочка подсветки горит при всех рабочих режимах духовки.
ДА602.00.0.000 РЭ 9 Символ что включается Режим нагрева Примечание 0 переключатель режимов работы выключен Верхний и нижний ТЭНы объемный нагрев Для традиционного выпекания и жарения на одном уровне любых блюд. Жар поступает равномерно сверху и снизу. ТЭН-гриль гриль приготовление небольшого количес...
Страница 12 - Управление духовкой; ДУхОВКА С ЭЛЕКТРОМЕхАНИчЕСКИМ
ДА602.00.0.000 РЭ 10 1- ручка электромеханического таймера 2- ручка режимов работы духовки 3- ручка терморегулятора 4- лампочка включения духовки 5- лампочка терморегулятора Управление духовкой - Подключите духовку к электросети.- Ручкой режимов работы духовки (2) установите необходимый способ приго...
Страница 13 - ДУхОВКА С АНАЛОГОВыМ ТАйМЕРОМ; полуавтоматический режим.
ДА602.00.0.000 РЭ 11 5.4 ДУхОВКА С АНАЛОГОВыМ ТАйМЕРОМ 1 - аналоговый таймер 2 - ручка режимов работы духовки 3 - ручка терморегулятора 4 - лампочка включения духовки 5 - лампочка терморегулятора 6 - ручка таймера полуавтоматический режим. После установки необходимого режима и температуры нагрева ду...
Страница 16 - ДУхОВКА С СЕНСОРНыМ ТАйМЕРОМ
1 - сенсорный таймер 2 - ручка режимов работы духовки 3 - ручка терморегулятора 4 - лампочка включения духовки 5 - лампочка терморегулятора 6 - сенсорные зоны управления таймером Отмена программы если Вы хотите отменить заданную программу, нажмите ручку таймера и удерживайте ее в течение 2-3 секунд....
Страница 21 - - дисплей сенсорного
ДА602.00.0.000 РЭ 19 5.6 ДУхОВКА С МНОГОФУНКЦИОНАЛЬНыМ СЕНСОРНыМ УПРАВЛЕНИЕМ Рис.9 1 2 Включение / Выключение Регулировка температуры Минус Остановка любой программы Функции меню таймера Плюс Функция регулировки – ВВЕРХ Активирует и деактивирует клавишу блокировки Клавиша пуска приготовления функция...
Страница 28 - при пользовании грилем температура установки терморегулятора
5.7 ГРИЛЬ при пользовании грилем температура установки терморегулятора должна быть не более 225 °с (для духовок с сенсорным управлением и для режима “Усиленный гриль с конвекцией” « »- не более 200 °с). Эффект гриля заключается в том, что инфракрасное излучение ТЭн- гриля действует подобно углям кос...
Страница 32 - УСТАНОВКА
550 598 595 540 565 570 550m in 560 +4 -1 58 0 5 ± 550m in 560 +4 -1 580 5 ± 600 mi n 26 mi n ДА602.00.0.000 РЭ 30 Распакованную духовку запрещается переносить за ручку дверцы, на верхнем кожухе имеются специальные ручки для переноски. К у хо н н а я м ебел ь д ол ж н а б ы т ь и з гото вл е н а и з...
Страница 33 - ПОДКЛЮчЕНИЕ; перед подключением мастер обязан проверить:
ДА602.00.0.000 РЭ 31 7 ПОДКЛЮчЕНИЕ Духовка должна подключаться квалифицированным электриком, в соответствии с действующими нормами и правилами. Духовка подключается к электрической сети шнуром питания с вилкой. Вилка и сетевой шнур после установки прибора должны быть доступны для обеспечения возможн...
Страница 34 - ОБСЛУЖИВАНИЕ ДУхОВКИ; ОБязательнО
ДА602.00.0.000 РЭ 32 8 ОБСЛУЖИВАНИЕ ДУхОВКИ 8.1 УхОД ЗА ДУхОВКОй Каждый раз после пользования духовкой ее рекомендуется вымыть, протереть начисто и просушить. Можно применять специальное аэрозольное средство для удаления жира. Значительно легче мыть духовку, пока она еще теплая. Прикипевшие загрязне...
Страница 36 - ТЕхНИчЕСКОЕ ОБСЛУЖИВАНИЕ
ДА602.00.0.000 РЭ 34 8.2 ЗАМЕНА ЛАМПы Отключите духовку от сети. Отверните стеклянный плафон (рис.21). снимите плафон боковой подсветки (рис.22). Рис. 21 Рис. 22 внимание! УбеДиТесь, чТО ПРибОР ВыКлючен, ПРежДе чеМ ПРОиЗВОДиТь ЗаМенУ лаМПы, чТОбы иЗбежаТь ОПаснОсТи ПОРажения ЭлеКТРичесКиМ ТОКОМ. Выв...
Страница 38 - ПРИГОТОВЛЕНИЕ ПИРОГОВ; Если пирог подгорает сверху.
36 ДА602.00.0.000 РЭ 10.2 ПРИГОТОВЛЕНИЕ ПИРОГОВ не забудьте прогреть духовку. Тесто должно быть плотной консистенции, чтобы выпечка не затягивалась на выпаривание лишней влаги. Пирог большего веса готовится дольше. сформированным изделиям из дрожжевого теста перед выпечкой необходимо дать выстояться...
Страница 39 - Если пирог не достается из формы.; ПРИГОТОВЛЕНИЕ МЯСА И РыБы
37 ДА602.00.0.000 РЭ Если пирог не достается из формы. Попробуйте сначала аккуратно отделить края пирога от формы с помощью ножа. Пирог будет легче извлечь, если горячую еще форму поставить на мокрое холодное полотенце. а при следующей выпечке обильней смажьте форму маслом и посыпьте панировочными с...
Страница 40 - РЕЖИМы ПРИГОТОВЛЕНИЯ; Таблица 4
38 ДА602.00.0.000 РЭ 10.4 РЕЖИМы ПРИГОТОВЛЕНИЯ Таблица 4 Практически все привыкли готовить в традиционном основном режиме работы духовки - объемный нагрев . Для него чаще всего даются рекомендации в кулинарных книгах. ниже мы приводим рекомендации по приготовлению в дополнительных специальных режима...
Страница 41 - Продолжение таблицы 4
ДА602.00.0.000 РЭ 39 Продолжение таблицы 4 Блюдо Масса, кг Уровень (считая снизу) Вид нагрева Температура приготовления, °С Время, мин Телятина порционно (один уровень) 0,8 2 200 25-35 Телятина порционно (два уровня) 1,5 2 и 4 200 35-45 Баранина 1,5 2 180-200 60-70 Курица целиком 1,5 2 200 40-50 Кур...
Страница 42 - законом права потребителей.
40 ДА602.00.0.000 РЭ 11 ТРАНСПОРТИРОВАНИЕ И хРАНЕНИЕ Перевозить духовки необходимо в заводской упаковке в вертикальном положении, не более чем в четыре яруса по высоте. Транспорт и хранилища должны обеспечивать защиту изделия от атмосферных осадков и механических повреждений. Духовка должна хранитьс...
Страница 43 - Унитарное предприятие
41 ДА602.00.0.000 РЭ Гарантийный ремонт производится персоналом уполномоченной сервисной службы. Представитель сервисной службы, производящий ремонт, обязан заполнить отрывной изымаемый талон и корешок к нему. внимание: ВО иЗбежание неДОРаЗУМений, сВяЗанных с ГаРанТийныМ ОбслУжиВаниеМ, ТРебУйТе ОТ П...