Страница 3 - Содержание; Page
1 1 1.11.21.3 2 2.12.22.3 3 3.13.23.33.43.53.6 4 4.14.24.34.4 5 5.15.25.3 6 6.1 7 7.17.2 8 8.1 9 9.19.29.39.49.5 10 11 11.111.211.3 12 12.112.2 13 13.1 14 14.114.2 2 4 6 10 12 17 19 21 22 26 27 28 30 31 www.fhiaba.com ∙ info@fhiaba.com ∙ Tel +39 (0)434 420160 ∙ Fax +39 (0)434 420161 Содержание Важны...
Страница 4 - Примечание; Обеспечение; Внимание
2 1 1.1 B09001301 Product tested in accordante with EN62471 Risk Group 2 PRUDENZA: NON FISSARE LA LAMPADA IN FUNZIONE. PUÒ ESSERE DANNOSO PER GLI OCCHI. CAUTION: DO NOT STARE AT OPERATING LAMP. MAY BE HARMFUL TO THE EYES. www.fhiaba.com ∙ info@fhiaba.com ∙ Tel +39 (0)434 420160 ∙ Fax +39 (0)434 4201...
Страница 6 - Установка
4 2 2.1 2.2 www.fhiaba.com ∙ info@fhiaba.com ∙ Tel +39 (0)434 420160 ∙ Fax +39 (0)434 420161 Убедитесь в том , что установка выполнена правильно , с соблюде - нием всех указаний , приведенных в специальном руководстве по установке , поставляемом вместе с изделием . Установка Подключение к электричес...
Страница 8 - Знакомство
6 3 3.1 3.2 www.fhiaba.com ∙ info@fhiaba.com ∙ Tel +39 (0)434 420160 ∙ Fax +39 (0)434 420161 Перед началом Знакомство с прибором Поздравляем Вас с приобретением Вашего нового холо - дильника Fhiab а . Начиная с сегодняшнего дня , Вы можете оценить все преимущества нашей инновационной систе - мы хран...
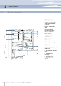
Страница 9 - Перед; Основные; Холодильная; T Models
7 3 3.3 1 9 10 11 12 13 14 1516 2 3 4 5 6 8 1 10 11 12 13 14 15 16 2 3 4 7 8 9 Low Temp TriMode TriMode www.fhiaba.com ∙ info@fhiaba.com ∙ Tel +39 (0)434 420160 ∙ Fax +39 (0)434 420161 Перед началом Основные компоненты Холодильная с одним выдвижным ящиком 1- Корпус из нержавеющей стали с алюминиевым...
Страница 10 - H Models
8 3 3.3 1 78 9 10 11 12 13 2 3 4 5 6 www.fhiaba.com ∙ info@fhiaba.com ∙ Tel +39 (0)434 420160 ∙ Fax +39 (0)434 420161 Основные компоненты Перед началом Холодильная с двумя выдвижными ящиками 1- Корпус из нержавеющей стали с алюминиевыми отделками 2- Панель управления с Menu 3- Запатентованная систем...
Страница 12 - TriMode; Включение
10 4 4.1 www.fhiaba.com ∙ info@fhiaba.com ∙ Tel +39 (0)434 420160 ∙ Fax +39 (0)434 420161 Включение и выключение прибора Если при первом включении надпись Stand- by не выходит на экран , но появляются другие сообщения , это значит , что в холодильной машине уже начался процесс охлаждения . В этом сл...
Страница 13 - Alarm; Enter
11 4 4.3 4.4 4.2 www.fhiaba.com ∙ info@fhiaba.com ∙ Tel +39 (0)434 420160 ∙ Fax +39 (0)434 420161 Интегрированная система контроля поставляет различную информа - цию путем световых сигналов или текстовых сообщений , выходящих на экран . Сообщение информативного характера отображается неиз - меняемым...
Страница 14 - Установки; Fhiaba
12 5 5.1 5.2 FRIDGE UNIT www.fhiaba.com ∙ info@fhiaba.com ∙ Tel +39 (0)434 420160 ∙ Fax +39 (0)434 420161 Установки и Специальные Функции Чтобы адаптировать холодильник к различным потребностям в ис - пользовании , функционирование Вашего Fhiaba можно персонализи - ровать , перенастраивая основные п...
Страница 16 - SuperIce
14 5 www.fhiaba.com ∙ info@fhiaba.com ∙ Tel +39 (0)434 420160 ∙ Fax +39 (0)434 420161 Функция Генератора Льда позволяет выбирать размер ледяных ку - биков , выбирая между Large (= большой ) ( стандартная установка ) и Medium (= средний ), и активировать функцию SuperIce (= супер - лед ), увеличивающ...
Страница 17 - Sabbath Mode
15 5 www.fhiaba.com ∙ info@fhiaba.com ∙ Tel +39 (0)434 420160 ∙ Fax +39 (0)434 420161 Эта функция позволяет соблюдать некоторые религиозные правила , ко - торые исключают влияние , оказываемое открыванием дверей на работу холодильника ( функции поддержания постоянного температурного ре - жима , внут...
Страница 18 - Стандартные
16 5 5.3 www.fhiaba.com ∙ info@fhiaba.com ∙ Tel +39 (0)434 420160 ∙ Fax +39 (0)434 420161 Часы и минуты на экране отображаются как hh:mm, где hh (= часы ) име - ют мигающую подсветку . При помощи кнопок Up/Down Вы можете изме - нить существующую установку и подтвердить ее клавишей Enter, чтобы перей...
Страница 21 - Ice Maker
19 7 7.1 www.fhiaba.com ∙ info@fhiaba.com ∙ Tel +39 (0)434 420160 ∙ Fax +39 (0)434 420161 Включение и использование Ледогенератора Включение и использование Ледогенератора Лед издает необычный запах ? Рабочие шумы Нормальные рабочие шумы Чтобы включить ледогенератор после установки прибора , нажмите...
Страница 22 - Водяной
20 7 7.2 www.fhiaba.com ∙ info@fhiaba.com ∙ Tel +39 (0)434 420160 ∙ Fax +39 (0)434 420161 Включение и использование Ледогенератора Водяной фильтр Водяной фильтр гарантирует наивысшее качество воды , используе - мой для изготовления кубиков льда , в объеме , доходящем до 3.000 литров , и на максималь...
Страница 23 - Освещение; co
21 8 8.1 www.fhiaba.com ∙ info@fhiaba.com ∙ Tel +39 (0)434 420160 ∙ Fax +39 (0)434 420161 Освещение Освещение Чтобы обеспечить оптимальную видимость внутреннего простран - ства , система освещения предусматривает два способа : свето - диодовый свет , который освещает сверху холодильную камеру , и со...
Страница 24 - Хранение
22 9.1 9.2 9 www.fhiaba.com ∙ info@fhiaba.com ∙ Tel +39 (0)434 420160 ∙ Fax +39 (0)434 420161 Ваш Fhiaba был разработан с целью обеспечения точных и постоянных температур и необходимых уровней влажности для каждого из отделе - ний . Кроме того , двойная система охлаждения предохраняет заморожен - ны...
Страница 30 - Руководство; “Call Service”
28 12 12.1 www.fhiaba.com ∙ info@fhiaba.com ∙ Tel +39 (0)434 420160 ∙ Fax +39 (0)434 420161 Вы оставили двери открытыми на долгое время ? Двери плотно не закрываются ? Если двери плотно не закрываются , обратитесь к вашему установщику . В случае образования инея или льда в камере Crisper-Fresco, про...