ЭРА СНПТ-5000-Ц - инструкции и руководства

model-name

Стабилизатор напряжения ЭРА СНПТ-5000-Ц - инструкции пользователя по применению, эксплуатации и установке на русском языке читайте онлайн в формате pdf

1 Page 1
2 Page 2
3 Page 3
4 Page 4
5 Page 5
6 Page 6
7 Page 7
8 Page 8

Краткое содержание

Страница 3 - Назначение стабилизатора

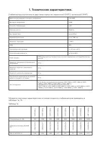
СННТ -500-Ц СННТ -1000-Ц СННТ -1500-Ц СННТ -2000-Ц СННТ -3000-Ц СННТ -5000-Ц СННТ -8000-Ц СННТ -10000-Ц Полная мощность, ВА 500 1000 1500 2000 3000 5000 8000 10000 Габаритные размеры ДхШхВ, мм 180x165x115 180x165x115 230x165x115 230x165x115 320x220x136 320x220x136 380x270x170 380x270x170 Масса, не б...

Страница 4 - Меры безопасности при эксплуатации стабилизатора

Рекомендуется выбирать модель стабилизатора напряжения минимум с 25% запасом от потребляемой мощности нагрузки. Во-первых, Вы обеспечите “щадящий” режим работы стабилизатора, тем самым увеличив его срок службы, во-вторых, создадите себе резерв мощности для подключения нового оборудования. Далее для ...

Страница 5 - Конструкция стабилизатора

5. Конструкция стабилизатора Модели СНПТ-500…2000-Ц Модели СННТ-500…2000-Ц 1. Дисплей для демонстрации входного напряжения 2. Индикатор работы 3. Индикатор задержки включения 4. Дисплей для демонстрации выходного напряжения 5. Индикатор защиты 6. Кнопка выбора времени задержки включения 7. Выключате...

ЭРА Стабилизаторы напряжения Инструкции