Страница 3 - Содержание
RU - 3 - Содержание ПЕРЕД ЭКСПЛУАТАЦИЕЙ ИЗДЕЛИЯ ................................................ 6 Общие предостережения ............................................................................... 6 Старые и вышедшие из строя холодильники ............................................. 11 Правила ...
Страница 5 - МЫ ДУМАЕМ О ВАС; Сервис
RU - 5 - МЫ ДУМАЕМ О ВАС Благодарим вас за приобретение прибора Electrolux. Вы выбрали изделие, за которымстоят десятилетия профессионального опыта и инноваций.Уникальное и стильное, оно создавалось с заботой о вас. Поэтому когда бы вы нивоспользовались им, вы можете быть уверены: результаты всегдаб...
Страница 6 - ПЕРЕД ЭКСПЛУАТАЦИЕЙ ИЗДЕЛИЯ; Общие предостережения
RU - 6 - ЧАСТЬ 1. ПЕРЕД ЭКСПЛУАТАЦИЕЙ ИЗДЕЛИЯ Общие предостережения Пожалуйста, внимательно ознакомьтесь с этой инструкцией по эксплуатации до установки и использования холодильника. Изготовитель не несёт ответственности в случае возникновения повреждений, связанных с неправильным использованием при...
Страница 7 - П Р Е Д О СТ Е Р Е Ж Е Н И Е :
RU - 7 - П Р Е Д О СТ Е Р Е Ж Е Н И Е : Ч т о б ы и з б е ж ат ь р и с к о в , обусловленных неустойчивостью прибора, его следует устанавливать строго в соответствиями с интрукциями по установке. Если в качестве хладагента в приборе используется R600a (эта информация приведена на табличке с техничес...
Страница 10 - Обслуживание
RU - 10 - Обслуживание • Д л я р е м о н т а б ы т о в о го п р и б о р а о б р а щ а й т е с ь в Авторизованный сервисный центр. Используйте только оригинальные запасные части. • О б р ат и т е в н и м а н и е , ч т о с а м о с т о я т ел ь н ы й и л и непрофессионально выполненный ремонт может быт...
Страница 11 - Старые и вышедшие из строя холодильники
RU - 11 - Старые и вышедшие из строя холодильники • Если Ваш холодильник имеет замок, сломайте или снимите его, прежде чем выбрасывать холодильник, поскольку внутри может оказаться запертым ребенок, и это может привести к несчастному случаю. • Старые морозильные камеры и холодильники содержат изоляц...
Страница 12 - Правила техники безопасности
RU - 12 - Правила техники безопасности • Не используйте множественные штепсельные розетки или удлинители.• Не подключайте прибор к поврежденным, изношенным или старым розеткам.• Старайтесь не тянуть и не изгибать шнур, а также избегайте его повреждений. • Прибор предназначен для использования взросл...
Страница 13 - Установка и эксплуатация холодильника
RU - 13 - Установка и эксплуатация холодильника Перед началом использования холодильника обратите внимание на следующие моменты: • Рабочее напряжение холодильника составляет 220–240 В при частоте 50 Гц.• После установки розетки она должна быть доступной.• Не пользуйтесь переходником для вилки.• При ...
Страница 14 - Перед использованием холодильника; Если в холодильнике установлен конденсатор с вентилятором:
RU - 14 - Перед использованием холодильника • Е с л и х ол од и л ь н и к и с п ол ь з у ет с я в п е р в ы й р а з и л и п о с л е транспортировки, он должен простоять в вертикальном положении в течение 3 часов, после чего его можно подключать к электрической сети. В противном случае, может быть по...
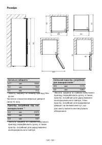
Страница 15 - Размеры; Общие габариты
RU - 15 - Размеры Общие габариты 1 H1* мм 1920 W1 мм 700 D1 мм 712 1 высота, ширина и глубина прибора без ручки. *включая высоту верхней дверной петли (10 мм). Пространство, требуемое при использовании 2 H2 мм 2070 W2 мм 800 D2 мм 737 2 Высота, ширина и глубина бытового прибора включают в себя ручку...
Страница 16 - РАЗЛИЧНЫЕ ФУНКЦИИ И ВОЗМОЖНОСТИ; Информация о технологии охлаждения нового поколения
RU - 16 - ЧАСТЬ 2. РАЗЛИЧНЫЕ ФУНКЦИИ И ВОЗМОЖНОСТИ Информация о технологии охлаждения нового поколения В холодильниках с охлаждением нового поколения применяется другая рабочая система, чем в холодильниках со статической системой. В обычных холодильниках влажный воздух, попадающий в него, а также во...
Страница 17 - Дисплей и панель управления
RU - 17 - Дисплей и панель управления Дисплей и панель управления 1. Экран установки значений настроек холодильного отделения. 2. Индикатор режима интенсивного охлаждения. 3. Экран установки значений настроек морозильной камеры. 4. Индикатор режима интенсивной заморозки. 5. Символ экономичного режим...
Страница 18 - Управление холодильником; Режим интенсивной заморозки
RU - 18 - Управление холодильником Режим интенсивной заморозки Как он применяется? Нажмите и удерживайте кнопку режима морозильной камеры, пока не увидите на дисплее символ интенсивной заморозки. Будет подан звуковой сигнал. Режим будет включен. Во время этого режима: • Можно настроить температуру х...
Страница 22 - Функция оповещения об открытой дверце; Настройки температуры холодильной камеры
RU - 22 - Функция оповещения об открытой дверце Если дверца холодильной камеры открыта дольше 2 минут, бытовой прибор подаст двойной звуковой сигнал, и будет мигать значок открытой дверцы. Настройки температуры холодильной камеры • Исходная температура на индикаторе настроек холодильной камеры: +4 °...
Страница 23 - Настройки температуры морозильной камеры; отделении
RU - 23 - Настройки температуры морозильной камеры • Исходная температура на индикаторе настроек морозильной камеры: -18 °C.• Нажмите кнопку параметров морозильной камеры один раз.• При первом нажатии этой кнопки на экране отобразится последнее заданное значение. • При каждом последующем нажатии это...
Страница 24 - Предупреждения по поводу настройки температуры
RU - 24 - Предупреждения по поводу настройки температуры • В целях эффективности не рекомендуется использовать холодильник при температуре окружающей среды ниже 10 °C. • Настройку температуры производят в зависимости от частоты открывания дверцы и количества хранимых внутри продуктов. • Не начинайте...
Страница 25 - Принадлежности; Полка охладителя
RU - 25 - Принадлежности Приготовление кубиков льда (Icematic) • Достаньте форму для приготовления льда• Наполните ее водой до линии.• Вставьте форму для льда на место.• Когда ледяные кубики застынут, поверните рычаг для высыпания их в коробку для льда. Примечание. • Не наливайте воду в коробку для ...
Страница 27 - РАЗМЕЩЕНИЕ ПРОДУКТОВ В ХОЛОДИЛЬНИКЕ; Холодильная камера
RU - 27 - ЧАСТЬ 3. РАЗМЕЩЕНИЕ ПРОДУКТОВ В ХОЛОДИЛЬНИКЕ Холодильная камера • Отделение для свежих продуктов помечено символом (на табличке с техническими данными) • Для нормальных условий эксплуатации значение температуры холодильной камеры достаточно установить на 4 °C. • Для снижения влажности и, с...
Страница 28 - Важное примечание
RU - 28 - ПРИМЕЧАНИЕ: Картофель, овощи и чеснок не должны храниться в холодильнике. Морозильная камера • Морозильная камера обозначена так: . • Отделение глубокой заморозки используется для хранения замороженных продуктов в течение длительного времени и для изготовления льда. • Для достижения максим...
Страница 32 - ЧИСТКА И ОБСЛУЖИВАНИЕ; • Перед очисткой отключите холодильник.
RU - 32 - ЧАСТЬ 4. ЧИСТКА И ОБСЛУЖИВАНИЕ • Перед очисткой отключите холодильник. • Не мойте холодильник в проточной воде. • Внутреннюю и внешнюю поверхности можно протереть мягкой тканью или губкой, смоченной в теплой мыльной воде. • Извлеките все детали и промойте мыльной водой. Запрещается мыть в ...
Страница 33 - Замена светодиодной подсветки
RU - 33 - Замена светодиодной подсветки Если ваш холодильник оснащен светодиодной подсветкой, обратитесь в техническую службу, т.к. она может быть заменена только уполномоченным специалистом. Примечание: Количество и место расположения светодиодных лент зависит от модели. Холодильное отделение Свето...
Страница 34 - ТРАНСПОРТИРОВКА И ПЕРЕСТАНОВКА; Транспортировка и перестановка холодильника; П е р е в о з и т е хол о д и л ь н и к в в е р т и к а л ь н о м; Перестановка дверцы; ПРЕЖДЕ ЧЕМ ЗВОНИТЬ В АВТОРИЗОВАННЫЙ; Проверьте предупреждения
RU - 34 - ЧАСТЬ 5. ТРАНСПОРТИРОВКА И ПЕРЕСТАНОВКА Транспортировка и перестановка холодильника • Оригинальную упаковку и пенопласт можно использовать для повторной транспортировки (по желанию). • Зафиксируйте холодильник с помощью прочной упаковки, ремней или крепких веревок. Следуйте инструкциям по ...
Страница 36 - Если продукты в холодильнике чрезмерно охлаждаются; Если холодильник работает слишком шумно
RU - 36 - Если холодильник не работает: • Имеются неисправности в электрике?• Подключен ли штепсель в розетку должным образом?• Не сработал ли предохранитель розетки, в которую включен штепсель?• Температура установлена правильно?• Исправна ли розетка? Проверьте, подключив холодильник в розетку, в и...
Страница 39 - Рекомендации по энергосбережению
RU - 39 - Рекомендации по энергосбережению 1– Установите прибор в прохладном, хорошо вентилируемом помещении, куда не попадают прямые солнечные лучи, вдали от источников тепла (батарей отопления, плиты и т.д.). В противном случае необходимо использовать изоляционную панель. 2– Подождите, пока подогр...