Страница 2 - electrolux; Содержание; Технические характеристики, указанные на
2 electrolux Инструкция по эксплуатации мобильного кондиционерасерии EACM-EM/R, EACM-EM/Eu Мы благодарим Вас за сделанный выбор! Вы приобрели качественный и высокотехнологичный прибор, пожалуйста, перед использованием внимательно ознакомьтесь с инструкцией по монтажу и эксплуатации. Содержание Указа...
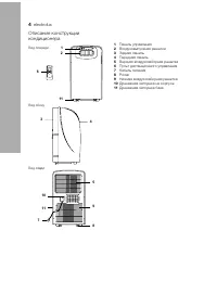
Страница 4 - Вид спереди
4 electrolux Описание конструкции кондиционера 1 2 6 11 Вид спереди 3 4 Вид сбоку 1 Панель управления 2 Воздуховыпускная решетка 3 Задняя панель 4 Передняя панель 5 Верхняя воздухозаборная решетка 6 Пульт дистанционного управления 7 Кабель питания 8 Ролик 9 Нижняя воздухозаборная решетка 10 Дренажна...
Страница 5 - Внешний вид; Дополнительные принадлежности
кондиционеры 5 Внешний вид Наименование Количество Шланг для выбросного воздуха 1 Патрубок А (для постоянного крепления шланга выбросного воздуха) 1 Патрубок В (для временного крепления шланга выбросного воздуха) 1 Дюбель 4 Винт 4 Элементы питания 2 Пульт дистанционного управления 1 Дополнительные п...
Страница 6 - Технические характеристики пульта дистанционного управления; Функции пульта ДУ
6 electrolux Технические характеристики пульта дистанционного управления Модель EACM - 09 E/R, EACM - 12 E/R, EACM - 14 E/R Номинальное напряжение 3,0 В Минимальное рабочее напряжение 2,0 В Максимальное расстояние до приемника сигналов 8 м Температура воздуха в помещении от -5 до +60 о С Функции пул...
Страница 7 - Установка и замена элементов питания; Индикация на дисплее пульта ДУ
кондиционеры 7 Дистанционное управление кондиционером Установка и замена элементов питания Для питания пульта ДУ используются два щелочных элемента питания типа R03/lr03x2.• Для установки элементов питания выдвиньте крышку отсека элементов питания и вставьте элементы питания в соответствии с символа...
Страница 8 - Охлаждение, обогрев и вентиляция
8 electrolux Охлаждение, обогрев и вентиляция • Включите кондиционер, нажав кнопку "ON/ OFF". На панели индикации кондиционера появится индикатор рабочего режима. • Нажимая кнопку "MODE", выберите режим охлаждения, обогрева (только в кондиционе-рах с режимами охлаждения и обогрева) и...
Страница 9 - Эксплуатация кондиционера; • Если кондиционер работает только в
кондиционеры 9 Эксплуатация кондиционера Установка кондиционера • Выберите подходящее место установки кондиционера с удобным подходом к розетке. • Установите шланг выбросного воздуха и регулируемый патрубок в окне, как показа-но на рисунках (см. ниже). Пункт 2 необходим, только если кондиционер буде...
Страница 10 - Режим работы по таймеру; • Временной интервал может быть задан в; Временный монтаж; • Присоедините один конец шланга к отверс-
10 electrolux Режим работы по таймеру Задание времени включения кондиционера по таймеру:• Нажимая кнопку "TIMER ON" при отклю- ченном кондиционере, задайте время включения агрегата. На дисплее появится индикатор "ON". • Временной интервал может быть задан в диапазоне от 0 до 24 часов...
Страница 11 - Стационарный монтаж; • Присоедините один конец шланга к отвер-; Техническое обслуживание
кондиционеры 11 Стационарный монтаж • Присоедините один конец шланга к отвер- стию для выброса воздуха и закрепите сначала левую, а затем правую сторону раструба. Нажмите на раструб и убедитесь, что шланг закреплен надежно. • Используя пробки и винты, установите на стену патрубок А. Убедитесь, что п...
Страница 12 - Чистка воздушного фильтра; Утилизация; Сертификат соответствия:
12 electrolux Чистка воздушного фильтра • Засорение воздушного фильтра частицами пыли приводит к уменьшению расхода воз-духа через кондиционер, поэтому проводи-те чистку фильтра не реже одного раза в две недели. • Извлечение фильтра Приподнимите крышку воздушного филь-тра и снимите с нее фильтр (рис...
Страница 13 - Неисправность; Слейте воду из емкости.
кондиционеры 13 Неисправность Причина Способ устранения 1. При нажатии кнопки ON/OFF кондиционер не включается Мигает индикатор заполнения емкости, емкость для сбора конденсата переполнена. Слейте воду из емкости. Температура воздуха в помещении выше заданной (в режиме обогрева). Правильно задайте т...
Страница 14 - Га ран тий ный та лон; Правильное заполнение гарантийного талона; Внешний вид и комплектность изделия; Общие правила установки (подключения) изделия; Модель
Га ран тий ный та лон Настоящий документ не ограничивает определенные законом права потребителей, но дополняет и уточняет ого-воренные законом обязательства, предполагающие согла-шение сторон либо договор. Правильное заполнение гарантийного талона Внимательно ознакомьтесь с гарантийным талоном и про...
Страница 15 - ТАЛОН НА ГАРАНТИЙНОЕ ОБСЛУЖИВАНИЕ/
параметрам и безопасности) электрической, газовой или водопровод-ной сети и прочих внешних сетей; • дефектов, возникших вследствие попадания внутрь изделия посторонних предметов, жидкостей, насекомых и продуктов их жизне-деятельности, и т.д. • неправильного хранения изделия;• необходимости замены ра...