Страница 3 - ОГЛАВЛЕНИЕ
Введение ОГЛАВЛЕНИЕ Введение Правила техники безопасности.............3 Общие сведения Инструкции по монтажу.........................4Подготовка к монтажуРазмещение котла.................................5Предупредительные мерыПромывка системы отопления..............6Маркировка CEТабличка технических...
Страница 5 - Правила техники безопасности
Введение Правила техники безопасности Условные обозначения:Несоблюдение правил техники безопасности может стать причиной травм, в определенных обстоятельствах даже смертельных.Несоблюдение правил техники безопасности может стать также причиной повреждения, в определенных обстоятельствах даже существ...
Страница 9 - Общие сведения; Инструкции по монтажу
Общие сведения Инструкции по монтажу Монтаж и первый пуск котла должны выполняться квалифицированными специалистами с соблюдением дейст-вующих местных норм в отношении монтажа, а также предписаний местных органов власти и здравоохранения. По завершении монтажа котла монтажник обязан передать деклара...
Страница 10 - РАЗМЕЩЕНИЕ КОТЛА
Общие сведения подобраны верно, а его монтаж выполнен правильно. • Перед началом монтажа рекомендуется тщательно промыть всю систему подачи газа, чтобы удалить посторонние ве-щества, которые могут помешать нормальной работе котла. • Удостовериться, что давление в водопроводной системе не превышает 6...
Страница 11 - Промывка системы отопления
Общие сведения Промывка системы отопления Если котел устанавливается в уже существующую систему отопления, часто случается, что в воде находятся различные вещества и присадки, которые могут оказать негативное влияние на работу и продолжительность службы нового котла. Прежде чем заменить воду, необхо...
Страница 12 - Присоединение к дымоходу; во время работы; Электрические соединения; В случае замены питающего кабеля
Общие сведения Присоединение к дымоходу Котел должен быть подключен к системе дымоудаления, которая соответствует действующим нормам. Проверить качество дымоудаления продуктов сгорания, замеряя содержание СО 2 во время работы котла при номинальной мощности. Данное значение не должно превышать величи...
Страница 13 - описание продукта; Общий вид
описание продукта Общий вид Гидравлическая схема A. Подающий трубопровод системы отопления 3/4" B. Выход горячей воды 1/2" C. Вход газа 3/4" D. Вход холодной воды 1/2" E. Обратный трубопровод системы отопления 3/4" Экспликация1. Выпускной коллектор дымовых газов2. Датчик тяги3. К...
Страница 14 - Габаритные размеры котла
описание продукта Габаритные размеры котла A. Подающий трубопровод системы отопления 3/4" B. Выход горячей воды 1/2" C. Вход газа 3/4" D. Вход холодной воды 1/2" E. Обратный трубопро-вод системы отопления 3/4" Минимальные расстояния при монтаже Для того чтобы обеспечить удобство ...
Страница 16 - Монтаж; Гидравлические и газовые; Гребенка; (краны показаны в открытом
Монтаж Гидравлические и газовые соединения Наши дистрибьюторы могут предложить вам наборы монтажных принадлежностей, облегчающих решение разнообразных технически задач, которые возникают при:– монтаже новой установки– замене старого котла Chaffoteaux– замене котлов других марокЗа дополнительными све...
Страница 17 - Остаточный напор циркуляционного насоса; Объём воды в системе отопления
Монтаж Для определения диаметров трубопроводов и мощности радиаторов системы отопления следует учитывать величину остаточного напора в зависимости от требуемого расхода с помощью графика, иллюстрирующего работу циркуляционного насоса. Остаточный напор циркуляционного насоса бар л/ч Объём воды в сист...
Страница 18 - Инструкции по демонтажу кожуха и; – движением на себя откинуть панель
Монтаж Инструкции по демонтажу кожуха и внутреннему осмотру Прежде чем приступать к любой работе, отключите котел от электрической сети. Для этого поверните наружный двухпозицион-ный выключатель в положение «ВЫКЛ.» и перекройте газовый кран.Чтобы получить доступ внутрь котла, необходимо:– вывинтить ...
Страница 19 - Монтаж котла; стене и выровнять его; Предохранительный клапан; тельного клапана «
Монтаж Монтаж котла Монтаж котла выполняется после установки гребенки. Для этого:– закрепить опорный кронштейн котла на стене и выровнять его; – навесить котел на кронштейн;– снять лицевую облицовочную панель;– если используется гребенка (дополни- тельная комплектация), вывинтить 2 винта B и демонти...
Страница 20 - Соединение с системой солнечных; За дополнительными сведениями см.; Руководство по; кость
Монтаж Соединение с системой солнечных батарей Котел серийно комплектуется датчиком температуры, который последовательно подключается к системе солнечных батарей (для приготовления горячей воды для бытовых нужд). Для того, чтобы обеспечить правильную работу комбинированной системы отопления, темпера...
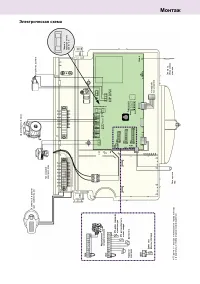
Страница 22 - присоединить провода термостата.; IP
Монтаж Электрические соединения Прежде чем приступать к любой работе, отключите котел от электри-ческой сети. Для этого переведите наружный двухпозиционный выключатель в положение «ВЫКЛ.». Обязательно соблюдать полярность (фаза/ноль). Электропитание осуществляется от сети 230 В, 50 Гц (L, N + PE) с ...
Страница 25 - Пуск; Первый пуск котла
Пуск Первый пуск котла Удостовериться, что– колпачек автоматического воздухо- отделителя на циркуляционном насосе ослаблена. – разблокирован циркуляционный насос, для этого отверните заглушку на передней части насоса и проверните отверткой вал насоса – манометр показывает, что давление в системе ото...
Страница 26 - Регулировки; ПРОВЕРКА НАСТРОЕК ГАЗОВОЙ
Регулировки ПРОВЕРКА НАСТРОЕК ГАЗОВОЙ АППАРАТУРЫ Проверка давления в газопроводе. 1. Ослабить винт (дет. , рис. «а») и вставить соединительный патрубок манометра в гнездо отбора давления. 2. Переведя котел в режим «Трубочист», включить котел на максимальную мощность (нажать в течение 5 секунд кноп...
Страница 27 - Регулирование максимальной; Dip-переключатель 1 Конфигурация
Регулировки 2. Отсоединить трубку компенсации давления. 3. Переведя котел в режим «Трубочист», включить его на максимальную мощность (нажать в течение 5 секунд кнопку перезапуска: зеленый индикатор 2 начнет мигать). Отсоединить один проводов от катушки модуляции (рис. «d»).Давление газа должно соотв...
Страница 28 - Давление газа в режиме отопления; IX; Сводная таблица характеристик газов
Регулировки В таблице проиллюстрировано соотноше-ние между давлением газа в горелке и мощностью котла в режиме отопления. Давление газа в режиме отопления A L IX IA 2 4 C F Газ Тепловая мощность (кВт) 10,1 12 14 16 18 20 22 23,7 G20 мбар 2,2 3,2 4,4 5,7 7,2 7,6 9,1 10,6 G30 мбар 5,5 8,0 11,0 14,3 18...
Страница 30 - Предохранительные системы и устройства; Предохранительные системы; ного давления воды; в контуре отопления; Аварийная блокировка
Предохранительные системы и устройства Предохранительные системы и устройства В котле предусмотрена система защиты от внутренних неполадок, которая реализуется электронной платой управления. В случае необходимости плата дает команду на аварийный остановку котла.В таких случаях светодиодные индикатор...
Страница 31 - Расшифровка кодов ошибок; желтый красный; Защита от замерзания
Предохранительные системы и устройства Расшифровка кодов ошибок Индикаторы температуры горят желтым цветом Индикатор Пере- запуск Значение 40 50 60 70 80 90 желтый красный X Остановка из-за перегрева Остановка из-за недостаточного давления воды (см. выше) X Блокировка из-за недостаточной циркуляции ...
Страница 32 - Временная остановка в связи
Предохранительные системы и устройства – в котел поступает газ. Временная остановка в связи аномалией в системе дымоудаления В котле предусмотрено устройство, которое останавливает котел в случае возникнове- ния аномальной ситуации в системе удале- ния дымовых газов. Остановка котла — временная, о н...
Страница 33 - техническое обслуживание; Общие рекомендации
техническое обслуживание Техническое обслуживание необходимо для обеспечения безопасности, нормальной работы котла и продления срока его службы. Техническое обслуживание должно осуществляться согласно действующим нормам. В ОБЯЗАТЕЛЬНОМ ПОРЯДКЕ должен проводиться анализ продуктов сгорания с целью про...
Страница 34 - Опорожнение или использование; НЕ СМЕШИВАТЬ РАЗЛИЧНЫЕ ТИПЫ; Слив воды из контура ГВС
техническое обслуживание Опорожнение или использование антифриза Опорожнять систему отопления следует следующим образом:– переведя наружный электрический выклю- чатель в положение ВЫКЛ., выключить котел и перекрыть газовый кран; – немного отвинтить рукоятку автомати- ческого воздухоотводчика; – с по...
Страница 36 - технические характеристики
технические характеристики О БЩ И Е ДА Н Н Ы Е Модель ALIXIA 24 CF Сертификат СЕ (уникальный идентификационный номер) 1312BR4794 Тип котла B11bs Э Н ЕР ГЕ ТИ ЧЕ С КИ Е П О КА ЗА ТЕ ЛИ Номинальная теплопроизводительность в режиме отопления макс./мин (Hi) кВт 25,8 / 11,2 Номинальная теплопроизводитель...