Buderus Logalux L3TH - инструкции и руководства

Водонагреватель Buderus Logalux L3TH - инструкции пользователя по применению, эксплуатации и установке на русском языке читайте онлайн в формате pdf

1 Page 1
2 Page 2
3 Page 3
4 Page 4
5 Page 5
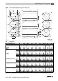
6 Page 6
7 Page 7
8 Page 8
9 Page 9
10 Page 10
11 Page 11
12 Page 12
13 Page 13
14 Page 14
15 Page 15
16 Page 16
17 Page 17
18 Page 18
19 Page 19
20 Page 20
21 Page 21
22 Page 22
23 Page 23
24 Page 24
25 Page 25
26 Page 26
27 Page 27
28 Page 28
29 Page 29
30 Page 30
31 Page 31
32 Page 32
33 Page 33
34 Page 34
35 Page 35
36 Page 36

Краткое содержание

Страница 2 - Содержание

Содержание Logalux LTN/LF - Оставляем за собой право на изменения! 2 Содержание 1 Пояснения символов и указания по технике безопасности . . . . . . . . . . . . . . . . . . . . . . . . . . . . . . 3 1.1 Пояснения условных обозначений . . . . . . . . 3 1.2 Указания по технике безопасности . . . . . . ...

Страница 3 - Пояснения символов и указания по технике безопасности

1 Пояснения символов и указания по технике безопасности Logalux LTN/LF - Оставляем за собой право на изменения! 3 1 Пояснения символов и указания по технике безопасности 1.1 Пояснения условных обозначений Предупреждения Выделенные слова в начале предупреждения обозначают вид и степень тяжести послед...

Страница 4 - Вводный инструктаж потребителя

1 Пояснения символов и указания по технике безопасности Logalux LTN/LF - Оставляем за собой право на изменения! 4 Вводный инструктаж потребителя B Проинформируйте потребителя об использовании бака-водонагревателя и особенно обратите его внимание на правила техники безопасности. B Передайте потребите...

Buderus Водонагреватели Инструкции