Страница 2 - Содержание
Содержание Logalux LTN/LF - Оставляем за собой право на изменения! 2 Содержание 1 Пояснения символов и указания по технике безопасности . . . . . . . . . . . . . . . . . . . . . . . . . . . . . . 3 1.1 Пояснения условных обозначений . . . . . . . . 3 1.2 Указания по технике безопасности . . . . . . ...
Страница 3 - Пояснения символов и указания по технике безопасности
1 Пояснения символов и указания по технике безопасности Logalux LTN/LF - Оставляем за собой право на изменения! 3 1 Пояснения символов и указания по технике безопасности 1.1 Пояснения условных обозначений Предупреждения Выделенные слова в начале предупреждения обозначают вид и степень тяжести послед...
Страница 4 - Вводный инструктаж потребителя
1 Пояснения символов и указания по технике безопасности Logalux LTN/LF - Оставляем за собой право на изменения! 4 Вводный инструктаж потребителя B Проинформируйте потребителя об использовании бака-водонагревателя и особенно обратите его внимание на правила техники безопасности. B Передайте потребите...
Страница 5 - Информация об оборудовании; Описание оборудования; Люк для чистки и контроля.; Баки-водонагреватели серии LF; Декларация о соответствии CE
2 Информация об оборудовании Logalux LTN/LF - Оставляем за собой право на изменения! 5 2 Информация об оборудовании 2.1 Описание оборудования Баки-водонагреватели серии Logalux LTN/LF поставляются как одинарные, сдвоенные и тройные баки. 2.1.1 Баки-водонагреватели серии LTN/LTH/LTD Имеются следующие...
Страница 6 - Технические характеристики; Подключения
2 Информация об оборудовании Logalux LTN/LF - Оставляем за собой право на изменения! 6 2.6 Технические характеристики 2.6.1 Подключения Рис. 1 Подключения LT/LF AW Выход горячей воды EK/EL Вход холодной воды/слив EZ Циркуляция IA 1 Первый инертный анод IA 2 2-ой инертный анод RS Обратная линия VS По...
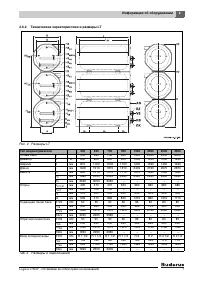
Страница 7 - Тип водонагревателя
2 Информация об оборудовании Logalux LTN/LF - Оставляем за собой право на изменения! 7 2.6.2 Технические характеристики и размеры LT Рис. 2 Размеры LT Тип водонагревателя 400 550 750 950 1500 2000 2500 3000 Объём бака л 400 550 750 950 1500 2000 2500 3000 Диаметр D Ø 650 800 800 900 1000 1250 1250 1...
Страница 10 - Температура; Горячая вода
2 Информация об оборудовании Logalux LTN/LF - Оставляем за собой право на изменения! 10 2.6.4 Границы применения/рабочие характеристики Вход циркуляционной линии Ø EZ DN R 1 1/4 R 1 1/4 R 1 1/4 R 1 1/4 R 1 1/2 R 1 1/2 R 2 R 2 H EZ мм 470 570 570 620 690 835 835 835 H2 EZ мм 1310 1590 1590 1740 1910 ...
Страница 11 - Предписания; Нормы и правила
3 Предписания Logalux LTN/LF - Оставляем за собой право на изменения! 11 3 Предписания Нормы и правила В зависимости от места эксплуатации (например, в различных странах и регионах) могут действовать дополнительные или другие требования (например, требования к подключению к сети). B При монтаже и эк...
Страница 13 - Транспортировка; Подъем бака краном; Подвесьте стропы на крюк крана.; опасность для жизни из-за
4 Транспортировка Logalux LTN/LF - Оставляем за собой право на изменения! 13 4 Транспортировка Баки-водонагреватели можно транспортировать грузоподъемной тележкой или краном. Подъем бака краном B Вставьте крюки строп [1] в две проушины. B Подвесьте стропы на крюк крана. B Плавно опускайте бак. Рис. ...
Страница 14 - Монтаж; Комплект поставки; в зависимости от типа до 3 баков, неупакованы; Установка оборудования; Помещение для установки котла; Рис. 5 Минимальные расстояния; Расстояние до стены; Таб. 6 Минимальные расстояния
5 Монтаж Logalux LTN/LF - Оставляем за собой право на изменения! 14 5 Монтаж 5.1 Комплект поставки Следующие узлы входят в комплект поставки бака-водонагревателя. Проверьте при получении оборудования комплектность поставки и наличие повреждений: • в зависимости от типа до 3 баков, неупакованы • тепл...
Страница 15 - Гидравлическое подключение; Рис. 6 Гидравлическая схема подключения бака
5 Монтаж Logalux LTN/LF - Оставляем за собой право на изменения! 15 5.3 Гидравлическое подключение Для предотвращения в дальнейшем повреждений выполняйте следующее: B В системах нагрева питьевой воды с пластмассовыми трубопроводами соединительные элементы должны быть обязательно металлическими. B Ис...
Страница 16 - Рис. 7 Гидравлическая схема подключения двух
5 Монтаж Logalux LTN/LF - Оставляем за собой право на изменения! 16 B Несколько водонагревателей соединяются как для горячей воды, так и для греющей воды параллельно по схеме Тихельманна ( Æ рис. 7). Рис. 7 Гидравлическая схема подключения двух водонагревателей 1 Запорный вентиль 2 Загрузочный насос...
Страница 17 - Проверка герметичности; Таб. 7 Размеры дренажной линии
5 Монтаж Logalux LTN/LF - Оставляем за собой право на изменения! 17 Предохранительный клапан (предоставляется заказчиком) B На предохранительном клапане установите предупреждающую табличку со следующей надписью: "Не перекрывать дренажную линию. Во время нагрева в целях безопасности может вытекат...
Страница 18 - Рис. 8 Маркировка частей теплоизоляции; Монтаж теплоизоляции по окружности; Рис. 9 Подготовка монтажа теплоизоляции
5 Монтаж Logalux LTN/LF - Оставляем за собой право на изменения! 18 5.4 Монтаж теплоизоляции, системы управления и нагревательных элементов Теплоизоляция состоит из пенопластовых сегментов по окружности, а также передней и задней части. Теплоизоляция бака ёмкостью 400 л состоит из двух сегментов по ...
Страница 19 - Рис. 10 Монтаж теплоизоляционных сегментов
5 Монтаж Logalux LTN/LF - Оставляем за собой право на изменения! 19 B Положите нижние теплоизоляционные сегменты А и В на рейки, наденьте вырезы на опоры и задвиньте сегменты под бак. Рис. 10 Монтаж теплоизоляционных сегментов А и В B Установите верхние теплоизоляционные сегменты на нижние и выровня...
Страница 20 - Сдвиньте фиксатор по стрелке «D».; Установка системы управления; Рис. 14 Установка системы управления
5 Монтаж Logalux LTN/LF - Оставляем за собой право на изменения! 20 Стяжка B Введите конец стяжной ленты по стрелке от «А» к «В». B Двигайте рычаг вперёд-назад. B Уложите рычаг по стрелке «C» - стяжная лента зажата. Разжатие B Сдвиньте фиксатор по стрелке «D». B Поверните рычаг по стрелке «C». B Вын...
Страница 21 - Аккуратно прокладывайте провода.; Рис. 17 Крепление системы управления; правом или левом теплоизоляционном сегменте.
5 Монтаж Logalux LTN/LF - Оставляем за собой право на изменения! 21 B Выполните электрические соединения в соответствии с электросхемой. B Аккуратно прокладывайте провода. B Закройте мягкой пенопластовой пробкой отверстие для проводов в теплоизоляции. B Подключите систему управления к электросети Ри...
Страница 23 - Рис. 21 Монтаж теплоизоляционных элементов
5 Монтаж Logalux LTN/LF - Оставляем за собой право на изменения! 23 B Расположите теплоизоляционные сегменты передней стенки так, чтобы их стык располагался вертикально. Рис. 21 Монтаж теплоизоляционных элементов передней стенки 1 Теплоизоляционный сегмент передней стенки «R» (правый) 2 Теплоизоляци...
Страница 24 - Рис. 24 Крепление тройного бака к полу
5 Монтаж Logalux LTN/LF - Оставляем за собой право на изменения! 24 5.4.5 Монтаж теплоизоляции, системы управления и нагревательных элементов на сдвоенных и тройных баках B У всех тройных баков для большей устойчивости каждая из четырёх опор крепится двумя болтами и гайками. B Закрепите каждую опору...
Страница 25 - Рис. 26 Маркировка теплоизоляционных
5 Монтаж Logalux LTN/LF - Оставляем за собой право на изменения! 25 B Смонтируйте теплоизоляцию с учётом маркировки. Рис. 26 Маркировка теплоизоляционных сегментов сдвоенных и тройных баков B Все остальные монтажные операции такие же, как и при монтаже одного бака.
Страница 26 - Пуск в эксплуатацию
6 Пуск в эксплуатацию Logalux LTN/LF - Оставляем за собой право на изменения! 26 6 Пуск в эксплуатацию Первый пуск в эксплуатацию должна проводить специализированная фирма. 6.1 Заполнение бака и проверка герметичности B Проверьте перед пуском в эксплуатацию герметичность всех подключений и соединени...
Страница 27 - водонагревателя
6 Пуск в эксплуатацию Logalux LTN/LF - Оставляем за собой право на изменения! 27 Рис. 27 Схема подключения бака- водонагревателя 1 Погружная гильза ограничителя температуры обратной линии 2 Погружная гильза термометра горячей воды 3 Запорный вентиль горячей воды 4 Вентиль регулирования температуры б...
Страница 28 - Выключение
7 Выключение Logalux LTN/LF - Оставляем за собой право на изменения! 28 7 Выключение 7.1 Прекращение работы бака-водонагревателя B Выключите отопительную установку ( Æ инструкция по эксплуатации системы управления и теплогенератора). 7.2 Выключение бака-водонагревателя при опасности замерзания B Вык...
Страница 29 - Управление; Система управления; Смонтируйте подвод холодной воды.
8 Управление Logalux LTN/LF - Оставляем за собой право на изменения! 29 8 Управление 8.1 Система управления B Пользуйтесь инструкцией по эксплуатации и монтажу системы управления. 8.2 Управление баками-водонагревателями, нагреваемыми паром B Нагреваемые паром баки-водонагреватели регулируются паровы...
Страница 30 - Техническое обслуживание и чистка; Чистка бака-водонагревателя; Удаление сильных отложений; Инертный анод
9 Техническое обслуживание и чистка Logalux LTN/LF - Оставляем за собой право на изменения! 30 9 Техническое обслуживание и чистка Мы рекомендуем регулярно поручать специалистам проводить проверку и чистку бака-водонагревателя в соответствии с таб. 8. Укажите на это лицам, эксплуатирующим установку....
Страница 31 - В таблице приведена; ориентировочная; °dH
9 Техническое обслуживание и чистка Logalux LTN/LF - Оставляем за собой право на изменения! 31 9.4 Интервалы проведения технического обслуживания В холодной воде содержатся различные растворённые вещества, в первую очередь известь. Именно от неё зависит жёсткость воды. Известь выпадает в осадок при ...
Страница 32 - Охрана окружающей среды/утилизация; Упаковка
10 Охрана окружающей среды/утилизация Logalux LTN/LF - Оставляем за собой право на изменения! 32 10 Охрана окружающей среды/утилизация Защита окружающей среды - это основной принцип деятельности предприятий группы Бош. Качество продукции, экономичность и охрана окружающей среды - это для нас равнозн...