Страница 2 - Содержание; Безопасность; Использование по назначению; Ограничение круга пользователей; ПРЕДУПРЕЖДЕНИЕ ‒ Опасность
ru Безопасность 2 Содержание РУКОВОДСТВО ПОЛЬЗОВАТЕЛЯ 1 Безопасность ..................................................... 2 2 Предотвращение материального ущерба ..... 5 3 Защита окружающей среды и экономия ...... 5 4 Режимы работы ................................................. 6 5 Знакомст...
Страница 4 - ПРЕДУПРЕЖДЕНИЕ ‒ Опасность ожога!; ПРЕДУПРЕЖДЕНИЕ ‒ Опасность:
ru Безопасность 4 ПРЕДУПРЕЖДЕНИЕ ‒ Опасность ожога! В процессе эксплуатации открытые для до- ступа части прибора сильно нагреваются. ▶ Не прикасайтесь к горячим частям прибора. ▶ Не подпускайте детей близко к прибору. Во время работы прибор сильно нагревает- ся. ▶ Перед очисткой дайте прибору остыт...
Страница 5 - Предотвращение материального ущерба; Утилизaция yпaкoвки
Предотвращение материального ущерба ru 5 ПРЕДУПРЕЖДЕНИЕ ‒ Опасность взрыва! Агрессивные едкие щелочные или кислотные чистящие средства вступают в реакцию с алюминиевыми деталями посудомоечной машины, что может привести к взрыву. ▶ Никогда не используйте агрессивные едкиещелочные или кислотные чистя...
Страница 6 - Режимы работы; Режим отвода воздуха
ru Режимы работы 6 При высокой интенсивности испарений заранее вы- бирайте режим работы вентилятора с повышенной мощностью. ¡ Неприятные запахи будут меньше распростра- няться по помещению. Выключите подсветку, если не предполагается ее дальнейшее использование. ¡ Когда освещение выключено, электро...
Страница 7 - Знакомство с прибором
Знакомство с прибором ru 7 5 Знакомство с прибором 5.1 Панель управления, вариант 1 Настроить все функции прибора и получить информацию о его рабочем состоянии можно через панель управле- ния. Включение или выключение прибораНастройка режимов вентилятораВключение или выключение инерционной фазы ве...
Страница 8 - Перед первым использованием
ru Перед первым использованием 8 5.3 Дисплей На дисплее отображаются актуальные установочные значения. Индикация насыщения жироулавливаю- щего фильтра Индикация насыщения фильтра для уда- ления запаха - Режимы вентилятораПродолжительность инерционной фазы вентилятора / Интенсивные режимы 1 / 2Home ...
Страница 9 - Сброс индикации насыщения: вариант 1; Сброс индикации насыщения: вариант 2
Стандартное управление ru 9 7.10 Выключение автоматического режима 1 ▶ Нажмите . a Вентилятор автоматически выключается, если дат- чик не обнаружил изменения качества воздуха в помещении. a Максимальная продолжительность работы в авто- матическом режиме составляет 4 часа. 7.11 Чувствительность сен...
Страница 10 - Установка индикации насыщения; Home Connect; Настройка Home Connect; Сброс подключения
ru Home Connect 10 7.21 Установка индикации насыщения Индикатор насыщения должен быть отрегулирован в соответствии с используемым фильтром. Требование: Прибор выключен. 1. Нажмите и удерживайте . ‒ Чтобы перейти в режим циркуляции (нерегене- рируемый фильтр), измените индикатор с помо- щью поворо...
Страница 11 - Дистанционная диагностика; Управление вытяжкой, расположенное на варочной панели; 0 Очистка и уход; Чистящие средства
Управление вытяжкой, расположенное на варочной панели ru 11 находитесь в домашней сети WLAN (Wi-Fi). Об успеш- ном окончании установки вы получите информацию через приложение Home Connect. Примечания ¡ Обновление ПО выполняется в два этапа. – На первом этапе выполняется загрузка ПО. – На втором эта...
Страница 14 - 1 Устранение неисправностей
ru Устранение неисправностей 14 3. Если жироулавливающий фильтр установлен не- правильно, осторожно сдвиньте фиксатор вперед, снимите жироулавливающий фильтр и вставьте его правильно. 11 Устранение неисправностей Вы можете самостоятельно устранить незначитель- ные неисправности вашего прибора. Вос...
Страница 15 - 2 Утилизация; Утилизaция cтapoгo бытового; 3 Сервисная служба
Утилизация ru 15 Неисправность Причина и устранение неисправностей Система управления вытяжкой на вароч- ной панели не рабо- тает надлежащим образом. Вероятно, потребуется изменить настройки. ▶ Ознакомьтесь с руководством по эксплуатации варочной панели. ▶ Зайдите на www.home-connect.com. 12 Утили...
Страница 16 - 5 Сертификат соответствия
ru Сертификат соответствия 16 Принадлежности Номер для заказа Набор для режима цир- куляции воздуха Standard (прямая вытяжка) DWZ0AF0U0 Набор для режима цир- куляции воздуха Standard с вытяжной трубой (пря- мая вытяжка) DWZ0AF0T0 Фильтр для удаления запаха Standard (смен- ный, прямая вытяжка) DWZ0A...
Страница 17 - 6 Инструкция по монтажу; Безопасные расстояния
Инструкция по монтажу ru 17 BE BG CZ DK DE EE IE EL ES FR HR IT CY LI LV LT LU HU MT NL AT PL PT RO SI SK FI SE NO CH TR IS UK (NI) 5 ГГц WLAN (Wi-Fi): только для использования в помещениях. AL BA MD ME MK RS UK UA 5 ГГц WLAN (Wi-Fi): только для использования в помещениях. 16 Инструкция по монтажу...
Страница 18 - Безопасность при монтаже
ru Инструкция по монтажу 18 16.4 Безопасность при монтаже При установке прибора соблюдайте данныеуказания по технике безопасности. ПРЕДУПРЕЖДЕНИЕ ‒ Опасность отравления! Втянутые обратно в помещение отработав- шие газы могут стать причиной отравления. Источники пламени с подводом воздуха из помеще...
Страница 20 - При неквалифицированном ремонте прибор; Рекомендации по установке
ru Инструкция по монтажу 20 При неквалифицированном ремонте прибор может стать источником опасности. ▶ Ремонтировать прибор разрешается толькоквалифицированным специалистам. ▶ Для ремонта прибора можно использоватьтолько оригинальные запчасти. ▶ Если сетевой кабель прибора будет повре-жден, он долж...
Страница 21 - Указания при любом варианте; Проверка стены
Инструкция по монтажу ru 21 16.8 Указания при любом варианте установки ¡ Установите данный прибор на стене кухни. ¡ При установке дополнительных специальных при- надлежностей следуйте прилагаемым инструкциям по установке. ¡ Прибор может быть установлен только на одной стороне прямо возле шкафа-коло...
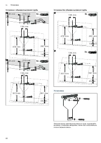
Страница 22 - Установка креплений прибора
ru Инструкция по монтажу 22 Вариант B: Наклонная вытяжка без вытяжной трубы Установка креплений прибора 1. Прикрутите вручную крепления вытяжки. 2. Выровняйте крепления прибора по горизонтали с помощью уровня и затяните. Установка прибора 1. Снимите защитную пленку с задней стороны. ‒ После установ...
Страница 24 - • Expert tips & tricks for your appliance; Благодарим за выбор; Зарегистрируйте свой новый прибор на; Нужна помощь; Bosch; BSH Hausgeräte GmbH
Thank you for buying a Bosch Home Appliance! Register your new device on MyBosch now and profit directly from: • Expert tips & tricks for your appliance • Warranty extension options • Discounts for accessories & spare-parts • Digital manual and all appliance data at hand • Easy access to Bos...