Страница 2 - Содержание; Безопасность; Использование по назначению; для отсасывания кухонных испарений.; Ограничение круга пользователей; ПРЕДУПРЕЖДЕНИЕ ‒ Опасность; ПРЕДУПРЕЖДЕНИЕ ‒ Опасность
ru Безопасность 2 Содержание РУКОВОДСТВО ПОЛЬЗОВАТЕЛЯ 1 Безопасность ...................................................... 2 2 Предотвращение материального ущерба ...... 4 3 Защита окружающей среды и экономия ....... 4 4 Режимы работы .................................................. 5 5 Знак...
Страница 3 - Не прикасайтесь к горячим частям прибора.; Не ставьте предметы на прибор.
Безопасность ru 3 или вентиляции начнут всасываться обратно в жилое помещение. ▶ Всегда обеспечивайте достаточный притоквоздуха, если в одном помещении с ками-ном или печью, для которых требуется при-ток воздуха из помещения, одновременноработает прибор в режиме отвода воздуха. ▶ Безопасным для экс...
Страница 4 - Плавно откройте крышку фильтра.; Предотвращение материального ущерба; Утилизaция yпaкoвки
ru Предотвращение материального ущерба 4 Крышка фильтра может вибрировать. ▶ Плавно откройте крышку фильтра. ▶ После открывания закрепите крышкуфильтра так, чтобы она больше не вибриро-вала. ▶ Плавно закройте крышку фильтра. Опасность травмирования при открывании и закрывании петель. ▶ Не дотрагива...
Страница 5 - Режимы работы; Режим отвода воздуха
Режимы работы ru 5 Настройте режим работы вентилятора в зависимо- сти от интенсивности испарений. ¡ Режим работы вентилятора с пониженной мощно- стью способствует снижению расхода электро- энергии. Включайте интенсивный режим только при необ- ходимости. При высокой интенсивности испарений заранее в...
Страница 6 - Знакомство с прибором
ru Знакомство с прибором 6 5 Знакомство с прибором 5.1 Элементы управления Настроить все функции прибора и получить информа- цию о его рабочем состоянии можно через панель управления. Включите режим вентилятора 1. Включите режим вентилятора 2. Включение режима работы вентилятора 3 или интенс...
Страница 7 - Выключение инерционной фазы; Характеристики лампочки; Выключение подсветки; Очистка и уход; Чистящее средство
Очистка и уход ru 7 7.7 Выключение инерционной фазы вентилятора ▶ Нажмите , или . a Вентилятор продолжает работать в установленном режиме и не выключается автоматически. 7.8 Включение подсветки Подсветку можно включать и выключать независимо от системы вентиляции. ▶ Нажмите . Характеристики лампо...
Страница 9 - Установка жироулавливающего; Снятие поглотителя запахов; Устранение неисправностей
Устранение неисправностей ru 9 8.7 Установка жироулавливающего фильтра ВНИМАНИЕ! При падении жироулавливающий фильтр может по- вредить варочную панель. ▶ Придерживайте жироулавливающий фильтр снизу рукой. 1. Вставьте жироулавливающий фильтр. 2. Прижмите жироулавливающий фильтр к верху и защёлкните ...
Страница 10 - 0 Утилизация; Утилизaция cтapoгo бытового; 1 Сервисная служба
ru Утилизация 10 10 Утилизация Здесь приведены указания по надлежащей утилиза- ции старых бытовых приборов. 10.1 Утилизaция cтapoгo бытового прибора Утилизация в соответствии с экологическими норма- ми обеспечивает возможность вторичного использо- вания ценных сырьевых материалов. ▶ Утилизируйте п...
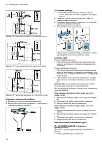
Страница 11 - Комплект поставки; Безопасные расстояния; Безопасность при монтаже
Инструкция по монтажу ru 11 12.1 Комплект поставки После распаковки проверьте все детали на отсут- ствие транспортных повреждений, а также комплект- ность поставки. 12.2 Размеры прибора Здесь приведены размеры прибора 12.3 Безопасные расстояния Соблюдайте безопасные расстояния для вашего при- бора....
Страница 12 - Используйте защитные перчатки.
ru Инструкция по монтажу 12 давления не более чем на 4 Па (0,04 мбар).Это может быть достигнуто, если необходи-мый для сжигания воздух будет поступатьчерез незакрывающиеся отверстия, напри-мер, в дверях, окнах, с помощью стеновогокороба системы притока/отвода воздуха илииных технических мер. Только...
Страница 13 - Указания по подключению к; Указания при любом варианте
Инструкция по монтажу ru 13 Изменение механической или электрической конструкции может стать источником опас- ности и привести к выходу прибора из строя. ▶ Изменение механической или электриче-ской конструкции запрещено. Крышка фильтра может вибрировать. ▶ Плавно откройте крышку фильтра. ▶ После от...
Страница 14 - Плоские воздуховоды; Указания для режима отвода; Указания для режима циркуляции; Проверка стены
ru Инструкция по монтажу 14 ¡ Длинные шероховатые вытяжные трубы, большое количество колен или трубы малого диаметра уменьшают мощность вытяжки и увеличивают шум от работы вентилятора. ¡ Используйте вытяжные трубы из невоспламеняю- щихся материалов. ¡ Чтобы предотвратить возврат конденсата, устано-...
Страница 16 - Демонтаж прибора
ru Инструкция по монтажу 16 3. Установите нижнюю секцию обшивки вытяжной трубы. ‒ Немного разведите боковины, подвесьте на верхнюю секцию и сожмите. ‒ Установите секции обшивки вытяжной трубы на прибор и зафиксируйте по бокам на крепежных уголках. Чтобы защитить поверхности от царапин, положите на ...
Страница 20 - Register your new device on MyBosch now and profit directly from:; • Expert tips & tricks for your appliance; Free and easy registration – also on mobile phones:; Благодарим за выбор; Зарегистрируйте свой новый прибор на; Нужна помощь; Bosch; Robert Bosch Hausgeräte GmbH; GERMANY
Thank you for buying a Bosch Home Appliance! Register your new device on MyBosch now and profit directly from: • Expert tips & tricks for your appliance • Warranty extension options • Discounts for accessories & spare-parts • Digital manual and all appliance data at hand • Easy access to Bos...