Baxi SLIM UB 120 INOX KSW71408791 - инструкции и руководства
Водонагреватель Baxi SLIM UB 120 INOX KSW71408791 - инструкции пользователя по применению, эксплуатации и установке на русском языке читайте онлайн в формате pdf
Инструкции:
Инструкция по эксплуатации Baxi SLIM UB 120 INOX KSW71408791
1
2
3
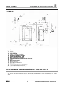
4
5
6
7
8
9
10
11
12
13
14
15
16
Baxi Водонагреватели Инструкции
-
Baxi SAG2 300 T
Инструкция по эксплуатации
-
Baxi SAG2 50-80-100
Инструкция по эксплуатации
-
Baxi SAG3 115 T A7116720
Инструкция по эксплуатации
-
Baxi SAG3 115T / 150T / 190T
Инструкция по эксплуатации
-
Baxi SAG3 300 T
Инструкция по эксплуатации
-
Baxi SAG3 50 / 80 / 100
Инструкция по эксплуатации
-
Baxi UBVT 200...400 SC_200...500 DC
Инструкция по эксплуатации
-
Baxi Premier plus 200
Инструкция по эксплуатации
-
Baxi Premier plus 150
Инструкция по эксплуатации
-
Baxi Combi 80
Инструкция по эксплуатации
-
Baxi COMBI 80+ 7113493
Инструкция по эксплуатации
-
Baxi PREMIER PLUS 100 95805093
Инструкция по эксплуатации
-
Baxi PREMIER PLUS 150 95805094
Инструкция по эксплуатации
-
Baxi PREMIER PLUS 200 95805095
Инструкция по эксплуатации
-
Baxi PREMIER PLUS 300 95805096
Инструкция по эксплуатации
-
Baxi SAG-3 100 стандарт A7116719
Инструкция по эксплуатации
-
Baxi SAG-3 115 T 7116720
Инструкция по эксплуатации
-
Baxi SAG-3 190 T A7116722
Инструкция по эксплуатации
-
Baxi SAG-3 50 7116717
Инструкция по эксплуатации
-
Baxi SIG-2 11p 7219086
Инструкция по эксплуатации