AUX ASW-H18A4/DE-R1DI - инструкции и руководства

Кондиционер AUX ASW-H18A4/DE-R1DI - инструкции пользователя по применению, эксплуатации и установке на русском языке читайте онлайн в формате pdf

1 Page 1
2 Page 2
3 Page 3
4 Page 4
5 Page 5
6 Page 6
7 Page 7
8 Page 8
9 Page 9
10 Page 10
11 Page 11
12 Page 12
13 Page 13
14 Page 14
15 Page 15
16 Page 16
17 Page 17
18 Page 18
19 Page 19
20 Page 20
21 Page 21
22 Page 22
23 Page 23
24 Page 24
25 Page 25
26 Page 26

Краткое содержание

Страница 2 - Содержание

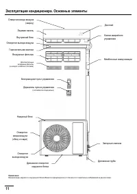
  Содержание Комплект поставки и монтажная схема . 01 Установка кондиционера . Меры предосторожности . 02 Установка кондиционера . 04 Эксплуатация кондиционера . Меры предосторожности . 09 Эксплуатация кондиционера . Основные элементы . 11 Эксплуатация кондиционера . Пульт дистанционного управления ...

Страница 14 - SLEEP

  Эксплуатация кондиционера . Пульт дистанционного управления 12 Пульт дистанционного управления Сторона излучателя сигнала 1   2     3 4     5   9   6   7   8 10     13     12   14   16   15   17 11    Представленное  изображение  относится  к  стандартному  пульту  ди - станционного  управления , ...

Страница 15 - TURBO

  Эксплуатация кондиционера . Пульт дистанционного управления При выключения кондиционера или повторном нажатии на кнопку режим будет выключен . 7. Кнопка iCLEAN ( Очистка ). Нажатие на кнопку при выключенном кондиционере , включает режим очистки внутреннего блока , на дисплее пульта высвечивается и...

AUX Кондиционеры Инструкции