Страница 40 - Для пользователя и специалиста; Описание устройства; Ручка настройки температуры; Указания по технике безопасности; Руководство по применению
40 Для пользователя и специалиста 1.1 Описание устройства Проточный водонагреватель DDLE Basis нагревает воду в то время, как она протекает через устройство. Температуру горячей воды на выходе можно настраивать плавно в диапазоне примерно от 30 до 60°C с помощью кнопки регулировки температуры. Начин...
Страница 41 - Продуктивность нагрева горячей воды
41 Для пользователя и специалиста 1.5 Продуктивность нагрева горячей воды В зависимости от времени года при разных температурах холодной воды получается следующее максимальное количество смешанной воды или воды на выходе (см. таблицу 1): ϑ 1 – температура подачи холодной воды ϑ 2 – температура смеша...
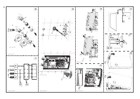
Страница 42 - Арматура; Предписания и нормы; Для специалиста; Инструкция по монтажу
42 Установка и подключение к электросети должны выполняться специалистом с соблюдением настоящей инструкции по монтажу. 2.1 Конструкция устройства A – O 1 Ручка настройки температуры 16 Датчик расхода 2 Колпак устройства 17 Штекер настройки температуры на «T-заданное» 3 Нижняя часть задней стенки 18...
Страница 43 - – Материал линии подачи холодной воды:
43 Для специалиста • Следует соблюдать национальные нормы и предписания относительно водопровода и подключения к электросети, например, DIN VDE 0100, DIN 1988, DIN 4109, DIN 44851. • Соблюдайте положения местного энергоснабжающего и ответственного водоснабжающего предприятия. • Соблюдайте данные зав...
Страница 44 - Переставить кодирующий штекер; Стандартный монтаж; для специалиста
44 Для специалиста 3.1 Общие указания по монтажу Устройство на заводе подготовлено для подключения UP сверху (под штукатуркой) (см. рис. C - I ): • Возможен монтаж устройства над и под столом . C . • Подсоединение воды - Под штукатуркой - Резьбовое соединение. • Электрическое соединение под штукатур...
Страница 46 - Альтернативные варианты монтажа показаны на рисунках; Альтернативные варианты монтажа
46 Для специалиста Альтернативные варианты монтажа показаны на рисунках J - O . 4.1 Электромонтаж – UP – внизу K a Провести наконечник кабеля через кабель подключения к электросети. b Выдавите размеченный фрагмент для вставки наконечника кабеля в задней стенке. c Переместить клеммник сверху вниз, дл...
Страница 47 - Технические данные и области применения; Технические данные; Области применения
47 Таблица 3 Монтаж колпака: Подвесить колпак устройства сверху, опустить внизу на заднюю стенку и зафиксировать со слышимым щелчком. Проверьте прочность посадки колпака устройства на задней стенке. 5. Технические данные и области применения для специалиста 5.1 Технические данные (действительными сч...
Страница 48 - пользователем; Устранение неполадок; специалистом
48 Возможности индикации светодиодной лампочки красный светится при неполадке желтый светится при нагреве зеленый мигание: устройство подключено к сети Неполадка / показания лампочки диагностики* Причина Устранение Расход слишком низкий. Душевая головка / аэраторы обызвествлены Загрязнение Выполнить...
Страница 49 - Специальные принадлежности
49 Для специалиста • Арматура с прямыми цапфами для проточных водонагревателей ADEo 70 WD - однорычажный смеситель с переключением «ванна / душ» № для заказа 18 39 34 • Принадлежности для монтажа Набор для монтажа под столом набора труб UT 104 № для заказа 18 44 21 Водопроводные соединения с соедине...
Страница 50 - Сервисная служба и гарантия; Гарантия
50 Сервисная служба и гарантия Гарантия Условия и порядок гарантийного обслуживания определяются отдельно для каждой страны. За информацией о гарантии и гарантийном обслуживании обратитесь пожалуйста в представительство AEG в Вашей стране. ! Монтаж прибора, первый ввод в эксплуатацию и обслуживание ...
Страница 51 - Защита окружающей среды и утилизация; Medio ambiente y reciclaje
51 Защита окружающей среды и утилизация Medio ambiente y reciclaje Eliminación de aparatos viejos No tirar los aparatos que lleven esta identificación junto con la basura no clasificada. Se deben recoger y eliminar de forma especial. La eliminación de aparatos viejos se debe realizar de forma adecua...