Baxi SLIM UB 80-120 INOX - Инструкция по эксплуатации

Baxi SLIM UB 80-120 INOX

Водонагреватель Baxi SLIM UB 80-120 INOX - инструкция пользователя по применению, эксплуатации и установке на русском языке. Мы надеемся, она поможет вам решить возникшие у вас вопросы при эксплуатации техники.

Если остались дополнительные вопросы — свяжитесь с нами через контактную форму.

1 Страница 1
2 Страница 2
3 Страница 3
4 Страница 4
5 Страница 5
6 Страница 6
7 Страница 7
8 Страница 8
9 Страница 9
10 Страница 10
11 Страница 11
12 Страница 12
13 Страница 13
14 Страница 14
15 Страница 15
16 Страница 16
Страница: / 16
Загрузка инструкции








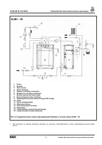
SLIM




BAXI S.p.A.

-

(

,

,

).

CSQ,

UNI EN ISO 9001.

,

UNI EN ISO

9001,

.

UNI EN ISO 9001

.

,

BAXI S.p.A.

Bassano del Grappa (

),

,

.

"Загрузка инструкции" означает, что нужно подождать пока файл загрузится и можно будет его читать онлайн. Некоторые инструкции очень большие и время их появления зависит от вашей скорости интернета.

Другие инструкции для Baxi SLIM UB 80-120 INOX

Характеристики

Другие модели - Водонагреватели Baxi

Все водонагреватели Baxi