Страница 3 - Уважаемый покупатель!; При покупке котла проверьте:; С уважением, АО «Армавирский завод газовой аппаратуры».; способностями или при отсутствии у них жизненного опыта.
Уважаемый покупатель! Благодарим Вас за то, что Вы отдали предпочтение нашему изделию. Вы приобрели двухконтурный настенный газовый отопительный котел с принудительной циркуляцией теплоносителя с закрытой камерой сгорания. При покупке котла проверьте: комплектность поставки (см. раздел 21, стр. 28...
Страница 4 - СОДЕРЖАНИЕ
Руководство для пользователя и технического специалиста 2 СОДЕРЖАНИЕ 1 МЕРЫ БЕЗОПАСНОСТИ ................................................................................................................................................... 3 2 ТЕХНИЧЕСКОЕ ОПИСАНИЕ .........................................
Страница 5 - ОПИСАНИЕ СИМВОЛОВ; ОПАСНОСТЬ; МЕРЫ БЕЗОПАСНОСТИ
Руководство для пользователя и технического специалиста 3 ОПИСАНИЕ СИМВОЛОВ ОПАСНОСТЬ Риск повреждения или неисправности при работе оборудования. Соблюдать повышенную осторожность и выполнять предупреждения о возможном риске для людей. ВНИМАНИЕ Предупреждение об опасности причинения физического или ...
Страница 6 - ТЕХНИЧЕСКОЕ ОПИСАНИЕ; Назначение котла
Руководство для пользователя и технического специалиста 4 2 ТЕХНИЧЕСКОЕ ОПИСАНИЕ 2.1 Назначение котла Котлы отопительные газовые настенные двухконтурные с принудительной циркуляцией теплоносителя с закрытой камерой сгорания «BaltGaz 24 Turbo S («БалтГаз 24 Турбо ЭC), «BaltGaz 21 Turbo S («БалтГаз 21...
Страница 7 - Габаритные и присоединительные размеры
Руководство для пользователя и технического специалиста 5 Габаритные размеры: высота × ширина × глубина мм 700 × 420 × 270 Масса нетто/ Масса брутто, не более кг 28,5 / 31,0 Вход газа дюйм G3/4 Вход и выход контура отопления дюйм G3/4 Вход и выход контура горячего водоснабжения дюйм G1/2 Отверстие с...
Страница 8 - РУКОВОДСТВО ПОЛЬЗОВАТЕЛЯ; Управление работой котла; Обозначение кнопки
Руководство для пользователя и технического специалиста 6 3 РУКОВОДСТВО ПОЛЬЗОВАТЕЛЯ 3.1 Управление работой котла Основным управляющим элементом котла является плата электронная, которая контролирует всю работу котла. Микропроцессор платы электронной собирает и обрабатывает сигналы датчиков управлен...
Страница 9 - Режимы работы котла; Дополнительные функции
Руководство для пользователя и технического специалиста 7 3.2 Режимы работы котла Котёл может работать в следующих режимах: режим ожидания; режим «лето»; режим «зима». При подключении котла к сети электропитания, он автоматически запускается том режиме работы, в котором находился в момент откл...
Страница 10 - ОБСЛУЖИВАНИЕ КОТЛА; Осмотр; ВНИМАНИЕ
Руководство для пользователя и технического специалиста 8 Рис. 3 График зависимости температуры в контуре отопления от внешней температуры при комнатной температуре 20 °С 4 ОБСЛУЖИВАНИЕ КОТЛА Для обеспечения длительной и безотказной работы котла и сохранения его рабочих характеристик необходимо регу...
Страница 11 - Операции, выполняемые при техническом обслуживании; ПРАВИЛА ХРАНЕНИЯ И ТРАНСПОРТИРОВАНИЯ
Руководство для пользователя и технического специалиста 9 4.3 Операции, выполняемые при техническом обслуживании При техническом обслуживании выполняются следующие работы: чистка горелки; чистка теплообменника от сажи и чистка (промывка) труб теплообменника от накипи (при необходимости); замен...
Страница 12 - ОБЩИЕ ТРЕБОВАНИЯ; Система ГВС; Новая система отопления; Подбор дополнительного расширительного бака
Руководство технического специалиста 10 6 ОБЩИЕ ТРЕБОВАНИЯ Монтаж, техобслуживание и первый пуск газовых установок бытового назначения должны производиться согласно действующим нормам и правилам, а именно: • СНиП II−35−76 «Котельные установки»; • СП 62.13330.2011 «Газораспределительные системы. Акту...
Страница 13 - МОНТАЖ; Крепление котла на стене
Руководство для технического специалиста 11 8 МОНТАЖ КОТЛА 8.1 Крепление котла на стене Котел необходимо устанавливать на кухнях, в коридорах или других нежилых отапливаемых помещениях в соответствии с проектом газификации, сводами правил СП 62.13330.2011, СП 41−108−2004, СНиП 41−01−2003, СП 7.131...
Страница 14 - Подсоединение котла к электросети; МОНТАЖ ДЫМООТВОДА
Руководство технического специалиста 12 ВНИМАНИЕ! Использование редукторов с давлением стабилизации, отличающемся от 2,9 кПа запрещается. Длина шланга для подключения котла должна быть не более 1,5 м, внутренний диаметр - не менее 12 мм. Шланг для подвода газа должен быть стойким к подводимому газ...
Страница 15 - Монтаж коаксиального дымоотвода
Руководство для технического специалиста 13 9.1 Монтаж коаксиального дымоотвода Схема присоединения коаксиального дымохода Ø 100 / Ø 60 (мм) к котлу, установки диафрагмы и максимально допустимая длина трубы представлена на рисунке 4. При использовании коаксиальных труб необходимо дополнительно учиты...
Страница 16 - Требования к качеству теплоносителя; Требования к качеству воды; Заполнение контура отопления и предпусковые проверки
Руководство технического специалиста 14 10 ВВОД КОТЛА В ЭКСПЛУАТАЦИЮ (ПЕРВЫЙ ПУСК) 10.1 Требования к качеству теплоносителя 10.1.1 Требования к качеству воды В качестве теплоносителя в системе отопления необходимо использовать воду. Допускается использование в качестве теплоносителя антифриза Качест...
Страница 17 - Проверка параметров горения; Подключение комнатного термостата
Руководство для технического специалиста 15 вид потребляемого газа (должен соответствовать виду газа, указанному в данном Руководстве на котел и табличке на нем); отсутствие утечки газа; открыт ли клапан отвода воздуха на циркуляционном насосе; открыты ли запорные краны на прямой и обратной ...
Страница 18 - Выключение котла; РЕГУЛИРОВКА МОЩНОСТИ КОТЛА; Подготовка к работе
Руководство технического специалиста 16 датчика поставляется в комплекте с ним. Необходимо проконтролировать, чтобы в разъеме комнатного термостата на контактах 3 и 4 была установлена перемычка. В случае совместного подключения к котлу пульта управления и внешнего датчика необходимо удалить из разъе...
Страница 19 - Модель котла; ПЕРЕВОД КОТЛА НА ДРУГОЙ ВИД ГАЗА; Регулировка минимальной мощности
Руководство для технического специалиста 17 После регулировки номинального давления газа необходимо войти в режим программирования (см. п. 13.3) и для котлов «BaltGaz 24 Turbo S», «BaltGaz 21 Turbo S», «BaltGaz 18 Turbo S», «BaltGaz 14 Turbo S», «BaltGaz 11 Turbo S» и «BaltGaz 10 Turbo S » установит...
Страница 20 - ФУНКЦИОНАЛЬНАЯ СХЕМА И УПРАВЛЕНИЕ РАБОТОЙ КОТЛА; Функциональная схема котла
Руководство технического специалиста 18 13 ФУНКЦИОНАЛЬНАЯ СХЕМА И УПРАВЛЕНИЕ РАБОТОЙ КОТЛА 13.1 Функциональная схема котла Функциональная схема котла приведена на рисунке 8. 1 - газоотводящее устройство; 2 - теплообменник; 3 - теплообменник вторичный; 4 - блок горелочный (горелка); 5 - свеча розжига...
Страница 21 - Основные компоненты котла
Руководство для технического специалиста 19 13.2 Основные компоненты котла Устройство Назначение Система управления Плата электронная Управление работой котла и обеспечение безопасности при возникновении аварийных ситуаций Электропроводка Комплект проводов для соединения платы электронной с датчикам...
Страница 22 - Сервисные функции; Функция программирования параметров; Параметр; Функция «тест»; Логика работы котла
Руководство технического специалиста 20 13.3 Сервисные функции 13.3.1 Функция программирования параметров Перечень параметров, назначение и значения приведены в таблице 8. Таблица 8 Параметр Назначение параметра Диапазон значений параметра Р1 компенсация внешнего датчика температуры 0 ÷ 1 Р2 коэффиц...
Страница 23 - Работа котла в режиме «зима» (запрос отопление); Работа котла в режиме «лето» (запрос ГВС)
Руководство для технического специалиста 21 13.4.1 Работа котла в режиме «зима» (запрос отопление) 1) плата электронная проверяет положение трехходового клапана; 2) если клапан трехходовой находится в положении, соответствующем ГВС, то плата подает напряжение на его электродвигатель. Электродвигател...
Страница 24 - ПОИСК И УСТРАНЕНИЕ НЕИСПРАВНОСТЕЙ; Коды ошибок; Код
Руководство для пользователя и технического специалиста 22 14 ПОИСК И УСТРАНЕНИЕ НЕИСПРАВНОСТЕЙ 14.1 Коды ошибок Остановка работы котла, вызванная отказом или неправильной работой какой-либо из его систем, сопровождается миганием на дисплее панели управления котла (см. п. 3.1, стр. 6) соответствующе...
Страница 26 - Прочие неисправности; Неисправность
Руководство для пользователя и технического специалиста 24 14.2 Прочие неисправности Неисправности, не имеющие кода ошибки, отображаемого на дисплее панели управления котла (см. п. 3.1 стр. 6), представлены в таблице 11. Таблица 11 Неисправность Причина неисправности Устранение неисправности Котел н...
Страница 27 - СДАЧА КОТЛА ПОТРЕБИТЕЛЮ
Руководство для технического специалиста 25 15 СДАЧА КОТЛА ПОТРЕБИТЕЛЮ После монтажа котла специалист сервисной организации обязан проверить работу котла при минимальной и номинальной мощности на всех режимах (см. раздел 11, стр. 16). В обязательном порядке должен быть настроен регулятор подачи газа...
Страница 28 - ГАРАНТИЙНЫЕ ОБЯЗАТЕЛЬСТВА; АО «Армавирский завод газовой аппаратуры»,; Телефон Службы технической поддержки
Руководство для пользователя и технического специалиста 26 17 ГАРАНТИЙНЫЕ ОБЯЗАТЕЛЬСТВА В случае самостоятельной установки котла потребителем или иным лицом, не являющимся работником специализированной сервисной организации, гарантийный срок не устанавливается Предприятие-изготовитель (предприятие) ...
Страница 29 - ПРОВЕРЕНО НА
Руководство для пользователя и технического специалиста 27 18 СВИДЕТЕЛЬСТВО О ПРИЕМКЕ Котел отопительный настенный двухконтурный с принудительной циркуляцией теплоносителя « BaltGaz 24 Turbo S » « BaltGaz 21 Turbo S » « BaltGaz 18 Turbo S » « BaltGaz 14 Turbo S » « BaltGaz 11 Turbo S » «...
Страница 30 - КОМПЛЕКТ ПОСТАВКИ
Руководство для пользователя и технического специалиста 28 За _____ год Работник _________________ ______________ “____”__________ 20___ г. Штамп организации (Фамилия И.О.) (подпись) (дата) За _____ год Работник _________________ ______________ “____”__________ 20___ г. Штамп организации (Фамилия И....
Страница 31 - ПРИЛОЖЕНИЕ; УКАЗАНИЯ ПО ПОДБОРУ РАСШИРИТЕЛЬНОГО МЕМБРАННОГО БАКА
Руководство для технического специалиста 29 ПРИЛОЖЕНИЕ I УКАЗАНИЯ ПО ПОДБОРУ РАСШИРИТЕЛЬНОГО МЕМБРАННОГО БАКА Подбор расширительного мембранного бака в случае использования в качестве теплоносителя воды В случае подключения котла к системе отопления объемом более 70 литров, необходимо установить доп...
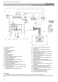
Страница 32 - ПРИЛОЖЕНИЕ II; СХЕМА ЭЛЕКТРИЧЕСКИХ СОЕДИНЕНИЙ КОТЛА
Руководство для технического специалиста 30 ПРИЛОЖЕНИЕ II СХЕМА ЭЛЕКТРИЧЕСКИХ СОЕДИНЕНИЙ КОТЛА Обозначение расцветки проводов с - синий; ж/з - желто- зеленый; кор - коричневый; кр - красный; бел - белый; ч - черный. 1 - регулятор подачи газа; 2 - вентилятор; 3 - насос; 4 - трансформатор розжига; 5 -...