Автомобили Subaru Forester 2007 - инструкция пользователя по применению, эксплуатации и установке на русском языке. Мы надеемся, она поможет вам решить возникшие у вас вопросы при эксплуатации техники.
Если остались вопросы, задайте их в комментариях после инструкции.
"Загружаем инструкцию", означает, что нужно подождать пока файл загрузится и можно будет его читать онлайн. Некоторые инструкции очень большие и время их появления зависит от вашей скорости интернета.

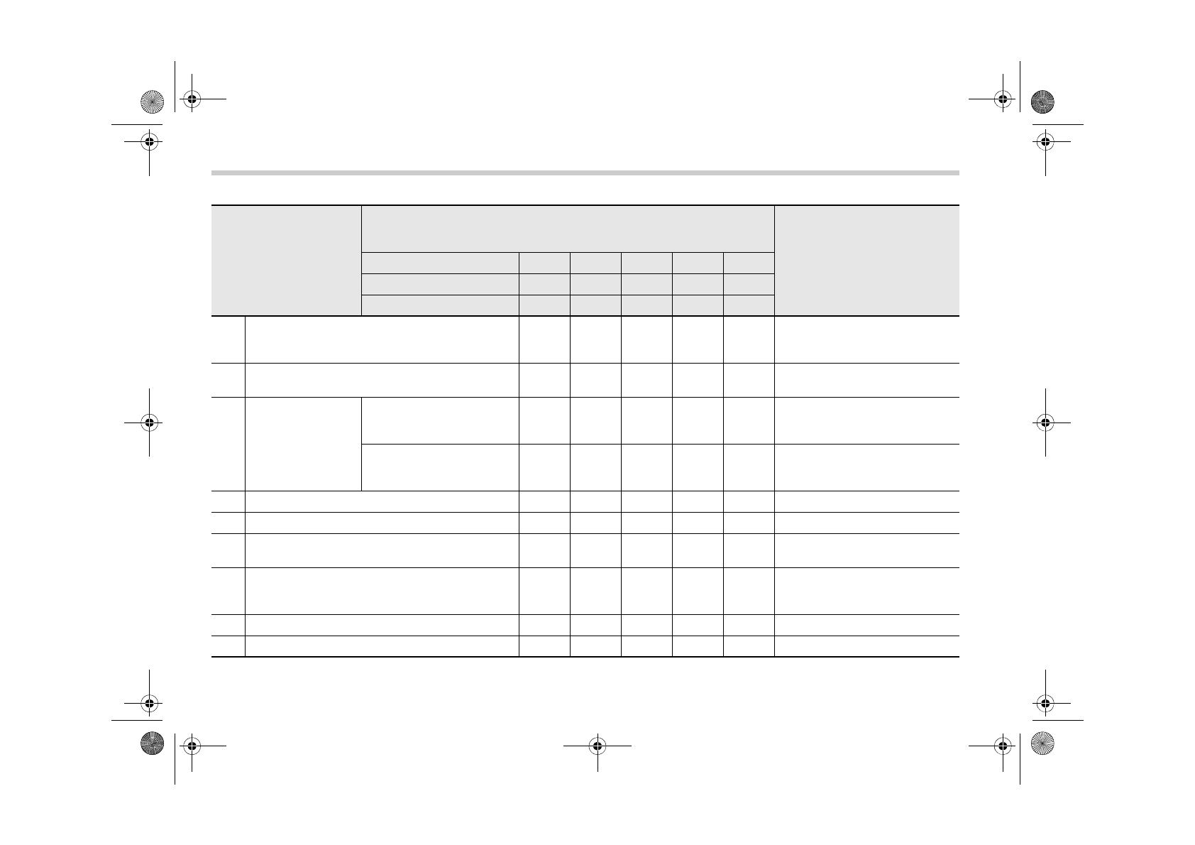
11-8
Техническое
обслуживание
и
ремонт
5
Замена
охлаждающей
жидкости
двигателя
и
про
-
верка
состояния
системы
охлаждения
,
патрубков
и
соединений
P
P
6
Топливная
система
,
топливопроводы
и
соедине
-
ния
I
I
См
.
ПРИМЕЧАНИЕ
3)
7
Топливный
фильтр
Модели
с
двигателем
,
объ
-
емом
2,5
л
.
без
турбонадду
-
ва
R
R
Все
модели
,
кроме
моделей
с
двигателем
,
объемом
2,5
л
.
без
турбонаддува
R
8
Фильтрующий
элемент
воздушного
фильтра
I
R
I
R
См
.
ПРИМЕЧАНИЕ
2)
9
Свечи
зажигания
R
10
Смесь
холостого
хода
[
за
исключением
моделей
с
каталитическим
нейтрализатором
]
I
I
I
I
I
11
Масло
коробки
переключения
передач
/
диффе
-
ренциала
(
переднего
и
заднего
) (
трансмиссион
-
ное
масло
)
R
R
См
.
ПРИМЕЧАНИЕ
4)
и
7)
12
Жидкость
АКПП
(ATF)
R
R
См
.
ПРИМЕЧАНИЕ
4)
13
Тормозная
жидкость
R
R
См
.
ПРИМЕЧАНИЕ
5)
ПРЕДМЕТ
ТЕХНИЧЕСКОГО
ОБСЛУЖИВАНИЯ
ПЕРИОДИЧНОСТЬ
ТЕХНИЧЕСКОГО
ОБСЛУЖИВАНИЯ
(
Срок
в
месяцах
,
или
пробег
автомобиля
,
в
километрах
(
милях
),
в
зависи
-
мости
от
того
,
что
наступит
раньше
.)
ПРИМЕЧАНИЯ
Месяцы
12
24
36
48
×
1 000
км
1,6
25
50
75
100
×
1 000
миль
1
15
30
45
60
A8100GE-A.book Page 8 Tuesday, November 14, 2006 11:58 AM
