Автомобили Hyundai Sonata 2011 - инструкция пользователя по применению, эксплуатации и установке на русском языке. Мы надеемся, она поможет вам решить возникшие у вас вопросы при эксплуатации техники.
Если остались вопросы, задайте их в комментариях после инструкции.
"Загружаем инструкцию", означает, что нужно подождать пока файл загрузится и можно будет его читать онлайн. Некоторые инструкции очень большие и время их появления зависит от вашей скорости интернета.

8 5
Òåõíè÷åñêèå õàðàêòåðèñòèêè & Èíôîðìàöèÿ äëÿ ïîòðåáèòåëÿ
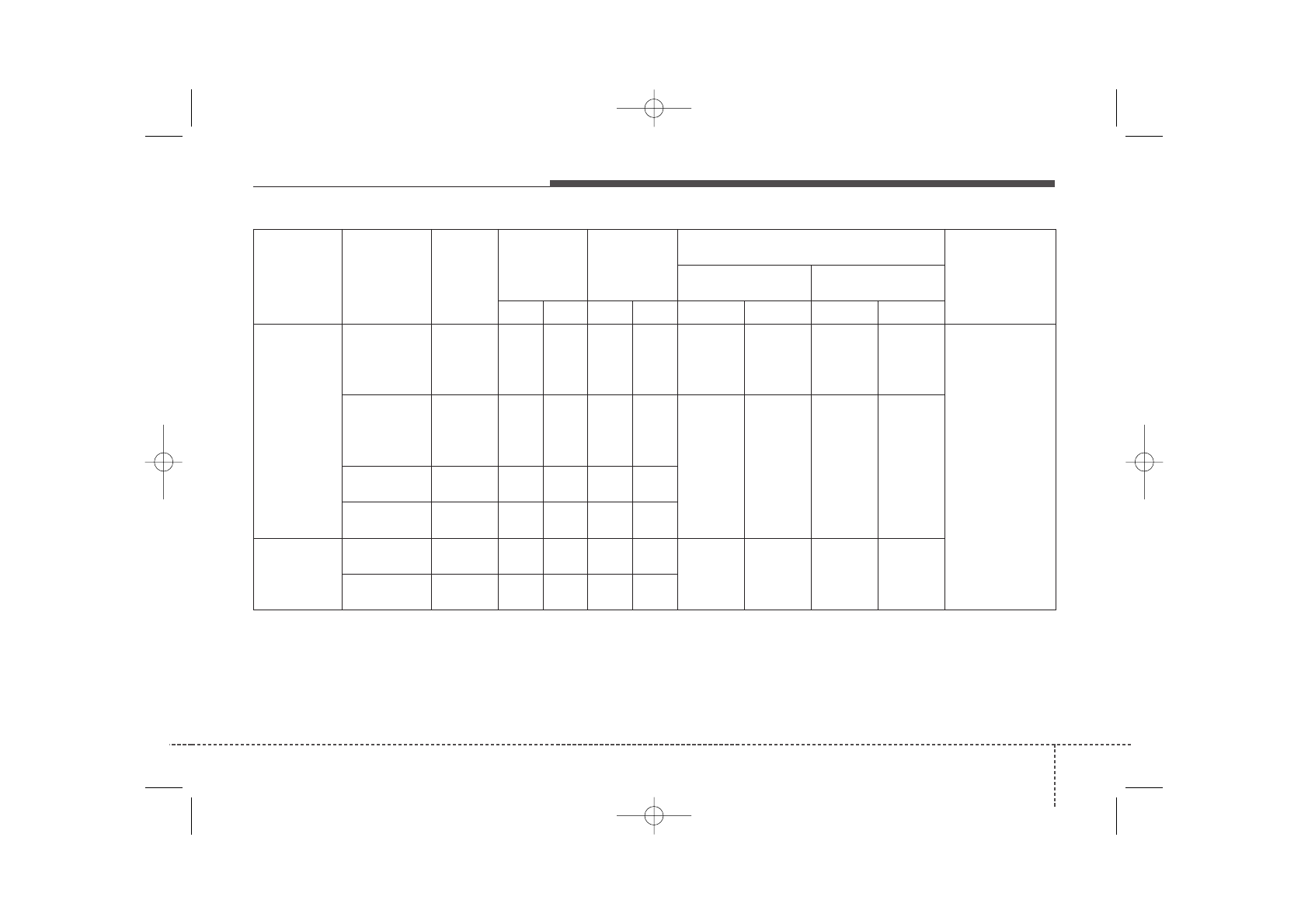
ØÈÍÛ È ÊOËECA
Äåòàëü
Ðàçìåð
øèíû
Ðàçìåð
äèñêà
Äîïóñòèìàÿ
íàãðóçêà
Äîïóñòèìàÿ
ñêîðîñòü
Äàâëåíèå â øèíå, áàð
(ôóíò íà êâ. äþéì, êÏà)
Ìîìåíò
çàòÿæêè ãàéêè
êðåïëåíèÿ
êîëåñà êã•ì
(ôóíò•ôóò,
꥓)
Íîìèíàëüíàÿ
íàãðóçêà
Ìàêñèìàëüíàÿ
íàãðóçêà
LI *
1
Kg
SS *
2
Km/h Ïåðåäíÿÿ Çàäíÿÿ Ïåðåäíÿÿ Çàäíÿÿ
Ïîëíîðàçìåðíàÿ
øèíà
195/65R15
(Äëÿ
ìîäåëåé
Blue Drive)
6.0J×15
91
615
H
210
2,5
(36, 250)
2,5
(36, 250)
2,5
(36, 250)
2,5
(36, 250)
9~11 (65~79,
88~107)
195/65R15
(Êðîìå
ìîäåëåé
Blue Drive)
6.0J×15
91
615
H
210
2,2
(32,220)
2,2
(32,220)
2,2
(32,220)
2,2
(32,220)
205/55R16
6.5J×16
91
615
H
210
225/45R17
7.0J×17
91
615
V
240
Êîìïàêòíàÿ
çàïàñíàÿ
øèíà
T125/80D15 4.0T×15
95
690
M
130
4,2
(60, 420)
4,2
(60, 420)
4,2
(60, 420)
4,2
(60, 420)
T125/80D16 4.0T×16
97
730
M
130
*
1
: Èíäåêñ äîïóñòèìîé íàãðóçêè
*
2
: Ñèìâîë ñêîðîñòè
GDe RU 8.qxp 30.01.2012 14:35 Page 5












