Автомобили Fiat NUOVO DUCATO 2012 - инструкция пользователя по применению, эксплуатации и установке на русском языке. Мы надеемся, она поможет вам решить возникшие у вас вопросы при эксплуатации техники.
Если остались вопросы, задайте их в комментариях после инструкции.
"Загружаем инструкцию", означает, что нужно подождать пока файл загрузится и можно будет его читать онлайн. Некоторые инструкции очень большие и время их появления зависит от вашей скорости интернета.

136
ЗНАКОМСТВО С
АВТОМОБИЛЕМ
СИСТЕМЫ
БЕЗОПАСНОСТИ
ПУСК И
УПРАВЛЕНИЕ
АВТОМОБИЛЕМ
КОНТРОЛЬНЫЕ
ЛАМПЫ И
СООБЩЕНИЯ
АВАРИЙНОЕ
СОСТОЯНИЕ
ТЕХОБСЛУЖИВАНИЕ
И УХОД
ТЕХНИЧЕСКИЕ
ХАРАКТЕРИСТИКИ
УКАЗАТЕЛЬ
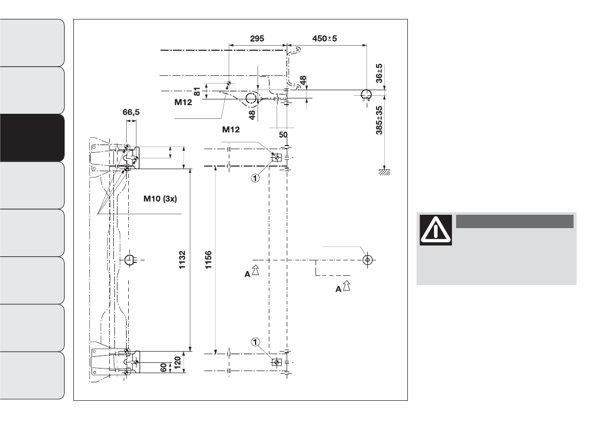
Схема установки в модификациях
Autocarro и Cabinato – рис. 157
Еще одно тягово-сцепное устройство,
специально предназанченное для
моделей Autocarro и Cabinato,
представлено на рис. 162.
Конструкция тягово-сцепного
устройства
Ø
крепится в указанных
точках 6 винтами M10x1,25 и 4
винтами M12.
МАКСИМАЛЬНАЯ НАГРУЗКА НА
СФЕРУ: 100/120 кг в зависимости от
грузоподъемности (см. таблицу
«Параметры веса» в главе
«Технические характеристики»).
После установки
устройства отверстия
под крепежные винты следует
герметизировать, чтобы не
было утечек выхлопного газа.
ВНИМАНИЕ
рис. 157
F0N0250m
Существующее отверстие
Существующее отверстие
Существующее
отверстие
Сфера по норме
нагрузка
Содержание
- 4 безопасности и безопасности ваших пассажиров.
- 5 Уважаемый Заказчик; безопасность людей
- 6 ОБЯЗАТЕЛЬНО ПРОЧИТАЙТЕ!
- 7 ЗНАКОМСТВО С АВТОМОБИЛЕМ; ПРИБОРНАЯ ПАНЕЛЬ; зависимости от модификации автомобиля.
- 8 СИСТЕМА FIAT CODE; ПРИНЦИП ДЕЙСТВИЯ; СИМВОЛЫ
- 9 КЛЮЧИ; Включение контрольной лампы
- 10 КЛЮЧ С ДИСТАНЦИОННЫМ ПУЛЬТОМ УПРАВЛЕНИЯ; ЗНАКОМСТВО С; ВНИМАНИЕ
- 11 Запрос на получение дополнительных пультов
- 14 ЗАМОК ЗАЖИГАНИЯ
- 15 ЗАМОК БЛОКИРОВКИ РУЛЕВОЙ КОЛОНКИ; Когда замок в положении STOP, выньте ключ и поверните; Выключение; Слегка поверните рулевое колесо в момент поворота
- 16 ПАНЕЛЬ КОНТРОЛЬНО-ИЗМЕРИТЕЛЬНЫХ ПРИБОРОВ; охлаждающей жидкости
- 17 СЧЕТЧИК ЧИСЛА ОБОРОТОВ – рис. 12; ПРИБОРЫ НА ПАНЕЛИ АВТОМОБИЛЯ
- 19 станцию техобслуживания Fiat.; УКАЗАТЕЛЬ УРОВНЯ МОТОРНОГО МАСЛА
- 20 ЦИФРОВОЙ ДИСПЛЕЙ; СТАНДАРТНОЕ ИЗОБРАЖЕНИЕ – рис. 15; MODE; Установочное меню
- 21 УСТАНОВОЧНОЕ МЕНЮ – рис. 17; Выбор статьи меню
- 22 по меню нажмите кнопку
- 25 Активация/деактивация передней и боковой
- 26 Выводимые на дисплей параметры; Наружная температура; БОРТОВОЙ КОМПЬЮТЕР; Общие сведения
- 27 Кнопка управления TRIP – рис. 19; Пройденное расстояние
- 28 Новая служебная поездка; Процедура начала пути
- 29 СИДЕНЬЯ; Регулировка сидений в продольном
- 30 Регулировка поясничной опоры
- 31 СИДЕНЬЕ С ПОВОРОТНЫМ ОСНОВАНИЕМ; сиденья с противоположной стороны. Для поворота; СИДЕНЬЯ С РЕГУЛИРУЕМЫМИ ПОДЛОКОТНИКАМИ; Сиденье водителя может быть оборудовано
- 33 Для поворота сиденья служит рычаг D – рис. 28 (с правой; Подогрев сидений – рис. 29
- 34 ЯЩИК ПОД СИДЕНЬЕМ; который легко снимается со специальных крюков в; ОТКИДНАЯ КРЫШКА СКЛАДНОГО СИДЕНЬЯ – рис. 30; крышкой, которую можно использовать в качестве
- 35 ПЛАСТМАССОВАЯ ОБЛИЦОВКА ОСНОВАНИЯ; МОДИФИКАЦИЯ PANORAMA
- 36 Сиденье в сложенном положении; Опрокидывание спинки центрального сиденья
- 37 Снятие складного сиденья; ПРЕДУПРЕЖДЕНИЕ Для снятия складного сиденья
- 38 ПОДГОЛОВНИКИ; ПЕРЕДНИЕ ПОДГОЛОВНИКИ – рис. 38
- 39 РУЛЕВОЕ КОЛЕСО; отпустите рычаг – рис. 39 потянув его в сторону; остановлен и двигатель выключен.
- 40 Зеркала с электроприводом регулировки положения; ЗЕРКАЛА ЗАДНЕГО ОБЗОРА; ВНУТРЕННЕЕ ЗЕРКАЛО – рис. 40
- 42 Оттаивание и обдув зеркал; Электрическое сложение зеркал
- 43 ОТОПЛЕНИЕ И ВЕНТИЛЯЦИЯ
- 44 Ручка B для включения / регулировки вентилятора; = вентилятор выключен; БОКОВЫЕ И ЦЕНТРАЛЬНЫЕ ПОВОРОТНЫЕ
- 46 Система защиты окон от запотевания
- 47 КОНДИЦИОНЕР С РУЧНОЙ РЕГУЛИРОВКОЙ; Ручка B для включения/регулировки вентилятора
- 48 Поворотная гайка C для распространения воздуха
- 49 БЫСТРЫЙ ОБДУВ/ОТТАИВАНИЕ ПЕРЕДНИХ СТЕКОЛ
- 51 ВКЛЮЧЕНИЕ РЕЦИРКУЛЯЦИИ ВНУТРЕННЕГО ВОЗДУХА
- 52 ДОПОЛНИТЕЛЬНЫЙ ОТОПИТЕЛЬ; АВТОМАТИЧЕСКИЙ ОТОПИТЕЛЬ
- 53 ПРОГРАММИРУЕМЫЙ ОТОПИТЕЛЬ
- 54 Включение отопительной установки
- 55 Цифровой таймер – рис. 56
- 57 Отключение запрограммированного времени
- 58 ТЕХОБСЛУЖИВАНИЕ
- 59 ДОПОЛНИТЕЛЬНЫЙ ЗАДНИЙ ОТОПИТЕЛЬ
- 60 ФАРЫ ДАЛЬНЕГО СВЕТА – рис. 66; ФАРЫ НАРУЖНОГО ОСВЕЩЕНИЯ; ОСВЕЩЕНИЕ ВЫКЛЮЧЕНО – рис. 63
- 61 МИГАНИЕ ФАР – рис. 67
- 63 ОЧИСТКА СТЕКОЛ; СТЕКЛООЧИСТИТЕЛЬ/СТЕКЛООМЫВАТЕЛЬ
- 64 Функция «Умная мойка»
- 65 ДОЖДЕВОЙ ДАТЧИК; ОМЫВАТЕЛЬ ФАР
- 66 ПЛАФОНЫ ВНУТРЕННЕГО ОСВЕЩЕНИЯ; ПЕРЕДНИЙ ПЛАФОН С ТОЧЕЧНЫМИ СВЕТИЛЬНИКАМИ; Выдержка времени светильников плафона
- 67 ЗАДНИЙ ПЛАФОН В ГРУЗОВОМ ОТСЕКЕ – рис. 75
- 69 ПРОТИВОТУМАННЫЕ ФАРЫ – рис. 79; КНОПКИ УПРАВЛЕНИЯ; АВАРИЙНЫЕ ОГНИ – рис. 78
- 71 УСТРОЙСТВО ЦЕНТРАЛИЗОВАННОЙ БЛОКИРОВКИ
- 72 Восстановление выключателя аварийного
- 74 ОБОРУДОВАНИЕ САЛОНА; ВЕРХНИЙ ЯЩИК – ОТСЕК С СИСТЕМОЙ ОХЛАЖДЕНИЯ; Ящик открывается с помощью крышки, как показано на; ПЕРЧАТОЧНЫЙ ЯЩИК – рис. 89; Ящик открывается за ручку A.
- 75 ПЕРЧАТОЧНЫЙ ЯЩИК С ЗАМКОМ – рис. 90; Чтобы закрыть или открыть ящик, поверните ключ по или; ЯЩИК ДЛЯ МЕЛКИХ ВЕЩЕЙ; Ящик A – рис. 91 помещается в центре приборной
- 76 ЯЩИК ПОД ПЕРЕДНИМ СИДЕНЬЕМ ПАССАЖИРА; ДВЕРНЫЕ КАРМАНЫ – рис. 93
- 77 ЗАДНЯЯ ПЕРЕГОРОДКА – рис. 95; Автомобиль может быть оборудован глухой задней; ПОДСТАКАННИКИ – ПОДСТАВКИ ПОД БАНКИ – рис. 96; Подстаканники и подставки под банки расположены на
- 78 ПРИКУРИВАТЕЛЬ – рис. 97; возвращается в исходное положение – прикуриватель
- 79 СОЛНЦЕЗАЩИТНЫЙ КОЗЫРЕК – рис. 99; Солнцезащитные козырьки расположены по бокам; ЭЛЕКТРИЧЕСКАЯ РОЗЕТКА – рис. 100
- 80 находится рабочий стол А в некоторых моделях этот; ПОЛКА НАД КАБИНОЙ – рис. 102; для хранения легких вещей.; Максимально допустимая нагрузка:
- 81 ЯЩИК ДЛЯ МЕЛКИХ ВЕЩЕЙ В КАБИНЕ (CAPUCINE); солнцезащитными козырьками и служит для; ОТКИДНАЯ КРЫШКА СКЛАДНОГО СИДЕНЬЯ – рис. 104; откидной крышке имеются два подстаканника и опорная
- 83 Предупреждения по эксплуатации
- 85 ХРОНОТАХОГРАФ
- 86 ДВЕРИ; ЦЕНТРАЛИЗОВАННАЯ БЛОКИРОВКА/; ФУНКЦИЯ SPEED BLOCK
- 87 Разблокировка замков дверей снаружи
- 89 УСТРОЙСТВО DEAD LOCK; Включение устройства
- 90 БОКОВАЯ РАЗДВИЖНАЯ ДВЕРЬ – рис. 115
- 91 ПОДВИЖНАЯ ПОДНОЖКА – рис. 117; на приборной; ЗАДНЯЯ РАСПАШНАЯ ДВЕРЬ
- 92 Электрическое закрытие изнутри – рис. 121; Закройте обе задние створки (сначало левую, потом; Открытие вручную второй створки – рис. 120; механизмом, который останавливает их в открытом
- 93 ЭЛЕКТРИЧЕСКИЕ СТЕКЛОПОДЪЕМНИКИ; Контроллер стеклоподъемника
- 94 КАПОТ ДВИГАТЕЛЯ; ОТКРЫТИЕ КАПОТА; Дверь переднего пассажира
- 95 ЗАКРЫТИЕ КАПОТА
- 96 Для установки штанг накрышного багажника и крепления
- 97 ФАРЫ; НАПРАВЛЕНИЕ СВЕТОВОГО ПУЧКА
- 98 СИСТЕМА ABS; Регулировка положения фар – рис. 129
- 100 MECHANICAL BRAKE ASSIST; Авария EBD (электронная система распределения; на приборной панели (вместе
- 101 СИСТЕМА EOBD; можно
- 102 ПАРКОВОЧНЫЕ ДАТЧИКИ; АКТИВИЗАЦИЯ СИСТЕМЫ
- 103 Расстояние обзора
- 104 ПРЕДУПРЕЖДЕНИЯ ОБЩЕГО ПОРЯДКА
- 105 РАДИОПРИЕМНИК; ПОДГОТОВИТЕЛЬНОЕ ОБОРУДОВАНИЕ для
- 108 ЗАПРАВКА АВТОМОБИЛЯ ТОПЛИВОМ; ЭКСПЛУАТАЦИЯ ПРИ НИЗКОЙ ТЕМПЕРАТУРЕ
- 110 ОХРАНА ОКРУЖАЮЩЕЙ СРЕДЫ; Устройства, ограничивающие выбросы дизельных
- 111 РЕМНИ БЕЗОПАСНОСТИ; ПОЛЬЗОВАНИЕ РЕМНЯМИ БЕЗОПАСНОСТИ – рис. 137; СИСТЕМ; СИСТЕМЫ БЕЗОПАСНОСТИ; РЕГУЛИРОВКА КРЕПЛЕНИЯ РЕМНЯ ПО ВЫСОТЕ
- 112 СИСТЕМЫ
- 113 ПРЕДНАТЯЖИТЕЛИ; ОГРАНИЧИТЕЛИ НАГРУЗКИ
- 114 ОБЩИЕ ПРЕДУПРЕЖДЕНИЯ ПО ИСПОЛЬЗОВАНИЮ
- 115 ПОДДЕРЖАНИЕ ЭФФЕКТИВНОСТИ РЕМНЕЙ
- 116 БЕЗОПАСНАЯ ПЕРЕВОЗКА ДЕТЕЙ
- 117 ГРУППА 1
- 118 ГРУППА 3; ГРУППА 2
- 119 Группа 1
- 120 ПОДГОТОВКА ДЛЯ УСТАНОВКИ ДЕТСКОГО
- 122 IUF; в соответствующей весовой группе.; Переносная колыбель
- 123 ПЕРЕДНИЕ ПОДУШКИ БЕЗОПАСНОСТИ
- 124 подушку, находящуюся в приборной панели, размеры; ПЕРЕДНЯЯ ПОДУШКА БЕЗОПАСНОСТИ СО СТОРОНЫ; Устройство представляет собой мгновенно надуваемую
- 125 БОКОВЫЕ ПОДУШКИ БЕЗОПАСНОСТИ
- 126 БОКОВЫЕ ПОДУШКИ БЕЗОПАСНОСТИ ДЛЯ ЗАЩИТЫ
- 129 ПРОЦЕДУРА ЗАПУСКА; ПУСК ДВИГАТЕЛЯ; ПУСК; ПУСК И УПРАВЛЕНИЕ АВТОМОБИЛЕМ
- 130 ПРОГРЕВ ДВИГАТЕЛЯ ПОСЛЕ ЗАПУСКА
- 131 СТОЯНОЧНЫЙ ТОРМОЗ – рис. 154; СТОЯНКА
- 132 ПУСК И
- 133 ПАРАМЕТРЫ МАКСИМАЛЬНОЙ НАГРУЗКИ
- 134 ЭКОНОМИЯ ТОПЛИВА; ЗАМЕЧАНИЯ ОБЩЕГО ПОРЯДКА
- 136 БУКСИРОВКА ПРИЦЕПОВ; ПРЕДУПРЕЖДЕНИЯ
- 137 УСТАНОВКА ТЯГОВО-СЦЕПНОГО УСТРОЙСТВА
- 139 Схема установки в модификациях
- 141 ЦЕПИ ПРОТИВОСКОЛЬЖЕНИЯ
- 142 ХРАНЕНИЕ АВТОМОБИЛЯ
- 143 КОНТРОЛЬНЫЕ; КОНТРОЛЬНЫЕ ЛАМПЫ И СООБЩЕНИЯ; Если контрольная лампа; НЕДОСТАТОЧНЫЙ УРОВЕНЬ ТОРМОЗНОЙ
- 144 Стояночный тормоз включен; ВЫСОКАЯ ТЕМПЕРАТУРА ОХЛАЖДАЮЩЕЙ
- 145 НЕДОСТАТОЧНАЯ ЗАРЯДКА АККУМУЛЯТОРА
- 147 НЕПОЛНОЕ ЗАКРЫТИЕ ДВЕРЕЙ / ГРУЗОВОГО; Авария EBD (электронная система
- 148 ПОДУШКА БЕЗОПАСНОСТИ СО СТОРОНЫ
- 150 контрольная лампа; НАЛИЧИЕ ВОДЫ В ФИЛЬТРЕ ДИЗЕЛЬНОГО
- 154 ПРЕВЫШЕНИЕ ОГРАНИЧЕНИЯ СКОРОСТИ
- 155 АВАРИЙНЫЙ ПУСК; АВАРИЙНОЕ СОСТОЯНИЕ
- 156 ЗАМЕНА КОЛЕСА; ОБЩИЕ УКАЗАНИЯ; АВАРИЙНОЕ
- 157 Замена колеса выполняется следующим образом:
- 162 КОМПЛЕКТ ДЛЯ БЫСТРОГО РЕМОНТА ШИН
- 164 НЕОБХОДИМАЯ ИНФОРМАЦИЯ; Герметик в комплекте быстрого ремонта действует
- 165 ПРОЦЕДУРА НАКАЧКИ
- 167 ТОЛЬКО ДЛЯ ПРОВЕРКИ И ВОССТАНОВЛЕНИЯ
- 168 ЗАМЕНА ЛАМПЫ
- 170 ) все другие исполнения; Лампы
- 171 ЗАМЕНА ЛАМПЫ ПРИБОРА ВНЕШНЕГО; ПЕРЕДНИЕ ОПТИЧЕСКИЕ ЭЛЕМЕНТЫ
- 172 ФАРЫ ДАЛЬНЕГО СВЕТА
- 173 УКАЗАТЕЛИ ПОВОРОТА
- 174 ПРОТИВОТУМАННЫЕ ФАРЫ
- 175 ЗАДНИЕ ОПТИЧЕСКИЕ ЭЛЕМЕНТЫ
- 176 против часовой стрелки (байонетное соединение); Для моделей грузовиков и грузовиков в исполнении
- 177 ЗАДНИЕ ПРОТИВОТУМАННЫЕ ФАРЫ (фургон Maxi)
- 178 ФОНАРИ ОСВЕЩЕНИЯ НОМЕРНОГО ЗНАКА – рис. 198
- 179 ЗАМЕНА ВНУТРЕННЕЙ ЛАМПЫ; ПЕРЕДНИЙ ПОТОЛОЧНЫЙ СВЕТИЛЬНИК
- 180 ЗАДНИЙ ПОТОЛОЧНЫЙ СВЕТИЛЬНИК
- 181 ЗАМЕНА ПРЕДОХРАНИТЕЛЕЙ; ОБЩИЕ ПОЛОЖЕНИЯ; – ОПАСНОСТЬ ВОЗНИКНОВЕНИЯ ПОЖАРА.
- 182 Блок управления в моторном отсеке
- 184 ЭЛЕКТРИЧЕСКИЕ УСТРОЙСТВА
- 188 ЗАРЯДКА АККУМУЛЯТОРНОЙ БАТАРЕИ
- 189 ПОДЪЕМ АВТОМОБИЛЯ; БУКСИРОВКА АВТОМОБИЛЯ
- 191 ТЕХОБСЛУЖИВАНИЕ И УХОД; ПЛАНОВОЕ ТЕХОБСЛУЖИВАНИЕ
- 192 ГРАФИК ПЛАНОВОГО ТЕХОБСЛУЖИВАНИЯ; Тысячи миль
- 195 ПРОВЕРКА УРОВНЯ
- 196 МОТОРНОЕ МАСЛО – рис. 217
- 197 ОХЛАЖДАЮЩАЯ ЖИДКОСТЬ ДВИГАТЕЛЯ – рис. 218; . Доливайте охлаждающую; нельзя смешивать с любой другой
- 198 ЖИДКОСТЬ СТЕКЛООМЫВАТЕЛЯ ВЕТРОВОГО
- 199 ТОРМОЗНАЯ ЖИДКОСТЬ – рис. 220
- 200 ЖИДКОСТЬ ДЛЯ УСИЛИТЕЛЯ РУЛЕВОГО УПРАВЛЕНИЯ; проверки на наличие утечек.
- 201 ФИЛЬТР-УЛАВЛИВАТЕЛЬ ЦВЕТОЧНОЙ ПЫЛЬЦЫ; УЛАВЛИВАТЕЛЬ ЦВЕТОЧНОЙ ПЫЛЬЦЫ; ВОЗДУХООЧИСТИТЕЛЬ – ПЫЛЬНЫЕ ДОРОГИ
- 202 АККУМУЛЯТОРНАЯ БАТАРЕЯ; ЗАМЕНА АККУМУЛЯТОРНОЙ БАТАРЕИ
- 203 ПОЛЕЗНЫЕ СОВЕТЫ ДЛЯ ПРОДЛЕНИЯ СРОКА СЛУЖБЫ
- 204 КОЛЕСА И ШИНЫ
- 205 РЕЗИНОВЫЕ ШЛАНГИ; В отношении резиновых шлангов тормозной системы
- 206 СТЕКЛООЧИСТИТЕЛЬ; ЩЕТКИ; снижает видимость в плохую погоду.
- 207 КУЗОВ; ЗАЩИТА ОТ АТМОСФЕРНЫХ ВОЗДЕЙСТВИЙ
- 209 САЛОН; Стекла
- 211 ТЕХНИЧЕСКИЕ ХАРАКТЕРИСТИКИ; ИДЕНТИФИКАЦИОННЫЕ ДАННЫЕ; СВОДНАЯ ТАБЛИЧКА ИДЕНТИФИКАЦИОННЫХ
- 212 ТЕХНИЧЕСКИЕ
- 213 AX; КОДЫ ДВИГАТЕЛЯ – МОДИФИКАЦИИ КУЗОВА; Модификации
- 214 ДВИГАТЕЛЬ
- 215 ПОДАЧА ТОПЛИВА; ПОДВЕСКА
- 216 РУЛЕВОЙ МЕХАНИЗМ
- 217 КОЛЕСА; КОЛЕСНЫЕ ОБОДЫ И ШИНЫ; МАРКИРОВКА ШИН – рис. 231
- 220 Шины в комплекте
- 221 РАЗМЕРЫ; Размеры выражены в мм и относятся; ФУРГОН
- 222 БОРТОВАЯ ПЛАТФОРМА; CHI; ГРУЗОВОЙ АВТОМОБИЛЬ
- 224 РАБОЧИЕ ХАРАКТЕРИСТИКИ
- 225 МАССА ФУРГОНА
- 229 МАССА ГРУЗОВОГО АВТОМОБИЛЯ С ПЛАТФОРМОЙ
- 230 МАССА ГРУЗОВОГО АВТОМОБИЛЯ С ПЛАТФОРМОЙ (модификация HEAVY)
- 231 МАССА ШАССИ С КАБИНОЙ И ПЛАТФОРМОЙ
- 233 МАССА ШАССИ С КАБИНОЙ И ПЛАТФОРМОЙ (модификация HEAVY)
- 234 МАССА ШАССИ С КАБИНОЙ
- 237 МАССА ШАССИ С ПЛАТФОРМОЙ (модификация HEAVY)
- 238 МАССА ШАССИ С КАБИНОЙ (модификация HEAVY)
- 241 МАССА СО СДВОЕННОЙ КАБИНОЙ
- 242 МАССА СО СДВОЕННОЙ КАБИНОЙ (модификация HEAVY)
- 243 МАССА КОМБИНИРОВАННОГО ГРУЗОВОГО АВТОМОБИЛЯ
- 246 МАССА МОДИФИКАЦИИ PANORAMA
- 247 ЗАПРАВОЧНЫЕ ОБЪЕМЫ
- 248 ЭКСПЛУАТАЦИОННЫЕ ЖИДКОСТИ И СМАЗОЧНЫЕ МАТЕРИАЛЫ; ХАРАКТЕРИСТИКИ РЕКОМЕНДОВАННЫХ ПРОДУКТОВ
- 250 ОБРАЩЕНИЕ С АВТОМОБИЛЕМ В КОНЦЕ СРОКА СЛУЖБЫ
- 251 ОМОЛОГАЦИОННЫЕ СЕРТИФИКАТЫ
- 255 УКАЗАТЕЛЬ
